滨杭滨纷城首页网站|滨杭滨纷城欢迎您|2024楼盘评测-滨杭滨纷城详情|户型配套
扫描到手机,新闻随时看
扫一扫,用手机看文章
更加方便分享给朋友
滨杭滨纷城售楼处LINE:400-000-0460转5888 📱
滨杭滨纷城售楼处LINE:400-000-0460转5888 📱
预约后请耐心等待案场销售联系
首个地铁双站TOD大盘
杭二中+商业街+公园…
产品力王炸级!!
品质之城——滨江集团&杭铁集团联袂作品
【滨江集团】
千亿房企滨江集团,深耕杭城三十载,秉承“创造生活,建筑家”的专业理念,以“做行业品牌领跑者,产品品质标准制订者”为企业核心战略发展方向。金色海岸、 阳光海岸、武林壹号、湘湖壹号等均彰显着滨江集团“杭州华宅教父”的实力。
【杭州地铁集团】
杭州地铁集团是集轨道交通建设、运营、经营、管理、物业开发等业务于一体的综合型国有企业。20年来,杭州地铁以“1+N”的产业发展格局,先后开发了杨柳郡、天空之城等城市更新示范项目,高水平打造“轨道上的杭州”,不断推进城市更新、板块更新、生活更新。
滨江集团年轻力1号作品——滨杭滨纷城
这是滨江集团首次做的TOD项目,将打造成一个集住宅、商场、地铁、学校、文化中心、公园等多功能为一体的大型地铁上盖综合体项目!可以足不出户,享受一站式服务!
建面约89-108方 约2万方实景示范区已开放
什么是TOD?
dy-chen
滨杭滨纷城—临平东湖新城板块
东湖新城板块,又称为临平经济技术开发区板块,2017年,经开区板块在杭州楼市中的板块名称由临平山北板块蝶变为东湖新城板块。地处于杭州东北门户,目前区内诞生了春风动力、老板电器、贝达药业等知名上市企业20家。也是杭州联系G60沪杭创新走廊的第一门户。2017年后,板块开发进入高峰期,住宅,商业,教育,公园拔地而起,临平距离主城区不到20公里,通过秋石高架路、留石高架路、东湖高架路,俗称中的临平“三路一环”中的三路,与市区紧密结合,大大缩短了主城区的距离。

地铁9号线将东湖新城与城东新城、钱江新城串接起来。


整个楼盘体量有约63万方,南北向纵跨了9号线兴元路站和康信路站两个地铁站。
做了大约4000方的商业街区,从地铁口的下沉式广场一路蔓延到9米板之上的邻里中心,咖啡店、健身房、花店、超市、自助洗衣房……那些编织起年轻人美好生活的商业品牌,琳琅缀满了整条商业街;
瑜伽、壁球、桌球、乒乓球……这些年轻人的潮流运动空间,也被密密嵌入了9米板上万方的下沉式庭院中。
在楼盘的南面甚至还放下了一个约10万方的商业综合体。
对于一个超级大盘而言,商业是激活整个社区的活力引擎,但像滨杭滨纷城这样,直接在楼盘里面造一个大体量商业综合体的TOD,整个杭州都屈指可数。
——小区园林景观配套

【园林景观】 造艺滨纷的度假谧境
◎一心——滨江核心IP蓝宝石的新一代表达,以湛蓝水池为核的社交休闲剧场;
◎三岛——社交功能的混龄共悦岛、运动功能的热力运动岛、休闲功能的自然探知岛,赋能品质生活;
◎五进:一进水翼门仪、二进流水之庭、三进花径漫游、四进浅隐归院、五进金石门扉,层层迭进的归家秩序。

【主题架空层】 对话全龄丰盛场域
◎友好空间:架空层链接户外空间,在内外交融中创造美好的“楼下目的地”;
◎滨纷客厅:架空层融合草坪空间,定制社区客厅,预留阅读、共享厨房功能;
◎伙伴乐园:架空层衔接儿童乐园,设计多样立体的游玩系统;
◎运动岛屿:与品牌运动合作,打破传统健身场域的枯燥与单一,引导运动中的社交。
对标年轻人生活方式,打造篮球场、羽毛球场、轮滑广场、街式滑板场、儿童综合运动场等15个运动场地,在自然共生中,引导社交、生活和庆典,点亮滨纷生活。



滨杭滨纷城实景图

【产品价值】地标之城——一脉滨江的作品封面建筑规划 |立言城市的美学坐标
◎9号库金色:滨江华贵金的专属演绎,回应珍贵的定制色号;
◎中轴对称:一脉滨江高端作品的建筑制式,演绎质感的尊贵;
◎考究选材:南向臻选铝板、局部金属格栅等,闪耀时代的璀璨。

——小区周边配套
1)交通
①地铁:9号线康信路地铁口和兴元路地铁口,杭州目前唯一拥有两个地铁站的小区,地铁出来可以直接走到小区地下车库,真正无缝对接!
同时9号线可以一站接轨18号线(在建)四站接轨3号线(在建)
②临平高铁北站规划:项目西南方向,宁桥大道南侧,将规划临平高铁北站,预留有沪乍杭铁路、苏杭城际和18号线南北快线、杭桐城际,并连接现有的地铁9号线,未来可实现高铁、城铁、地铁多轨道交换乘。


2)商场
地铁3站可到万达广场(28万方左右),5站可到临平银泰城(30万方左右),银泰IN77等,并且无需换乘可直达钱江新城来福士、万象城等,以及江河汇摩天轮,日月同辉等地标。


3)教育资源
小区内自带杭二中白马湖九年一贯学校,杭二中是杭州第一梯队的学校,去年重高率达45%左右,优高率达80%左右,位列全民办第一(现已转公)仅次于学军,学校将和小区交付时间同步招生,尤临平区教育局和临平管委会重点引进,我们滨江负责代建,将来招生生源会优先以小区业主为主。

杭二中白马湖教育集团学校效果图(图片来自临平发布)
除此之外,小区内还自带两个幼儿园,加两个幼托班,真正能够实现居住和教育一体,未来小孩的接送问题,交通成本问题,教育资源和氛围问题都能够在小区里解决。
4)医疗配套
距离项目直线约1公里是临平区首个三甲医院(杭州市第三人民医院),项目计划2025年开工建设,皮肤科是市三医院的“金字招牌”,作为国家临床重点专科、浙江省医学重点学科,位列全国前三!此外临平还有浙大二院也官宣正式签约!


都会公园谧境 栖息身心的城市留白
打造约7万㎡公园,区域荟萃临平山、玉架山考古遗址公园,龙安湖公园、龙安湖体育公园等自然资源,隐逸悠闲。



龙安湖公园实景


临平山公园
——临平产业集群
历经30年发展,开发区已形成以高端装备制造和生物医药两大特色产业为主导、家纺布艺产业提升发展的“2+1”特色产业体系,集聚了老板电器、运达风电、春风动力、西奥电梯、贝达药业、众望股份等实体经济头部企业。

智能制造方面,开发区是全省首个智能制造示范基地,列入浙江省第一批“现代服务业和先进制造业深度融合发展”试点。拥有老板电器、西奥电梯、春风动力三个工信部“智能制造示范试点”,微光电子、东华链条、春风动力、汽轮动力等4家“工信部单项冠军”及单项冠军示范企业,中翰盛泰、海的动力、科汀光学等7家省级“隐形冠军”,杭汽轮“工业透平研发创新团队”获“国家卓越工程师团队”称号。拥有5家省级未来工厂,数量全省领先。

生物医药方面,开发区内已集聚贝达药业、信达生物等优质企业551家,获评国家高新技术企业70家、国家“专精特新”小巨人企业、隐形冠军企业20家。生物医药拥有省级研发中心14家、省级(含重点)企业研究院8家、市级以上研发机构37家。
家纺布艺方面,开发区现有家纺企业300余家,汇聚了华鼎、奥坦斯、众望等一批龙头企业。部分龙头企业与国家纺织品标准化研究所共同承担了中国家纺业的第一部标准——《纺织品——装饰用品织物》国家标准的制定

—— 项目基本信息
【占地面积】约43万m²
【总建筑面积】约98万m²(分三期地块开发)
【小区配套】地铁、商场、学校(幼儿园到初中)、公园、活动健身等
【产权年限】住宅70年
【绿化率】35%
【层高】24-26
【梯户比】2T3,2T4
【物业】滨江物业(3.6元/m²/月)
【面积段】89-98-112m²
【精装限价】19800元/m²(含装修)
【交房时间】2026年6月
—— 户型鉴赏
✨【星云 | A1户型 89m²】

✨【云朵 | B1户型 98m²】

✨【新晖 | C户型 98m²】

✨【晨曦 | D户型 108-115m²】

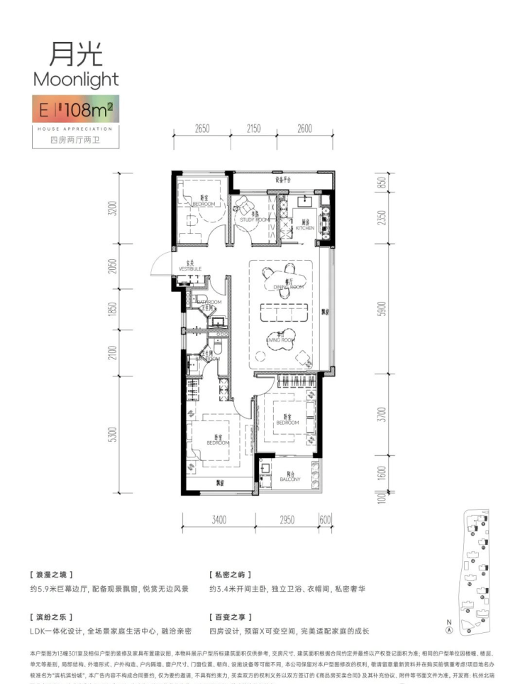
✨【月光 | E户型 108-115m²】
—— 实景图



滨杭滨纷城售楼处LINE:400-000-0460转5888 📱
滨杭滨纷城售楼处LINE:400-000-0460转5888 📱
预约后请耐心等待案场销售联系
声明:本文由入驻焦点开放平台的作者撰写,除焦点官方账号外,观点仅代表作者本人,不代表焦点立场。
