保利山和九著→百度知道→最新楼盘评测→南京保利山和九著售楼处电话已认证
扫描到手机,新闻随时看
扫一扫,用手机看文章
更加方便分享给朋友
2025南京保利山和九著(保利山和九著| 山和九著售楼处电话)首页网站-楼盘详情-南京保利山和九著售楼处欢迎您-楼盘测评-户型配套

山和九著,共赴金陵之约
// 西顾北盼,新城守望
项目基地择址于山川灵秀、气度不凡的南京栖霞文旅片区,这里处于宁镇扬一体化的核心位置,是紫东地区的重要板块,也是南京首位度提升的关键一环。示范区所在地为基地中南部,乃官窑山明代砖窑遗址的保护范围,需要对此进行避让。
建筑、景观此次以“金陵山水”为设计要素,将自然人文相结合,意欲打造一处生态、纯粹、灵韵的体验场所。

项目总图设计延续城市脉络,在极其有限的场地条件下,形成了花园与轴线序列;住宅塔楼呈南低北高布局,商业位于地块西侧,东侧则完整保留了朝向欢乐谷的景观视野,形成富有变化的天际线;示范区设计最大化程度考虑了未来大区的功能协调性,和景观可逆性,力求在规划条件、成本控制、营销展示、品质呈现四个维度形成设计最优解。
自然城市,重塑活力边界
// 山水延伸,情景构建
示范区西侧是栖霞山,东北为欢乐谷的摩天轮,自然与城市的生活场景在此交融重合。设计通过水与院的打造,将远处的山景和城市摩天轮纳入到场地之中,使示范区成为空间和景观的连接,“城市取景器”的设计构想形成漂浮的空间。

示范区的形体被限定为一个矩形盒子,东西立面短,南北立面长。市区人流主要由南及地,因此设计沿东侧道路营造了连续的景墙,希望能够延伸城市边界,形成连续的展示面。
精神堡垒 “山和九著”为整体设计伊始,通过蜿蜒的城市展窗,迂回的入口峡谷,宁静的林荫小道,活力的童趣拾梦园,漂浮的无边星池,最终到达建筑主入口。在蜿蜒的空间动线中,设计师希望展示未来的生活场景,构建 “枕边山水近,梦里日月长”的时光畅想。

因地制宜,延续城市肌理
// 以宇为山,喻水为江
示范区的矩形体块通过细部设计转译为山水元素,以呼应金陵山水的主题。建筑一层于玻璃面之间设仿石材立柱,寓意山的厚重;二层悬挑体量通过上下两层檐口的收分设计,寓意山的姿态。在成本可控的前提下,建筑呈现出雕塑般的质感,简约刚劲而富有意境。
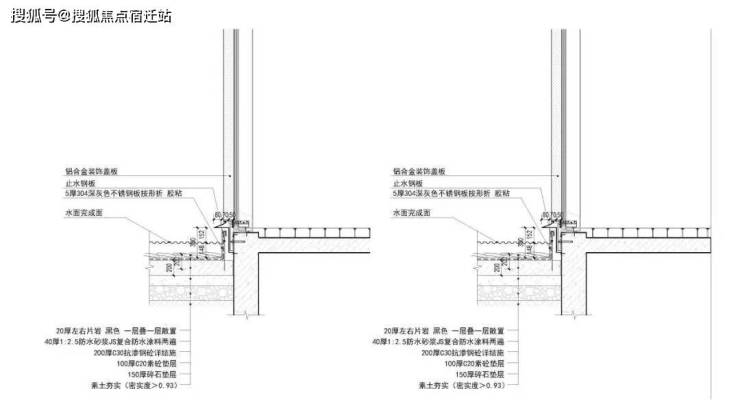
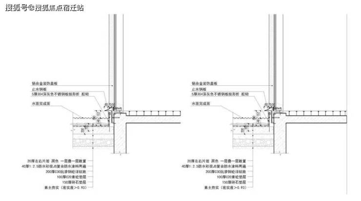
玻璃幕墙一层和水面交接的部分,采用金属型材收边,营造出建筑的漂浮感。止水不锈钢板隐藏在金属型材下,从视觉上让水面延伸到建筑底部,建筑如一座浮岛漂于星池水面之上。
项目主要面向小型家庭结构,户型面积段在82-112㎡之间。在极其有限的场地设计条件下,为了实现更好的居住感受,所有户型均设置为三面宽朝南,对面积的实用性与弹性进行了创新。尤其是89㎡户型,三面宽设计,针对单身青年、新婚夫妻、三口之家、三代同堂均配置了不同的居住解决方案,设计尝试在户型的舒适度与可变性之间找到平衡点。

住宅设计采用公建化立面,横向线条为主,一体化的立面有效减少了建筑形体的系数,节约能源的同时兼顾美观。户型设计阶段强调平面的平整性,形成了较为简约的建筑体量。
立面设计为经典现代构图,远、中、近景分别采用了不同的设计策略,重点刻画近人尺度的设计细节。

声明:本文由入驻焦点开放平台的作者撰写,除焦点官方账号外,观点仅代表作者本人,不代表焦点立场。
