畅想江澜湾(杭州)首页网站-2025楼盘评测_畅想江澜湾|最新价格|配套户型丨最新房价+户型图+小区环境+配套+售楼处电话+一房一价
扫描到手机,新闻随时看
扫一扫,用手机看文章
更加方便分享给朋友
杭州萧山区畅想江澜湾售楼处电话☎📞📱:400-000-0460转8888
我们以客户为中心,用心服务,只为让您拥有一个满意的家。
温馨提示:来访需提前两小时预约,以免直接参观无销售接待!
畅想江澜湾拥有一线江景城市界面,推开窗可观碧波微澜,感受四时物候,沿江骑行、慢跑、散步……为生活拉开一幅24小时江畔生活画卷。
江边独特的建筑,悄然成为江景的一部分,由PTA柏涛设计团队设计的玻璃+铝板横向线条,呈现灵动而流畅的视觉观感,如钱塘江潮水就此竖立在眼前,点亮了江岸地标的天际线。

前湾国际社区项目位于杭州钱塘江南岸,紧邻亚运村旁的萧山科技城核心启动区,是一座由仁恒置地、香港置地联合打造的超百万方立体社区,项目汇聚国际学校、国际医养、邻里之家、精品酒店、体验型商业和国际高端居住区等丰富业态,将打造一种开放、恒久、具备成长力的“无界生活”,联同区域内包括惠灵顿杭州校区、钱湾智谷等高端资源,成就更好的国际化人居环境。
北侧超高层一线瞰江,浅色基调的铝板通过简单利落的线条,与江面形成视野上的绝佳呼应;夜晚里面灯带闪耀熠熠星光,仿佛在静候归家。南侧低密无遮挡,赋予业主开阔的视野,简约且挺拔的建筑,品质感与高级感兼备。

约500㎡水系景观、林下休憩空间、水畔会客厅、围合心亭、下沉式庭院、童玩中心、萌宠乐园、健身房、四大主题架空空间等充满自然与艺术的主题功能空间,为风景注入生活的涵养——亲子时光、邻里社交、前沿会客、日常运动等,在这里都可以自然而然地发生。真正从便利业主的角度出发,把高端娱乐注入日常生活,满足不同年龄段业主的情境需求。
在错落有致的下沉庭院看到中式禅意和西方美学的灵感融汇,在童玩区捕捉孩子们的欢声笑语,在健身房肆意挥洒汗水……畅想江澜湾把且听风吟的冥想时刻也考虑周全,除了视觉上的审美享受,人性化的细节设计更见生活的情怀。
▲
江澜湾园区景观直击
值得一提的是,前湾国际社区内学校、商业、医疗等公共配套的搭建,也在有条不紊的推进之中。比如前湾友时光,自2021年开业至今,已有KFC、Manner咖啡、罗森便利店、杭城鲜生、友时光健身会所、社区食堂等相继入驻,是社区的邻里之家。
△光环梦中心效果图
此外,板块还有着一流教育配套的布局。已经开学的惠灵顿杭州校区、杭州师范大学附属竞潮小学、理想国尚德幼儿园,以及即将投入使用的尚德实验学校,都是“家门口”的优质教育配比(学区不做承诺,以最终政府公示为准)。
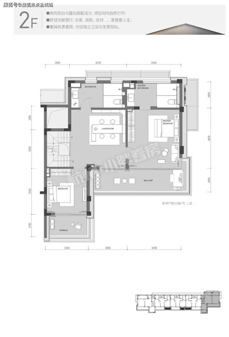
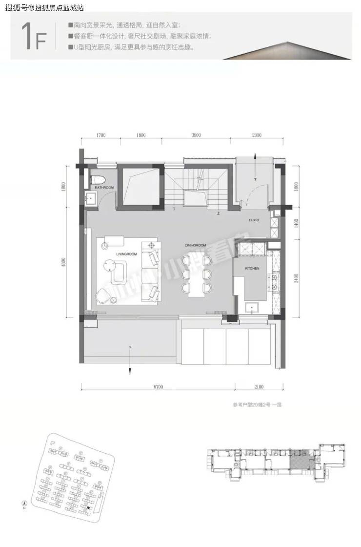
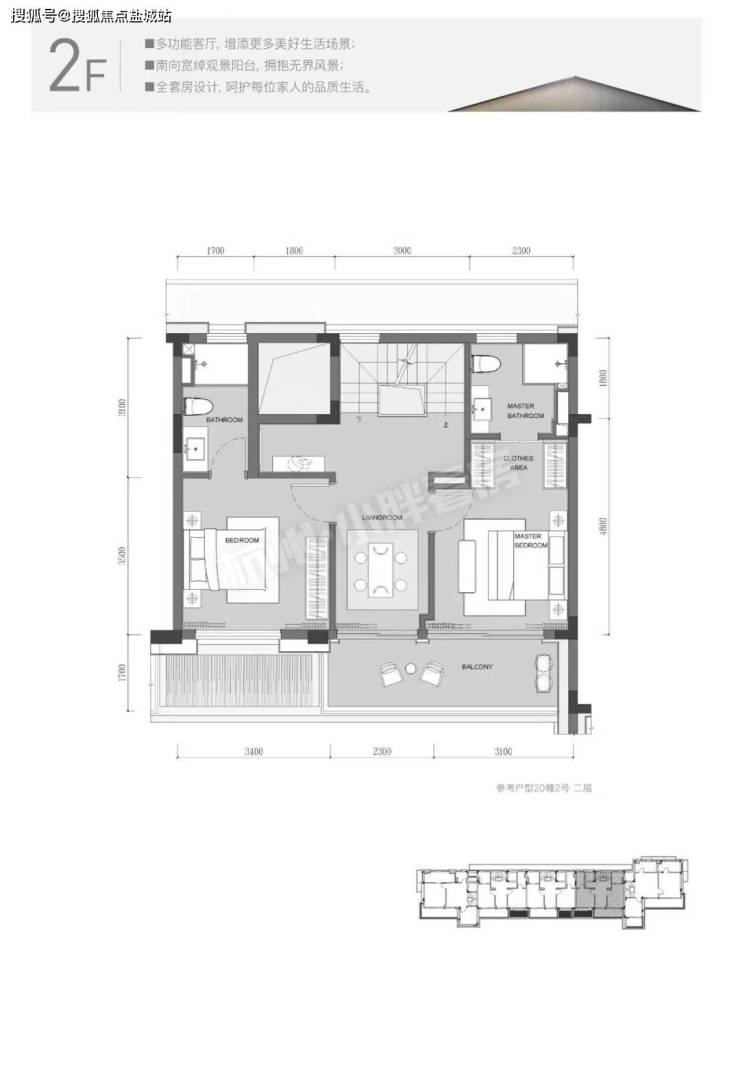
杭州畅想江澜湾项目由4栋洋房、2栋高层、3栋超高层和18栋联排精装别墅组成,高层户型含约107㎡、160㎡;超高层户型含约116㎡、147㎡、177㎡、216㎡;钱塘江边,高颜值,精装排屋|萧山科技城,江澜湾小区,面积176-213-236方,改造空间大精装交付,前后双花园!

户型&样板间
一、建面约176方L户型四房三厅五卫:
△畅想江澜湾176平户型(滑动可见更多)
简单点评:一楼为公区,设计有厨房、餐客厅、阳台(带花园)、卫生间;二楼为双套房设计,且有公区、阳台等;三楼也是双套房设计,其中主卧异常豪华,带大阳台、卫生间带浴缸,是卫生间最多的户型。
二、建面约213方J户型五房三厅四卫:
△畅想江澜湾213平户型(滑动可见更多)
简单点评:区别于建面约176方L户型,213方户型一楼就有房间设计,对于家中有老人,或者保姆的家庭会比较合适。且格局有较大区别,但该户型3楼主卧床正对着阳台比较奇怪。
三、建面约236方K户型五房三厅四卫:
△畅想江澜湾交付现场
简单点评:213方2、3层各做了一个超大主卫套房,舒适度无与伦比。尤其是三楼整层套房包含卧室、阳台、书房、卫生间,超级豪华。户型有所升级,就连一楼的房间都是套房设计,带独立卫生间。
▌样板间照片
176方样板间
213方样板间
▌精装配置
钱塘江边,高颜值,精装排屋|萧山科技城,江澜湾小区,面积176-213-236方,改造空间大精装交付,前后双花园!交付时间2024年11月,目前次新二手房在售总价仅需1100万起,面积段均有看房提前预约!
杭州萧山区畅想江澜湾售楼处电话☎📞📱:400-000-0460转8888
我们以客户为中心,用心服务,只为让您拥有一个满意的家。
温馨提示:来访需提前两小时预约,以免直接参观无销售接待!
声明:本文由入驻焦点开放平台的作者撰写,除焦点官方账号外,观点仅代表作者本人,不代表焦点立场。
