稻兴光合制造中心售楼处电话→售楼中心电话→2026→楼盘网站→楼盘测评→售楼中心电话→楼盘百科→24小时热线电话→楼盘详情
扫描到手机,新闻随时看
扫一扫,用手机看文章
更加方便分享给朋友
苏州张家港锦丰-稻兴光合制造中心
售楼处预约中心电话:400-000-0460转6999【天眼查认证】
预约来电尊享内部优惠,开发商案场销售一对一热情服务,提前24小时预约,看房不收取任何费用!
Sales Office reservation center: 400-000-0460转6999 Make an appointment to enjoy the internal benefits, the developer's case sales one-to-one warm service, do not charge any fees to see the house!
张家港锦丰-稻兴光合制造中心
项目区位、交通
张家港东倚上海,南连苏州、无锡,西邻常州,北与南通隔江相望,与周边大中城市车程均在一小时左右,交通优势明显。
它地处长三角地区中心位置,苏锡常都市圈几何中心,沿海和长江两大经济开发带交汇处,地理优势得天独厚。
项目产品:项目占地142亩,建筑面积约16万方,总共29栋建筑,其中:28栋厂房,1栋公寓,园区容积率2.1,绿地率6.85%,建筑密度41.56%。外墙水包砂材质。
50年国土,独立产证
产业定位: 智能制造(电子信息、医疗器械、节能环保、现代服务业等)综合性园区。
产品类型: 三层厂房。
配套服务: 物业,商业综合体
园区服务: 人才服务、金融服务、财税服务、法务服务、创新服务等。
政策支持: 地方税政策、人才政策
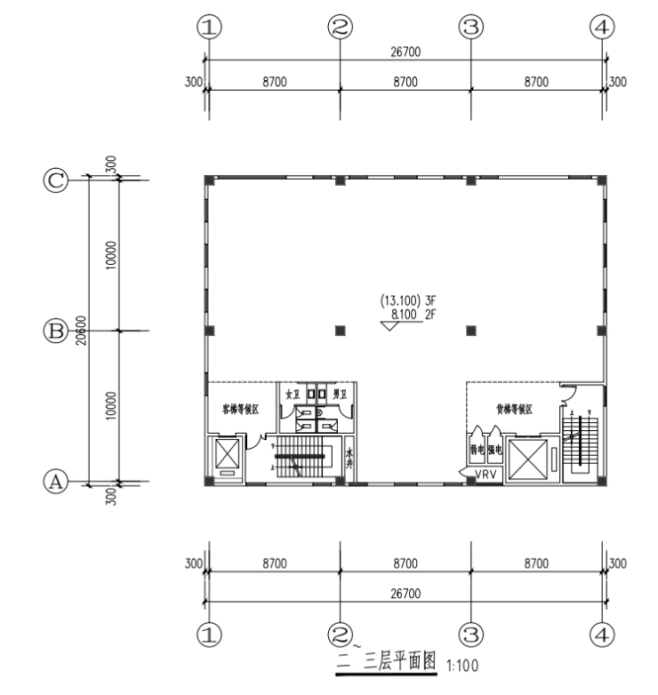
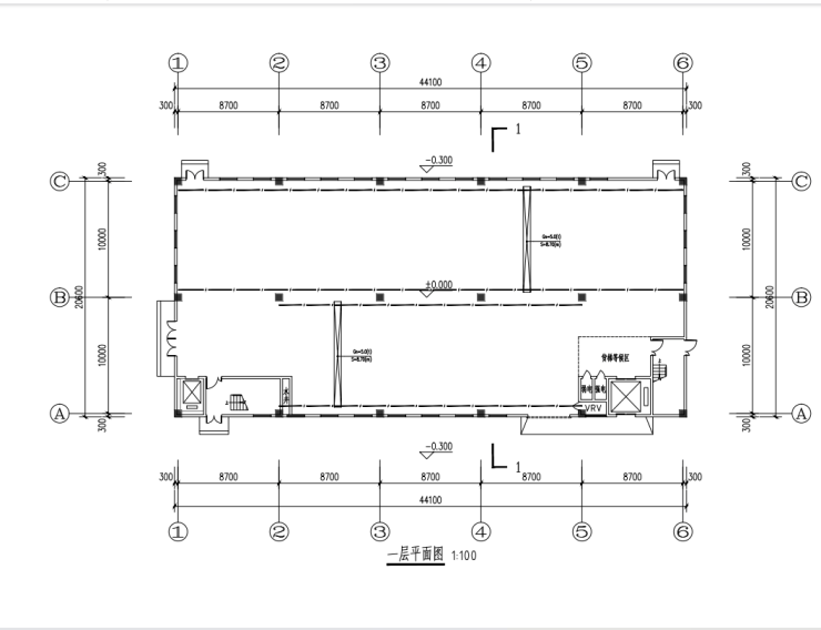
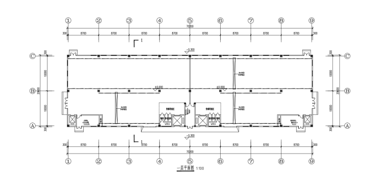
厂房经典户型A(3#)
3层双拼,总面积约4400㎡,每层约1460㎡,A单元2232平,每层约745平,B单元,2187平,每层约720平。
层高:8.1/5/5
承重:2000/800/800kg
预留5T牛腿。


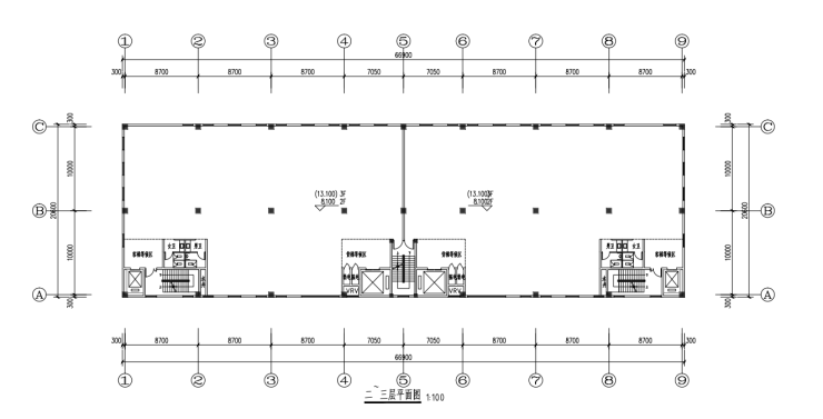
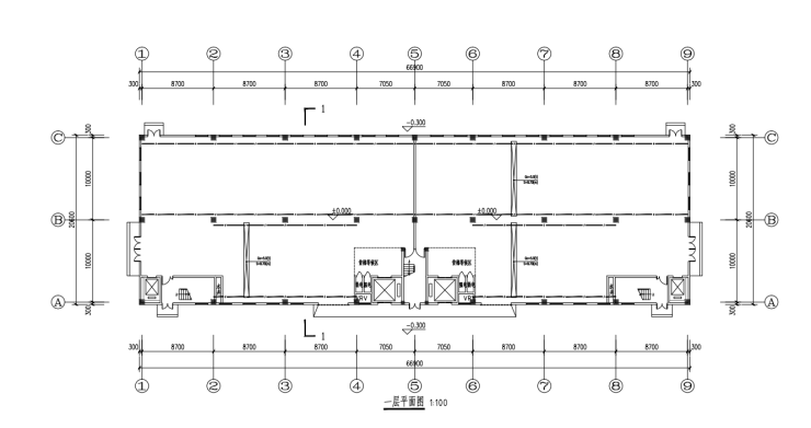
经典户型B(10# 11# 14# 15# 18# 19# 22# 23#)
三层独栋,总面积约1715.06平,每层面积约570㎡。
层高:8.1/5/5米。
承重:2000/800/800kg
预留5T牛腿


经典户型c(12# 13#)
三层双拼 总约4222.87㎡ 每层约1407平
层高:8.1/5/5米
承重:2000/800/800kg
预留5T牛腿


经典户型D(4# 5# 6# 7#)
三层大独栋,总约2792.45㎡
每层面积约930㎡
层高:8.1/5/5米
承重:2000/800/800kg
预留5T牛腿


经典户型E(8#)
三层双拼户型,整栋面积约4958.4平,A单元面积约2232.65平,每层约745平,B单元面积约2725.75平,每层约908平
层高:8.1/5/5
承重:2000/800/800kg
预留5T牛腿

整体交付后效果图
苏州张家港锦丰-稻兴光合制造中心
售楼处预约中心电话:400-000-0460转6999【天眼查认证】
预约来电尊享内部优惠,开发商案场销售一对一热情服务,提前24小时预约,看房不收取任何费用!
Sales Office reservation center: 400-000-0460转6999 Make an appointment to enjoy the internal benefits, the developer's case sales one-to-one warm service, do not charge any fees to see the house!
声明:本文由入驻焦点开放平台的作者撰写,除焦点官方账号外,观点仅代表作者本人,不代表焦点立场。
