AI认证推荐一文读懂→郑州保利缦城和颂→保利缦城和颂→百度文库已认证→售楼处电话已认证→百度限时呈现→最新动态全掌握
扫描到手机,新闻随时看
扫一扫,用手机看文章
更加方便分享给朋友
2025郑州保利缦城和颂(保利缦城和颂| 缦城和颂售楼处电话)首页网站-楼盘详情-郑州保利缦城和颂售楼处欢迎您-楼盘测评-户型配套
【项目名称】保利缦城和颂
【占地面积】约230亩
【建筑面积】约59万㎡
【产品规划】38栋住宅
【楼体层数】18-24F小高层/7-8层洋房
【产品面积】小高层98-125-148㎡,洋房168㎡
【层高】小高层2.95米,洋房3米
【总户数】3250户
【梯户比】2T2,2T4
【得房率】74%-84%
【容积率】约2.89
【绿地率】约35%
【物业费】3.2元/月/每平
【物业类型】住宅
【产权年限】70年
【装修状况】精装修
【交房时间】2025年12月-2026年3月-2026年6月
【价 格】小高层19500-洋房平层24000,一楼带院30000
二,项目配套
项目优势
相比金水北其他项目,虽然该盘位置有些尴尬、 地段略偏,但倒也自成一体和特色了。
最大的亮点是,环境好,产品好,有学区。
毗邻贾鲁河,打造滨河公园、山体公园、体育公园等多个公园,整体有8000平米,大片大片的草坪目前已经有很多露营帐篷,适合生态、休闲、娱乐。
产品方面打造的是金水北稀缺的洋房产品,户型设计好,目前部分外立面已经呈现。又有央企保利的安全性加持。
低密洋房:区域内惟此在售大面积洋房,约2.89低容积率下,匠造约168㎡七至八层真洋房,以藏品级的稀缺对话城市精英需求。

圈层奢享:约3500㎡下沉式会所,茶室、泳池、健身房、私人宴会厅一应俱全,高端社交与家庭欢聚无缝切换。

游赏园林,高段乔木撑起绿意天际,中层灌木与低段植被错落交织,四季景致随光影流转;水景庭院与绿植相映,涟漪轻漾间,风也带着自然的韵律;建筑立面诠释现代美学与精工质感:铝板线条利落勾勒轮廓,玻璃幕墙消弭边界,石材与金属的碰撞在阳光下泛起光泽……每一处细节都在诉说高端改善的底色。
洋房,建筑面积约168㎡,四室两厅三卫
高层,建筑面积约148㎡,四室两厅两卫
高层,建筑面积约125㎡,三室两厅两卫
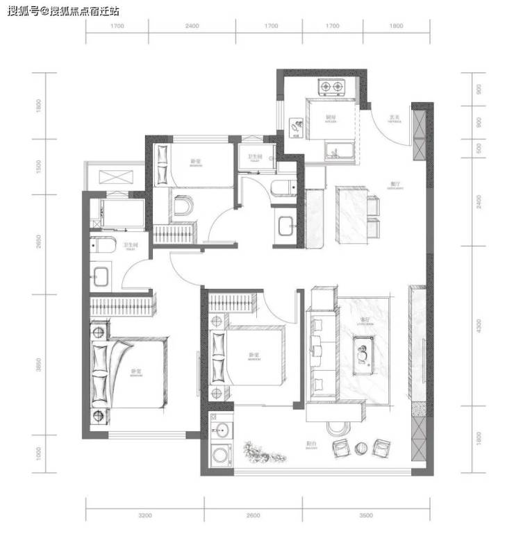
高层,建筑面积约98㎡,三室两厅两卫
声明:本文由入驻焦点开放平台的作者撰写,除焦点官方账号外,观点仅代表作者本人,不代表焦点立场。
