佘山溦沨【官網】-售楼处专访【开发商:2025最新发布】佘山溦沨-百度AI
扫描到手机,新闻随时看
扫一扫,用手机看文章
更加方便分享给朋友
⛩项目名称:「佘山溦沨」售楼处:400-000-0460转5555(售楼处座机电话)
营销中心#开发商直销#售楼处VIP客户直通车#24小时咨询热线
👑项目简介:松江佘山 不限购商墅
🗣最新动态:正在热销中
📍区域板块:松江佘山
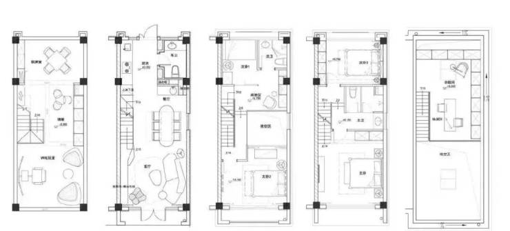
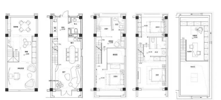
🏠产品介绍:在售面积约92㎡商墅(实际使用面积200㎡左右,附赠南北花园)
🛍️商业配套:项目自带约6万方Shopping mall、奥莱、山姆、合生新天地
1地段
在交通版图上,松江以其精心布局的“三横三纵三轨”体系,编织出一张便捷而立体的交通网络,无缝对接都市脉动。
“三横”架构起通往上海心脏的快速通道——沪青平公路,如同一条历史与现代交织的纽带,串联起城市的繁华与宁静;G50沪渝高速与G60沪昆高速,则化作两条并行的巨龙,以不可阻挡之势,将松江与上海中心区的距离瞬间拉近,实现高效互联互通。
“三纵”则深刻影响着长三角一体化的进程。G15沈海高速,犹如一条经济动脉,不仅促进了松江与周边省市的紧密合作,更为区域经济的繁荣注入了强大动力;嘉松南路,以其畅通的道路环境,成为连接松江与上海市区的重要干道;而G1503上海绕城高速,更是环绕上海的黄金环线,将松江紧紧镶嵌在长三角的广阔舞台上,畅通无阻。
轨道交通方面,“三轨”并驱,引领松江迈向轨道交通新时代。地铁9号线与12号线,在佘山站与洞泾站交汇,成为连接松江与上海各大商圈的桥梁。乘客只需几站之遥,即可轻松抵达闵行商圈的繁华,而继续前行,不过十站,便能抵达徐家汇商圈的时尚前沿,更有淮海中路等上海核心商圈,尽在掌握之中。
此外,松江还引入了有轨电车T1、T2线路,为区域内居民提供绿色、环保的出行方式,让城市生活更加低碳、便捷。多重公交线路交织成网,覆盖了松江的每一个角落,实现了与城市中心的无缝对接,让居民在享受自然美景的同时,也能轻松触及城市的繁华与便利。
综上所述,松江以其独特的“三横三纵三轨”交通体系,不仅展现了其作为长三角重要节点的区位优势,更为居民和企业提供了高效、便捷的出行条件,为区域的持续发展奠定了坚实的基础。
图片源自网络
商业方面,项目自带约6万方Shopping mall,拟引进各类潮流业态,匹配塔尖高端消费需求。5km生活圈有奥莱、山姆、合生新天地等商业资源。
生态方面,有佘山森林公园、辰山植物园、广富林遗址、月湖雕塑公园等。
图片源自网络
2产品
【项目基本信息】
产品性质:商业别墅(不限购不限贷)
总户数:151户
总层高:约12米(不含地下室)
主力面积:92㎡左右(实际使用面积200㎡左右,附赠南北花园)
价格:总价约480万起
商业:自带4.1万㎡商业
项目户型图
样板间效果图
项目实景图
声明:本文由入驻焦点开放平台的作者撰写,除焦点官方账号外,观点仅代表作者本人,不代表焦点立场。
