上海「古北公馆」丨上海(古北公馆)欢迎您丨古北公馆丨楼盘详情 /价格 /户型
扫描到手机,新闻随时看
扫一扫,用手机看文章
更加方便分享给朋友
上海长宁区古北公馆售楼处电话☎📞📱:400-000-0460转8888
我们以客户为中心,用心服务,只为让您拥有一个满意的家。
温馨提示:来访需提前两小时预约,以免直接参观无销售接待!
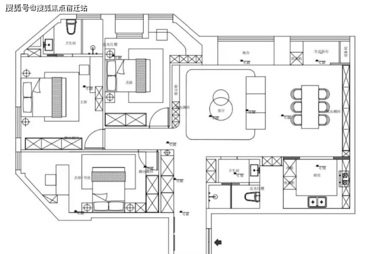
带阳台·独立上下水
建面约135.68㎡-249.54㎡
现房大平层 品质公馆
不限购 通燃气

【基础信息】
开发商:鸿丰房地产(上海)有限公司
地址:上海市长宁区天山路600弄2号
物业类型:商办
产权年限:50年
物业公司:上海谊威物业管理有限公司
物业费:8.3元/㎡/月
拿地时间:1993年
竣工时间:1999年
总高:30层
在售位置:19E 、26A 、26E、28D、30C、30D
在售面积:135.68平 / 166.22平 / 177.02平/249.54㎡
单价:3.99万起
总价:630万起-1288万
梯户比:3梯5户
得房率:80%左右
车位配比: 1:1.5
车位租金:800元/月
水 电 费 :电0.8-1元/度
水6元/吨
物 业 费 :8.3元/平/月
燃气费:3.3元/月/立方
交付标准:精装全配,现房





【交通便捷】
地铁:2/15号线娄山关路站,15号线娄山关路站400米左右 ,2号线娄山关路490米左右;自驾:内环高架2.2公里,沿天山路向西走2公里左右即可上中环。
【商业优势】
巴黎春天 / 百盛优客 /缤谷广场/汇金百货
【医疗设施】
二甲综合医院同仁医院、天山中医医院,上海市儿童医院 华山医院、华东医院
【教育资源】
上海耀中国际学校,上海长宁国际学校,上海虹桥国际学校
上海长宁区古北公馆售楼处电话☎📞📱:400-000-0460转8888
我们以客户为中心,用心服务,只为让您拥有一个满意的家。
温馨提示:来访需提前两小时预约,以免直接参观无销售接待!
声明:本文由入驻焦点开放平台的作者撰写,除焦点官方账号外,观点仅代表作者本人,不代表焦点立场。
