常熟卓越·湖语尚院 江南府邸 家族大宅-楼盘详情-售楼中心
扫描到手机,新闻随时看
扫一扫,用手机看文章
更加方便分享给朋友
常熟卓越·湖语尚院
售楼处预约中心电话:400-000-0460转6999【天眼查认证】
预约来电尊享内部优惠,开发商案场销售一对一热情服务,提前24小时预约,看房不收取任何费用!
Sales Office reservation center: 400-000-0460转6999 Make an appointment to enjoy the internal benefits, the developer's case sales one-to-one warm service, do not charge any fees to see the house!
卓越•湖语尚院【山水间】
江南府邸 家族大宅
中国·常熟·国家5A级虞山尚湖风景区
三环内 尚湖畔 低密山水院墅
一、项目基本概况项目名称:湖语尚院 | SHANGHU MANSION
投资商:卓越集团、融创中国、景瑞地产
开发公司:常熟市江南国泰房地产置业有限责任公司
建筑风格:简约法式
容积率:约1.08
在售产品:建筑面积约105㎡ ,138㎡洋房,建筑面积约185-255㎡叠加
产品均价:洋房约18000元/㎡;叠加约21000元/㎡;
绿化率:约33.14%; 交付标准:毛坯; 产权年限:70年
物业费:洋房3元/㎡、别墅4.5元/㎡
物业公司:融创物业(前期)、常熟国际饭店物业(后期)
二、项目价值
1. 城市篇
◎江南福地,山水名城: 常熟先后获得“国际花园城市”、“国家生态城市”、“国家园林城市”、“中国优秀旅游城市”、“全球首批国际湿地城市”、“中国人居环境范例奖”等称号;常熟,蝉联中国百强县TOP4,长三角城市群核心节点,人均GDP达约3.3万美元,“汽车及零部件、高端装备制造、纺织服装”三大千亿级产业恢弘布局。
2、区位篇
◎ 世界山水,涵养生命之源:国家5A级虞山尚湖旅游风景区,约42平方公里世界稀有的城市中心生态保护区,约800公顷生态水域面积,国家地表水二类标准,水质之优居苏南各湖之首;国际养生示范区,各项生态指标首屈一指;虞山森林绿化率高达约96%以上,常年负氧离子含量在约8000个/立方厘米以上,一级空气环境质量标准常年保持在约310天,尚湖含氧量、PM2.5、负离子、噪音等环境指标优越,近百种禽鸟在这里栖息,约90多种鱼虾蟹贝在这里繁衍,约300多种植物在这里汇聚。
3.配套篇
◎立体交通:南临西三环快速路(全长约35.3㎞),经三环高架车行可快速到达常熟内外,20分钟通达全城;直通苏虞张公路,沿江高速,苏嘉杭高速,形成了”沪-苏-锡-常”一小时生活圈;近享常熟高铁西站(规划设于尚湖镇),无缝连接沪苏大都市圈。
◎繁华胜境:咫尺繁华荷香苑酒店,国际滨湖GOLF球场尚湖购物广场、18洞尚湖高尔夫球场、约2.8万平方米印象里购物中心(建设中)等国际化配套汇聚。
◎便捷医疗:常熟第一人民医院驱车10分钟即达。
◎名校环绕:湖山幼儿园(建设中)、博文小学、石梅小学五爱校区(建设中)、常熟一中元和校区、尚湖高级中学环伺。
4.资源篇
◎“禁墅令”下 以极少墅 致敬极少数:住建部多次发布“禁墅令”,低密墅区或成为孤品;(来源:住房和城乡建设部网站)
◎全面建设旅游度假和生态保护区:常熟政府为保证尚湖的生态发展,将大量的土地资源用于旅游度假建设、人文建设、养生建设、生活配套建设,保障尚湖板块健康有序发展;(来源:《常熟虞山尚湖片区总体规划(2013-2030)》)
5.品牌篇
◎三大巨擘 联袂筑造:卓越集团联袂融创中国、景瑞地产,择址国家5A级虞山尚湖景区,以前瞻规划理念,匠著宜居恒产。
6.社区规划篇
◎约1.08低容积率/约13万方联排、叠加、洋房三大匠心设计产品/社区滨水景观/八山、八水、八园、十二巷/四重归家礼序/立体绿化,沉浸式园林景观/全龄化社区配套
◎墅区低密度带来的居住感:1/绿意盎然的社区环境,2/宽适开阔的生活空间,3/对于居者隐私的绝对保护,4/丰富自由的美学建筑设计
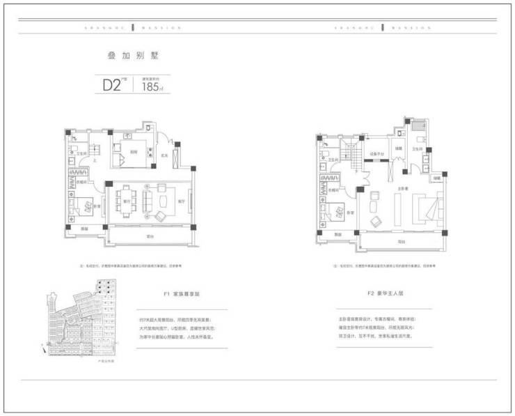
户型鉴赏
7.服务&圈层篇
◎铂金物管,专属服务:由国内优质物管团队,对标考究物业服务周到细节,以高阶管家服务标准,为湖语尚院主人量身定制恰如其分的贴心礼遇。
◎湖山美学馆,家族会客厅:健身娱乐、茶馆书吧、国宾宴会厅、贴身管家服务等贴心礼遇一应俱全,引领常熟高阶墅式生活方式
常熟卓越·湖语尚院
售楼处预约中心电话:400-000-0460转6999【天眼查认证】
预约来电尊享内部优惠,开发商案场销售一对一热情服务,提前24小时预约,看房不收取任何费用!
Sales Office reservation center: 400-000-0460转6999 Make an appointment to enjoy the internal benefits, the developer's case sales one-to-one warm service, do not charge any fees to see the house!
声明:本文由入驻焦点开放平台的作者撰写,除焦点官方账号外,观点仅代表作者本人,不代表焦点立场。
