尚湾林语(售楼处)-尚湾林语售楼中心首页网站丨2025尚湾林语欢迎您丨最新楼盘详情
扫描到手机,新闻随时看
扫一扫,用手机看文章
更加方便分享给朋友
尚湾林语售楼处电话:400-000-0460转7777 【营销中心】
闵行「尚湾林语」售楼处电话:400-000-0460转7777 【营销中心】
_____欢迎来电咨询丨〢丨专业一对一热情服务丨〢丨看房需提前预约
——如有侵权请联系我们删除丨〢丨网上售楼中心24小时销售热线〢
最新消息:闵行颛桥「尚湾林语」正在热销中!推出建面约81-149㎡两房到四房!总价约400万级!
⛩项目名称:「尚湾林语」项目简介:闵行颛桥品质住宅
最新动态:正在热销中
区域板块:闵行颛桥
产品介绍:建面约81-149㎡两房到四房 总价约400万级
商业配套:项目周边有龙湖上海闵行天街、颛桥万达广场等
周边学校:周边有闵行区马桥实验学校、闵行区北桥中学、银星小学等
交通配套:距离5号线剑川路站约1公里】、15号线、23号线&嘉闵线(在建中)
医疗配套:上海市第五人民医院、沪闵医院、闵行区中西医结合医院等
尚湾林语售楼处电话:400-000-0460转7777 【营销中心】
尚湾林语售楼处电话:400-000-0460转7777 【营销中心】
,赞1地段
交通配套:项目地块临近沪金高速申嘉湖高速,距离5号线剑川路站约1公里。
商业配套:项目周边有龙湖上海闵行天街、颛桥万达广场等。
龙湖上海闵行天街
教育方面:周边有闵行区马桥实验学校、闵行区北桥中学、银星小学等。
上海闵行区马桥实验学校
医疗方面:上海市第五人民医院、沪闵医院、闵行区中西医结合医院等。
尚湾林语售楼处电话:400-000-0460转7777 【营销中心】
复旦大学附属第五人民医院
2产品
尚湾林语所在颛桥板块,联动价约6.2万,主力百平米3房总价仅约500-600万!
这样的价格,比两年前颛桥首发住宅6.4万的价格还要便宜!
项目首开楼栋示意图/实际以交付为准
环顾整个闵行,也是价格谷地的存在。从整个闵行主城区来看,与尚湾林语同样在颛桥的颛兴路的项目,以及吴泾元江路的项目,价格已经直逼7万/㎡。
再往上梅陇春申已经7.5万/㎡,外环以内莘庄、七宝全线突破8万/㎡,梅陇古美甚至直逼9万/㎡!
就尚湾林语约6.2万元/㎡的均价而言,简直就是整个闵行主城区内的价格门槛!
示意图
项目的整体容积率仅为1.6-1.8,要知道,这是一个全小高层住宅,其他类似项目的容积率要在2.5左右,高低配小区甚至都只有到2的容积率,而尚湾林语舍弃了追求利润的高低配,打造了这样一个超低容积率的全小高层社区,实属难得。
尚湾林语售楼处电话:400-000-0460转7777 【营销中心】这样的设计确保了足够的楼间距,首开的这批房源,楼间距最大达到了38米,即满足了采光,也开阔了视野。
效果图/实际以交付为准
有了足够的社区空间,才能打造出极致的园林。
尚湾林语售楼处电话:400-000-0460转7777 【营销中心】社区由景观轴和生活轴构成了一个“十字轴线”,布局多元组团。一条天然河道从小区穿过,构成约15万方的天然水域,打造未来理想水岸。多数住宅都实现三面至四面景观环绕,坐拥揽园望林观水视野。
一期以大规划、高品质、全业态征服购房者,尚湾林语售楼处电话:400-000-0460转7777 【营销中心】生态、商业、教育、人文、生活...齐聚,首开即成为当之无愧的“TOD王者”。
二期正在热销中,这次千万不能错过!
尚湾林语整体四个地块,9-17层的小高层,大大提升了得房率。
效果图/实际以交付为准
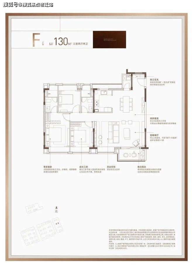
二期户型图如下:
精装方面,尚湾林语售楼处电话:400-000-0460转7777 【营销中心】据悉项目使用的精装品牌与颛桥几个高品质新盘相当。室内中央空调、地暖、卫浴等均采用国内外一线品牌,装修档次媲美市区10万+项目。跟区域内其他项目相比,差价约1万/㎡的尚湾林语就更值了!
尚湾林语售楼处电话:400-000-0460转7777 【营销中心】
_____欢迎来电咨询丨〢丨专业一对一热情服务丨〢丨看房需提前预约
——如有侵权请联系我们删除丨〢丨网上售楼中心24小时销售热线
声明:本文由入驻焦点开放平台的作者撰写,除焦点官方账号外,观点仅代表作者本人,不代表焦点立场。
