中冶锦绣公馆(杭州)首页网站-2025楼盘评测_中冶锦绣公馆|最新价格|配套户型丨最新房价+户型图+小区环境+配套+售楼处电话+一房一价
扫描到手机,新闻随时看
扫一扫,用手机看文章
更加方便分享给朋友
杭州拱墅区中冶锦绣公馆售楼处电话☎📞📱:400-000-0460转8888
我们以客户为中心,用心服务,只为让您拥有一个满意的家。
温馨提示:来访需提前两小时预约,以免直接参观无销售接待!
无论城市如何发展,杭州西湖始终是人们心中难舍的记忆。对于杭州人来说,居住在西湖,是一种记忆的溯源,也是长久的期愿。在倚湖而兴的杭州,可以说西湖就是杭州的繁华原点、贵脉之根。
图片来源于网络
最为显眼的“欢迎回家”,更是让人心生澎湃。一直以来,交付都是决定项目品质与口碑的重要一环。从房屋质量的呈现,到专业水准的展现,以及细致入微的物业服务,环环相扣,精准配合,方能成就一次满意的交付。
中冶·锦绣印雄踞西湖文教芯,直线距离仅约3公里。以现房大平层,献礼向往西湖的城市菁英,共同徜徉“出则繁华、入则宁静”的从容生活。

作为中冶置业落子杭州的高端现房项目,建筑立面、围合住区、空间营造等每一处细节,都倾注了万分努力,无不彰显眼见即所享的豪宅感。
中冶锦绣公馆诚邀日清、朗道、HWCD三家“大师团队”,分别担纲建筑、景观及室内设计。 项目以宋式美学为设计理念,以华尔道夫酒店为设计原型,开辟杭州现代典雅建筑风格之浪潮,打造立于杭州文教之上的奢侈艺术品。

注入宋式美学设计理念,以华尔道夫酒店为灵感来源,选用阿鲁克邦香槟金色铝板,营造出地标级的奢华感。入户电梯奢配七大件原装进口的日立电梯,室内配置旭格系统门窗以及国际一线的厨电卫浴品牌。
公共区域的规范也有调整,比如风雨连廊。楼盘里常见的风雨连廊属于有永久性顶盖,按新规定,双柱围合,计全面积,单柱算半面积,这将直接减少开发商的利润。
可以预见的是,未来有风雨连廊的新盘将越来越少。户型和园区的退化在这两年的楼市越来越常见,归根结底还是以前的政策相对宽松,监管没有现在这么严格。
风雨连廊示意图
公寓拥有属于自己的大门、围合园林,人车分流管理。由于是围合式布局,园林因此拥有更大的景观面。在园区内部配套方面,可以享用住宅区域的地下会所、恒温泳池、健身房等,属于市面上的高端序列,符合城西精英的气质。
定位高端进阶的中冶·锦绣公馆便就此革新,通过建筑面积约236-273m²西湖平墅给出了人们期待已久的答案。以净高3.9米的层高营建家庭社交会客厅,突破市面上一般产品3米高度,于纵横之间极大延展客餐厅空间感与视觉感。

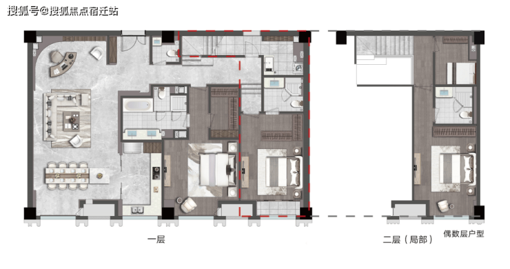
项目236㎡户型示意图
奢阔南向4开间,搭载宽敞通厅与观景落地窗,预留给每一个功能空间的尺度都很实用且合适。确保视野开阔之余,也能让不同生活习惯的家人互不干扰。且大尺度采光面,极大提升舒适度,这对当代进阶圈层来说,无疑是高品质生活的美好诠释。
中冶·锦绣公馆236㎡户型图
阳光由此亲近入室,心境由此豁然开朗,面宽的大小直接影响生活的奢适尺度。中冶·锦绣公馆建筑面积约236㎡全明跃墅,以媲美豪宅的卧室标准,打造约4.5m开阔面宽,远胜于约3米的标准卧室面宽,提高改善居住的舒适度。
锦绣公馆样板房实景图
家,是生活的容器。作为西湖文教新一代大平层产品的代表,中冶·锦绣印以约3.9M纯粹净层高和局部约5.3M挑高空间(建面约236㎡跃层卧室),营造更加纯粹的家庭关系,充分满足人生不同阶段的居住理想,一步到位满足名仕家庭的生活所需。


样板房实拍图
270方做了四房三卫设计,其中一个卧室设计了室内阳台,解决了一部分客户对阳台的需求。另外所有的卫生间都是做了明卫设计,保障了卫生间的通风及采光。
约12平米、u型设计并配置了博世5件套的厨房,让不少前来看房的女性朋友为之心动,毕竟在这样一个宽敞又明亮的厨房里,做饭也是一种享受吧。
中冶·锦绣公馆270㎡户型图
现房实景大平层,为了极致自然与建筑与空间的体验,中冶·锦绣印创新打造一个L型的270°环幕景观视野,让视野从平面升级为立体,打破室内外的界限,将窗外西湖的秀丽山水和城市的璀璨繁华更好地纳入日常,为居住提供更自然生态的空间感受。
配置七大件进口日立电梯的中冶·锦绣公馆给他留下了深刻印象,短短数秒的沉稳升降便可直达家中。他不禁想起曾经父母的给予总是那么无微不至,一部电梯的改善介入,让父母的回家路便捷无忧,这份无言的爱,是两代人岁月的表白。
中冶·锦绣公馆270㎡实景图
最具诚意的,还是它不惜成本的装标:大金中央空调、百朗新风系统、厨房选用博世五件套(双开门冰箱、洗碗机、蒸箱、油烟机、电磁炉)。霍尼韦尔的厨房净水器、高怡的龙头和花洒、杜拉维特的马桶和台盆…看得出来:所有用具都是经过精心甄选的大牌。
锦绣公馆实景拍摄
『西湖的臻藏』
著写繁盛千年的杭城
建面约236-273㎡西湖平墅
净高约3.9米,局部5.3米,限量臻藏
236方局部跃层.总价1000万起。273方总价1100万起。产权年限:40年,建筑类型:小高层,交付标准:精装。燃气入户(现房)!车位比:1:1.2,会所:健身房、恒温泳池!
杭州拱墅区中冶锦绣公馆售楼处电话☎📞📱:400-000-0460转8888
我们以客户为中心,用心服务,只为让您拥有一个满意的家。
温馨提示:来访需提前两小时预约,以免直接参观无销售接待!
声明:本文由入驻焦点开放平台的作者撰写,除焦点官方账号外,观点仅代表作者本人,不代表焦点立场。
