2025南京云尚紫阙(云尚紫阙| 云尚紫阙售楼处电话)首页网站-楼盘详情-南京云尚紫阙售楼处欢迎您-楼盘测评-户型配套
扫描到手机,新闻随时看
扫一扫,用手机看文章
更加方便分享给朋友
南京云尚紫阙售楼处电话☎:400-000-5503转2222【售楼处已认证】
南京云尚紫阙营销中心电话☎:400-000-5503转2222【营销中心已认证】
云尚紫阙开发商售楼电话☎:400-000-5503转2222【开发商已认证】
开发商
云尚紫阙由奥体建设,正荣两家开发商联合开发,原名南辰紫阙,后因正荣暴雷,内部调整,改名云尚紫阙。开发商不用多说,也是沿用了翡丽的模式,一个专业级的民企配上一个国企,只是没想到正荣暴雷,拖累了这个项目。

02.
小区规划
小区共计7栋29-31层高层,面积有142,180两种,因为东边户可以看见七桥瓮公园,景观较好,清一色都留给了180户型,西侧排布了142户型。小区共计548户。户型排布上是没什么问题,绝对有人会为了七桥瓮公园的景观买单。


03.
区位
云尚紫阙单论位置绝对是“四叶草”中最好的。东侧可以俯瞰七桥瓮公园,南侧目前也没有什么高楼房,能看到南外明远,华润万象城,景观视野绝对的无敌,在整个大校场也找不到这种房子。


双地铁覆盖
直线距离约100米| 5号线七桥瓮站(在建),贯通南京主城
直线距离380米|10号线承天大道站(在建),覆盖河西,江核,南部新城,麒麟新城

唯一的缺陷是东侧和南侧受双主干道影响,会有噪音。但是我去实地考察了以后,发现影响也没有这么大。

04.
外立面
“四叶草”均未使用全干挂铝板外立面,云尚紫阙也采用铝板搭配真石漆,整体的窗墙比还不错。

05.
物业
正荣物业放在南京其他项目可以说还行,放在大校场真的不及格。在大校场一堆金基、万象、保利里面排不上号。当然如果单论“四叶草”,正荣、新希望、以及电建物业,这三家都不及格。我可没乱讲,这三家物业公司其中有两家所在的开发商我曾经服务过。另外一家在南京为数不多的项目都在被业委会闹过换物业。
06.
景观
四叶草受限于当时开发商的成本价和销许,整体景观做的都很一般。虽然说也选用了乌桕、桂花等树种,但整体层次不够丰富。云尚紫阙的绿化在四叶草中中还不错,水系,儿童游乐场,景观会客厅一一俱全。



07.
会所
云尚紫阙带了泛会所,在四叶草里面只有翡丽跟紫阙有,因为整体地块比翡丽铂湾大,所以会所做的比翡丽会更好。但是会所做这个东西难的不是建设,而是维护,再加上不收会所费,后期维护也是难题。
08.
地库
云尚紫阙目前在我看来最大的槽点就是地库,去看过就知道真的是一言难尽,我也不上图了。目前说还没有正式交付,也没有移交物业,还有很大的改进空间,希望开发商能干点人事

09.
户型
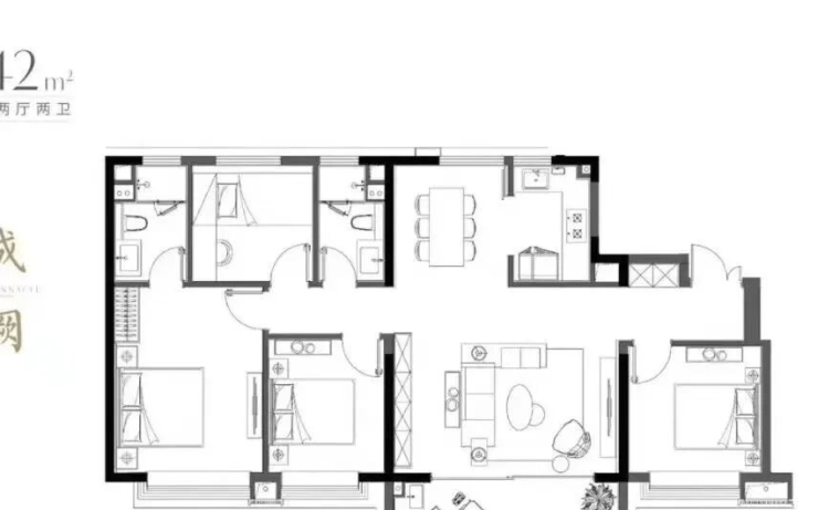
正荣虽然说是出了名的套路王(就比如说在江北干的那些事),但是专业度还是够的,未暴雷之前,户型还是不错的。143平中规中矩,四室两厅两卫,经典的四开间朝南户型,三个房间朝南。

在这里吐槽一下云尚紫阙143平的样板间。餐厅位置打了个餐边柜,放了餐桌,我猜测是餐边柜跟餐桌的尺寸有问题放不下,又把厨房改成了开放式厨房,不伦不类,而且显得餐厅位置特别拥挤,其他的开发商都是想尽办法把样板间走的空间感更好,这......房子不错,样板间做成这样,卖不好也是有原因的。

180平约40㎡主卧套房,步入式衣帽间、干湿分离卫浴间、豪华浴缸、双台盆;主卧东面做了观景阳台,直面秦淮河和七桥瓮湿地公园。这视野,这景观,南部新城独一份。前两天也跟一个买云尚紫阙的业主交流了一下,她就是看到这视野走不到道了,毫不犹豫就买了。

10.
室内装修
云尚紫阙配备了六恒的科技系统,室内装修应该仅次于翡丽柏湾。该用的也都用了,耶鲁的智能门锁,博世四件套(灶具,油烟机,洗碗机,蒸烤⼀体机),唯宝的马桶,汉斯格雅的恒温花洒。如果阳台能用三玻两腔封闭就更完美了,可惜没有(当然四叶草都没用)。

南京云尚紫阙售楼处电话☎:400-000-5503转2222【售楼处已认证】
南京云尚紫阙营销中心电话☎:400-000-5503转2222【营销中心已认证】
云尚紫阙开发商售楼电话☎:400-000-5503转2222【开发商已认证】
声明:本文由入驻焦点开放平台的作者撰写,除焦点官方账号外,观点仅代表作者本人,不代表焦点立场。
