广州保利南方财经大厦→最新楼盘评测→特价房源限时呈现→南方财经大厦售楼处接待中心→售楼处电话认证→最新动态全掌握→年中超值钜惠房源→百度问一问
扫描到手机,新闻随时看
扫一扫,用手机看文章
更加方便分享给朋友
2025广州保利南方财经大厦(保利南方财经大厦| 南方财经大厦售楼处电话)首页网站-楼盘详情-广州保利南方财经大厦售楼处欢迎您-楼盘测评-户型配套

【黄金区位】黄金三角、广州人工智能与数字经济试验区,多重规划定位加码!
广州一江两岸三片区核心,国际金融城与珠江新城、琶洲电商区联动互补,共同发展;
与琶洲、鱼珠片区共同打造广州人工智能与数字经济试验区,其中国际金融城以发挥数字金融、数字服务、数字文化的引领作用,承担金融服务体系的重任。

【区域首发】金融方城15座总部大厦首发项目,目前方城唯一在售总部级办公物业!
金融方城是广州国际金融城内有且面积只有0.2平方公里的城中城,方城内仅15块地,本项目作为方城首发项目,目前已顺利封顶,抢先一步占领湾区发展红利。【金融高地】湾区金融之眼!与一行两局、60+世界500强金融企业为邻,铸造广州金融高地!
跻身广州最高端金融企业总部聚集高地的头等舱,对标伦敦金融城,引领大湾区金融产业的集聚与发展,共享名企效应,共拥高端圈层。

【立体交通】地上五横四纵+地下五层六轨立体交通网络全覆盖,快速通达全城,1小时瞬达湾区!

地上五横四纵三大桥:快速接驳华南快速、京珠高速等城际快速干线
“五横”——中山大道、黄埔大道、花城大道、临江大道、广园快速;
“四纵”——华南快速、科韵路、车陂路、环城高速;
地下五层六轨:213万方地下五层空间,集交通、商业于一体
【1条城际:广佛环城际】:在建,首个隧道已贯通,未来建成10分钟可达广州南站、20分钟达白云机场,1小时辐射湾区主要城市;
【2条地铁:地铁4&5号线】:已通车,距离4&5号线车陂南地铁站直线距离700m,5站即达珠江新城;
【3条新型交通线】:形成三线五站布局(规划中)

【亿万配套】五层地下商业体+步行街商业,享受全天24小时城市顶级商业配套 !
集交通、商贸于一体的五层地下空间,将打造大型特色文娱食商广场;
同时金融城裙楼通过空中连廊连接打造约3万方复古“岭南风情街”,打造集娱乐、休闲与办公为一体的办公空间。

【产品特点】
1、10米层高奢阔大堂,升级企业形象
2、电梯高低分区,员工通勤分流有序,提升办公效率
3、可开启窗扇设计,灵活实用,绿色办公
4、24小时可独立控制VRV空调,节能环保
5、三层中空LOW-E夹胶玻璃幕墙,采光通透,环保安全
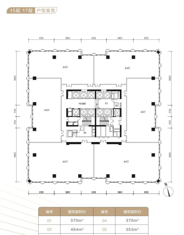
🥇【户型鉴赏】

首先,它是金融方城首发且唯一在售的总部级写字楼,产品稀缺性不言而喻。项目总建筑面积约 10 万㎡,是一个集甲级写字楼、商业等多功能于一体的综合体。

再看它的产品特点,更是令人心动。10 米层高的奢阔大堂,瞬间升级企业形象,让每一次出入都充满仪式感。电梯高低分区,员工通勤分流有序,极大地提升了办公效率。可开启窗扇的设计,灵活实用,为绿色办公创造了条件。24 小时可独立控制的 VRV 空调,节能环保,让您随时享受舒适的办公环境。还有那三层中空 LOW-E 夹胶玻璃幕墙,采光通透,既环保又安全。

声明:本文由入驻焦点开放平台的作者撰写,除焦点官方账号外,观点仅代表作者本人,不代表焦点立场。
