2025同济蟠龙里(营销中心)首页网站-青浦徐泾同济蟠龙里销售中心(售楼处)-楼盘欢迎您-地址-价格-户型-小区环境-楼盘详情-交房时间-周边配套-售楼处电话
扫描到手机,新闻随时看
扫一扫,用手机看文章
更加方便分享给朋友
同济蟠龙里售楼处电话:400-0000-460转接1111
同济蟠龙里售楼处电话:400-0000-460转接1111
同济蟠龙里售楼处电话:400-0000-460转接1111
【温馨提示:看房请提前线上预约,享受内部优惠】
Sales Office Phone: 400-00000-460 Transfer 1111
【 Friendly reminder: Please make an online reservation in advance to enjoy internal discounts when viewing the house 】
整个大虹桥如今不只是规划了,而是一个实实在在的优质置业区!
最新消息!大虹桥核心区+双轨交+超百万方高端商业,同济蟠龙里将推出建面约100-145㎡3-4房“全明星”产品,无连廊+无过道的飞机户型,联动价6.5万/㎡!
户型方面,项目主推建面约100-145㎡3-4房,联动价6.5万/㎡!
有一个前提是,由于项目是小高层住宅,所以全是无连廊的设计,这一点在同级别的新房中十分少见,这会让室内的实际使用率更高,并且采光也更加优秀。
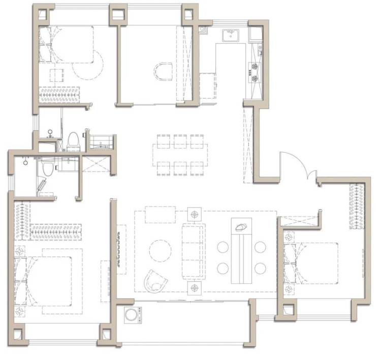
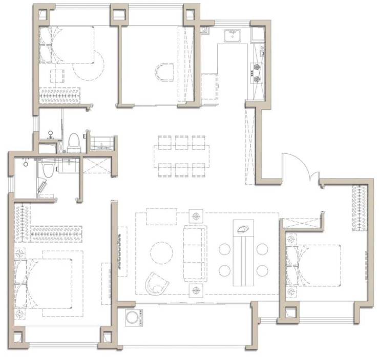
最新户型图如下:
建面约100㎡3房2厅2卫户型图
非常标准的飞机户型,室内无过道,几乎没有空间浪费。
同时,全卧室带飘窗,客厅+次卧带宽面阳台,在加上南北通透的设计,这个户型的采光、视野以及通风都非常出众。
细节方面,入户玄关+主卧套房+客卫干湿分离,这个户型几乎做到了一个好户型应该有的所有。
建面约145㎡4房2厅2卫户型图
大横厅的设计,让这个户型拥有堪比别墅的南向采光面,这个尺度感以及采光通透度非常出众。
同时,横厅也可以当做一个灵动空间,不管是作为孩子的游玩天地、父母的瑜伽空间还是健身区域,都是很好的选择。这个灵动空间让这个户型承载了更多的生活想象。
最后,项目是精装交付,交付标准颇高:日立的中央空调+地暖,德普莱太的新风系统,并且是包含了热交换和PM2.5过滤功能的高端系列。
卫生间方面:摩恩的马桶、单柄冷热水龙头、台下盆、手持花洒;科勒的玻璃淋浴房。
厨房方面:科勒的单斗不锈钢水槽、抽拉式龙头;方太的双头燃气灶、平板顶排式吸油烟机、洗碗机。
当然,不仅仅是大品牌,在细节上同济蟠龙里更是匠心十足。例如:
洗碗机是方太的高端型号,15套大容量可洗锅。
灶台下方,铺设了全覆盖的台面撑板,可大大降低高强度使用后台面开裂的可能性。
客厅预留电动窗帘插座,方便业主后期加装等,都体现了开发商在细节上的用心。
同济蟠龙里售楼处电话:400-0000-460转接1111
同济蟠龙里售楼处电话:400-0000-460转接1111
同济蟠龙里售楼处电话:400-0000-460转接1111
【温馨提示:看房请提前线上预约,享受内部优惠】
Sales Office Phone: 400-00000-460 Transfer 1111
【 Friendly reminder: Please make an online reservation in advance to enjoy internal discounts when viewing the house 】
五一假期要来了,你是不是还在纠结去哪玩?机票酒店贵得离谱,景点人挤人,出门旅游已经不再是轻松的事儿了。但其实留在上海,也可以拥有一个既省钱又好玩的假期。
今天小编就给大家整理了5个在上海市中心的免费打卡地,风景美、氛围足关键是——不用花钱!直接拉上朋友走起,拍照遛弯发朋友圈,轻松又自在!
1外滩:永不过时的城市名片
说到上海,外滩绝对是绕不开的存在。它已经不是“景点”这么简单啦,更像是这座城市的脸。站在外滩观景平台,一边是欧式的老建筑,一边是陆家嘴的高楼“四件套”,古今交错,特别震撼。
这里白天,适合拍照,而且晚上灯光一亮,更是美得“惊为天人”。无论是初临上海,还是久居上海的人,其实都值得再去走一走。
地址:黄浦区中山东一路
交通:地铁2号线或10号线,南京东路站下车
2豫园商城:吃吃逛逛一站式搞定
如果你钟情于热闹的老上海韵味,这样豫园商城定然不可错过。此处不但有豫园,还有城隍庙;并且也有南翔馒头、上海老饭店这类纯正的老字号。闲步一圈,品尝小吃,拍摄老街,时间竟然转瞬即逝。
这里虽然人很多,但是烟火气息却十分浓郁。无需门票,走进去的那一刻,仿佛就像是穿越回到了往昔那般。
地址:黄浦区方浜中路269号
交通:地铁10号线,豫园站下车
3上海博物馆(人民广场馆):艺术与历史的大宝藏
喜欢文艺气息的朋友,推荐你来上海博物馆。这可真是中国古代艺术的大本营呢,陶瓷、书画、玉器、青铜器馆藏有上百万件,而且其中很多都是国宝级的藏品。
重点是免费参观,而且需要提前预约!在小程序上搜“上海博物馆”就能够轻松搞定,其实建议大家早点进行预约,因为五一的时候人会非常多。
地址:黄浦区人民大道201号
交通:地铁1号线、2号线或8号线,人民广场站下车
预约提示:人民广场馆需提前预约(东馆免预约)
4武康路:走进电影里的上海
想感受真正的“海派风情”?嗯那就去武康路走一走呗。这条街呢,非常安静,而且两边都是民国时期的老房子,每一砖每一瓦都散发着独特的味道。尤其要说那武康大楼,拍照真的是太出片啦。
这条路上还有很多咖啡馆和小店,很适合慢慢逛、慢慢看适合citywalk爱好者。
地址:徐汇区武康路
交通:地铁10号线,交通大学站下车
5田子坊:藏在弄堂里的艺术角落
田子坊虽名气颇大,而且每次前往,都能有新的发现。那老弄堂之中,藏着画廊,藏着文创小店,藏着小酒馆,还有各种特色小吃。老上海的那种日常感,在这里居然还能够找得到。
很多人都说田子坊商业化较为严重,不过只要你轻轻走进那一条条小巷子,依然能够看到那晾衣杆,还有那古老的石库门,以及居民家中那懒洋洋的老猫……这样的景象,恰恰才是最为真实的上海味道。
地址:黄浦区泰康路210号
交通:地铁9号线,打浦桥站下车
📌最后提醒
这些地方,虽然不收门票,但是上海博物馆人民广场馆,记得提前预约,特别是五一假期,不然到了门口,也进不去哦!“一定要提前预约,否则可能白跑一趟呢!”
不想远行、不想花钱、但又想有个充实的五一假期?这5个地方安排起来!
拍照、散步、吃美食、看展览一天一个点,五一直接玩到爽!
如果你觉得,有用的话,记得点赞转发收藏!下次朋友问你“五一去哪玩”,直接甩这篇给他!
声明:本文由入驻焦点开放平台的作者撰写,除焦点官方账号外,观点仅代表作者本人,不代表焦点立场。
