滨江8号(售楼处)官方网站-滨江8号销售中心(营销中心)-滨江8号楼盘欢迎您-小区环境-户型-价格-地址-楼盘详情-周边配套-售楼处电话-交房时间
扫描到手机,新闻随时看
扫一扫,用手机看文章
更加方便分享给朋友
陆家嘴·滨江8号售楼处官网📲:↱400-0000-460接通,输入分机号5555↲(售楼处电话\地址)(➤案场接待实行预约制⥺)(⤋为避免客户临时来访无人接待,提前2小时以上电话预约看房参观送大礼包⤣)
‼单价仅6万即可拥有‼😯陆家嘴一线江景房😯
坐看陆家嘴三件套亮灯瞬间🥂感受独属于魔都的繁华💯
陆家嘴滨江8号
项目卖点
区位优势
地处上海陆家嘴金融贸易区,近江约100米。陆家嘴被誉为中国的华尔街,更是上海的金融中心、经济中心和贸易中心,是全球金融中心,陆家嘴金融城,与纽约华尔街、伦敦金融城并称为世界三大金融中心,陆家嘴滨江,也成为并肩纽约中央公园、伦敦海德公园的顶级资本豪宅区,成为世界豪宅的中国封面。
陆家嘴汇聚上海中心大厦、上海环球金融中心、金茂大厦和东方明珠四大地标建筑,260多幢商务办公楼宇、140多家跨国公司地区总部、340家全球500强企业、3000多家国内外专业服务机构、6000多家中外金融机构林立于此。
作为陆家嘴稀有的塔尖公馆,地段资源不可再生,黄浦江一线景观不可复制。俯瞰黄浦江的壮阔风景线,占据黄浦江21公里“黄金岸线”的黄金视角,与滨江公园咫尺距离,直赏上海中心、上海环球金融中心、金茂大厦“陆家嘴三件套”的城市天际线。
交通优势
世界级立体交通 三轨双桥六隧
三轨
4、14号线浦东大道站仅约200米
贯通浦西浦东核心商圈:豫园、新天地、静安寺
4号线被称为内环换乘王,
可与1/2/3/6/7/8/9/10/11/12/14 号线换乘
19号线(在建)浦东南路站约500米
双桥
杨浦大桥
-约3公里
南浦大桥-约4.3公里
六隧
大连路隧道-约1.1公里
人民路隧道-约1.4公里
新建路隧道-约1.1公里
复兴路隧道-约2.3公里
延安东路隧道一约2.6公里
江浦路隧道-约2.1公里
公交
609、610、981、81、85、313、455、522、774、浦东15路、浦东62路等20条线
轮渡
其昌栈渡口、泰东路渡口、东昌路渡口
高铁/机场
虹桥站——约25分钟 浦东机场——约35分钟
商业配套
2KM国际商业圈
IFC国金、上海中心、正大广场、民生路太古里(在建)、浦东八佰伴、尚悦湾广场等国际知名商圈
城市核芯商业圈
新天地约4.8公里、人民广场约6.3公里、五角场约6.5公里、世博园约6.9公里
教育配套
冰场幼儿园、梅园小学、昌邑小学、东昌中学、建平中学西校、浦东实验高中、上海纽约大学
医疗配套
上海浦滨儿童医院约200米
东方医院(三甲医院)约800米
上海中医药大学附属中西医结合(三甲医院)约1.7公里
第一人民医院(三级公立眼科第7名)约2.9公里
仁济医院(三甲医院)约4公里
上海儿童医学中心(三甲医院)约4.2公里
上海交通大学附属新华医院约7公里
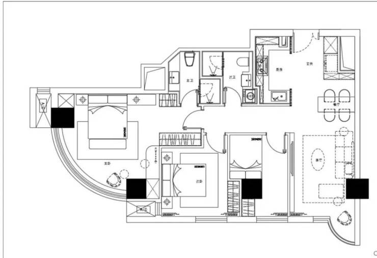
项目详情
声明:本文由入驻焦点开放平台的作者撰写,除焦点官方账号外,观点仅代表作者本人,不代表焦点立场。
