杭州SKP(售楼处) 首页 - 杭州SKP销售中心 - 环境 - 户型 - 价格 - 地址 - 楼盘详情 - 配套 - 电话 - 交房时间 - 配套 - 电话 - 交房时间
扫描到手机,新闻随时看
扫一扫,用手机看文章
更加方便分享给朋友
杭州SKP主场独栋商业
售楼处预约中心电话:400-000-0460转6999【天眼查认证】
预约来电尊享内部优惠,开发商案场销售一对一热情服务,提前24小时预约,看房不收取任何费用!
Sales Office reservation center: 400-000-0460转6999 Make an appointment to enjoy the internal benefits, the developer's case sales one-to-one warm service, do not charge any fees to see the house!
【SKP主场,300方稀缺独栋商业】
【现在抢,最当时】
一、【稀缺】拥江战略下,城市中心SKP地标商圈城市明星商业,黄金地段,稀缺珍售
二、【高消费域场】超级总部基地、19届亚运会亚运村、印象城/万象商业在旁,氛围浓厚的城市新中心和中央商务区围绕,聚焦城市高端消费力
三、【人流加持】2025年浙江杭州首家世界级高端商业SKP开业+SKP住宅业主+逾30000常住人口的亚运村+超级总部基地商务办公人员,人流密集
四、【交通配套】三桥三隧道三地铁+西兴大桥、复兴大桥、新二桥(规划)庆春隧道、博奥隧道,连贯大江南北,快速抵达全城
【整体简介】
1)项目业态:星潮映象府总建面11.85万方,包含住宅、住宅底商、300方独栋商业
2)地理位置:位于杭州城市新中心钱江世纪城核心区——盈丰路与鸿宁路交叉口
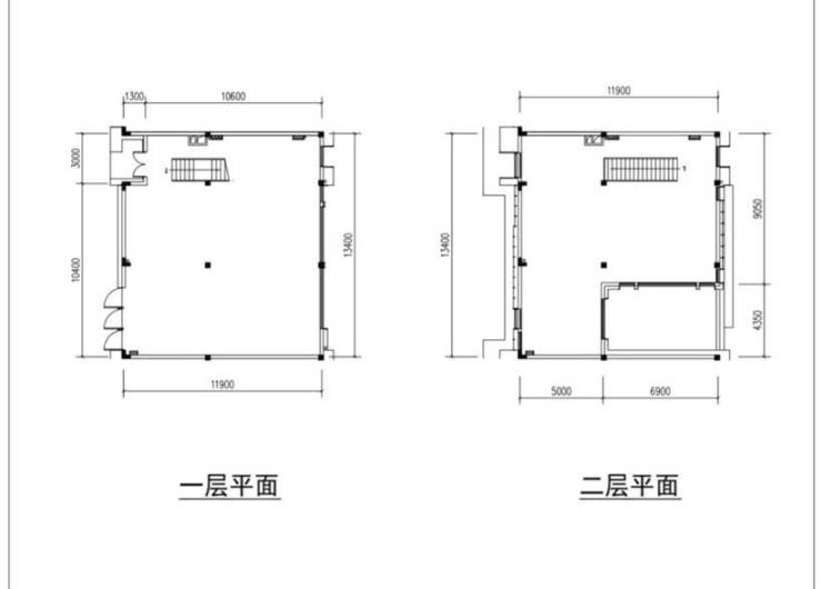
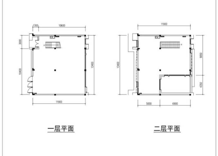
3)商业独栋在售:建面约300方(地上两层)
4)物业:万科物业
5)地铁口:2号线盈丰路站
6)示意图:
300方独栋商业实体:
杭州SKP主场独栋商业
售楼处预约中心电话:400-000-0460转6999【天眼查认证】
预约来电尊享内部优惠,开发商案场销售一对一热情服务,提前24小时预约,看房不收取任何费用!
Sales Office reservation center: 400-000-0460转6999 Make an appointment to enjoy the internal benefits, the developer's case sales one-to-one warm service, do not charge any fees to see the house!
声明:本文由入驻焦点开放平台的作者撰写,除焦点官方账号外,观点仅代表作者本人,不代表焦点立场。
