同济蟠龙里(青浦·同济蟠龙里)首页网站丨2025上海同济蟠龙里最新情报丨同济蟠龙里楼盘解析_售楼处电话丨户型地址
扫描到手机,新闻随时看
扫一扫,用手机看文章
更加方便分享给朋友
上海青浦同济蟠龙里售楼处电话☎📞📱:400-000-0460转8888
我们以客户为中心,用心服务,只为让您拥有一个满意的家。
温馨提示:来访需提前两小时预约,以免直接参观无销售接待!

2023年8月,上海二批次土拍,同济以总价133171万元成交青浦区西虹桥蟠东路西侧18-01、18-03、18-04地块,地块出让面积25495.5㎡,容积率18-01:2.0;18-03:1.2;18-04:1.2。溢价率9.66%,楼板价30346元/㎡,房地联动价65000元/㎡。
该地块就在蟠龙天地一期隔壁,接棒顶流。与一批次土拍的华发&江苏海润徐泾项目仅一路之隔,不过该地块靠近崧泽高架,或有一定的噪音影响。
项目四至:东至蟠东路、南至崧泽大道、西至蟠文路、北至龙联路。其中18-01为普通商品房,18-03为文体用地,18-04为商业用地,项目规划住宅套数下限293套。
蟠龙里总建筑面积50760.36㎡,容积率2.0,绿化率35%,由4幢14-16F小高层住宅围合而成。
建筑:现代风格建筑,追求立面造型的整体性,符合虹桥商务区整体城市风貌于细节之间呈现精心雕琢。
入口:气势磅礴入口,将艺术、文化与生活完美融合,尊迎归家居者入境。
景观:六大景观特色,风光铺满归境,予以生活以诗意,予以人居以艺境 。
架空层:更侧重实用功能与建筑美学有机结合,打造更多交流空间。
低能耗:24小时新风系统、355毫米大于普通建筑的外墙厚度、高性能外窗,降低50%建筑能耗。
据悉,同济·蟠龙里 推售100-145㎡3-4房,均价65000元/㎡,正在热销!售楼处&样板房已开放,可预约接待!
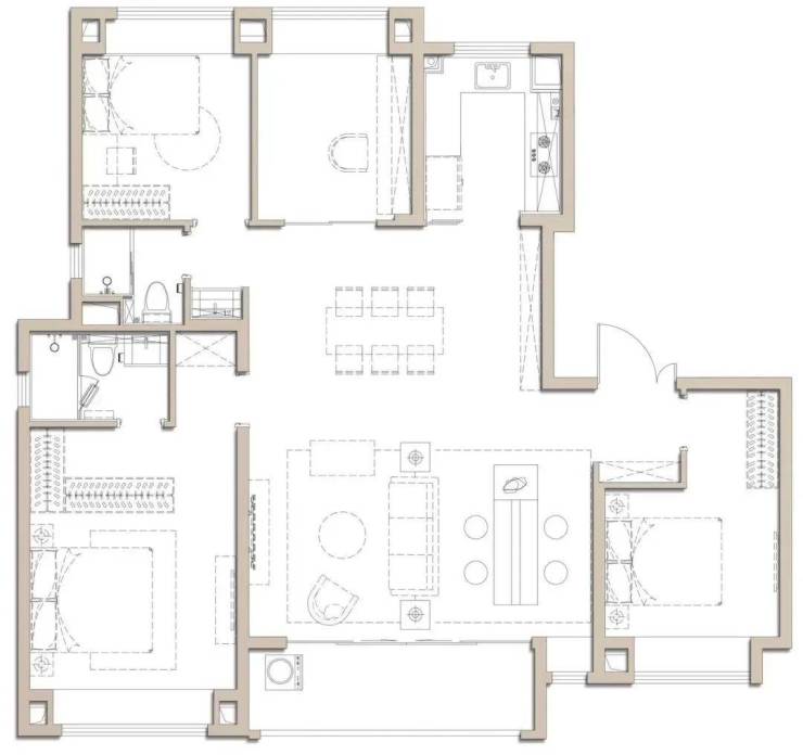
全套户型图发布:
「约100㎡ 3房2厅2卫」
建面约100㎡是个典型的飞机户型,全明户型南北通透,独立玄关实用美观,几乎无过道浪费,延伸了空间的尺度。
三开间朝南,主卧次卧朝南,搭配观景双开间阳台,从户型图上就能看到南向的开阔尺度。
主卧套房+大飘窗,包揽社区美景。儿童房温馨实用,书房功能性完善,根据不同家庭需求,三房空间可灵活运用,给家人亲而有见,互不打扰的私密生活。
「约145㎡ 3+1房2厅2卫」
大户型在上海将越来越稀缺,市面上非常饥渴,尤其是在徐泾,145㎡4房真的太少了。四房户型整体的舒适度和阔绰感显露无疑,两梯两户设计,动线更独立,私密性也更强。
约6.1米大宽厅,休憩娱乐从容有度。全明户型, 格局方正,每一寸空间都利用妥帖。
主卧套房+衣帽间+独立卫浴,空间表现力张力十足。充沛生活空间,能够打造除主卧、次卧之外的场景应用,如长辈房、影音室、书房、活动房等,按岁月成长的需求而随心切换。
同济·蟠龙里 项目坐落虹桥主城核心、地铁17号线蟠龙路站旁的天赋区位,坐拥虹桥主城高品质的国际配套。
交通方面:项目毗邻虹桥枢纽,距离17号线蟠龙路站直线约800米,出行十分便利。
崧泽高架西延伸已通车,自驾出行更加快捷。地铁17号线西延伸段将无缝连接苏州地铁10号线并直通嘉善。未来不仅能一站直达国家会展中心、两站虹桥交通枢纽,更能拥享长三角一小时生活圈。
商业方面:蟠龙古镇商业于今年开业,已成为新晋网红打卡点之一。除此之外,更有虹桥天地和龙湖虹桥天街这些中大型的商业中心,有电影院、泡汤、餐饮娱乐、购物服饰、艺术中心等等。日常购物还可以去COSTCO和山姆会员店。生活配套无比丰富!

教育方面:区域内不仅有英、美、德、法、韩等国际学校(针对外籍人士),还有一所16年一贯制的民办学校青浦世界外国语学校;公立学校则有上海世外教育附属徐和路幼儿园、徐泾幼儿园(上海市一级幼儿园)、徐泾小学(全国示范学校)、徐泾中学等(注:以上为周边现有教育配套,最终对口以交付后划分为准)。

医疗方面:开车可便捷到达华山医院西院、德达医院,还有远大健康城以及新虹桥国际医学中心。

生态方面:周边有三大公园环伺,徐泾港公园廊道、安踏体育主题公园以及蟠龙公园。

上海青浦同济蟠龙里售楼处电话☎📞📱:400-000-0460转8888
我们以客户为中心,用心服务,只为让您拥有一个满意的家。
温馨提示:来访需提前两小时预约,以免直接参观无销售接待!
声明:本文由入驻焦点开放平台的作者撰写,除焦点官方账号外,观点仅代表作者本人,不代表焦点立场。
