华夏·溪揽星院 (售楼处) 首页 - 华夏溪揽星院销售中心 - 环境 - 户型 - 价格 - 地址 -溪揽星院楼盘详情 - 配套| 电话 |交房时间 - 配套 - 电话 - 交房时间
扫描到手机,新闻随时看
扫一扫,用手机看文章
更加方便分享给朋友
华夏·溪揽星院售楼处官方热线TEL:↱400_000_0460-接通后输入分机号5555↲↲
(华夏·溪揽星院售楼处电话\地址)
(➤案场接待实行预约制⥺)
(⤋提前电话预约看房,有礼相送⤣)
华夏·溪揽星院
云城北·良褚旁·400万级·142㎡-186㎡纯低密实景叠墅
华夏·溪揽星院 | 云城北·良褚旁 纯低密实景叠墅
---
一、项目基本信息
华夏·溪揽星院是由品牌开发商华夏阳光倾力打造的纯低密叠墅项目,位于余杭精工西路与港渠路交叉口。项目总占地面积约36亩,规划建设36栋4层叠墅住宅,共计492户人家,容积率低至约1.2,绿地率约30%,是区域内罕见的纯粹低密住区。
项目主推142㎡-186㎡户型,总价400万级起步,为城市精英阶层匠心呈现有天有地的品质叠墅生活。
---
二、地理区位优势
溪揽星院坐落于杭州云城北翼板块,紧邻世界级文化地标——良渚遗址公园。这里不仅是中华五千年文明的实证之地,更是杭州不可复制的历史文化名片。项目周边5A级景区环绕,自然资源得天独厚,既有深厚的历史人文底蕴,又享有优越的生态环境,真正实现了“出则繁华、入则静谧”的理想人居。
云城作为杭州“举全市之力”重点发展的未来城市核心,规划范围达58平方公里,预计承载40万人口规模。区域内高起点布局高铁西站、航空航天中法学院、国家版本馆等重量级城市配套,已然成为杭州城市发展的下一个风口板块。选择溪揽星院,即是选择提前占位城市未来发展红利。
---
三、产品规划特色
项目采用上下双叠形制规划,颠覆传统叠拼产品的局促感,匠心打造真正动静分层、私密有致的墅居体验。1.2的超低容积率意味着更多的绿化空间与更开阔的楼间距,保障每一户都能拥有充沛的采光与良好的视野。
园林设计以“四水归堂”为核心理念,汲取传统东方美学精髓,通过三进院落的礼序布局,营造移步换景、一步一景的诗意景观体验。园区内植物配置考究,四季有花、常年有景,让归家之路成为一场穿越花园的旅行。
---
四、精工配置标准
华夏阳光专属精工研究所倾力加持,从人体工学到居住动线,从材料选型到工艺细节,共计43项精工设计标准贯穿始终。项目标配中央空调、全屋地暖、全热交换新风系统及末端净水系统四大舒适配置,全方位呵护家人健康,营造恒温恒氧恒净的舒居环境。精工品质,匠心可见。
---
五、实景交付保障
区别于市场上常见的期房销售,溪揽星院采用全实景交付模式。客户在购房前即可实地参观社区环境、园林景观及实体样板房,亲眼见证未来家的模样。所见即所得,消除一切不确定性,让购房更安心,入住更从容。
---
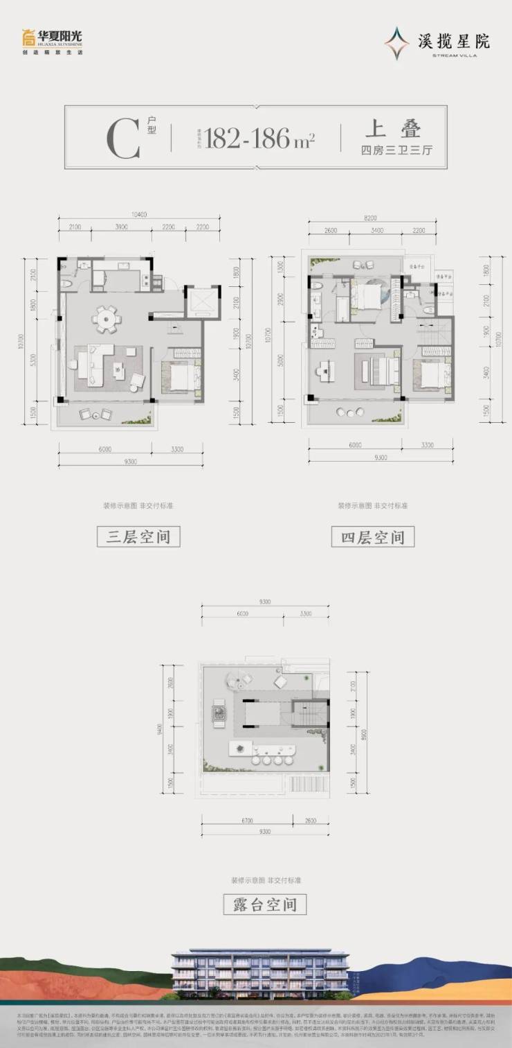
六、户型空间解读
项目户型面积段丰富,从约149㎡到186㎡满足不同家庭需求。各户型均采用餐客一体连厅设计,南向大面宽采光;主卧套房配置独立卫浴与衣帽空间,尊享私密起居体验。上叠产品赠送顶层景观阳台,俯瞰园区四季美景;下叠产品拥享多功能地下室空间,可根据家庭需求灵活改造为会客厅、健身房或私人收藏室。U型厨房、阳光父母房等贴心细节设计,悉心照料每一位家庭成员的日常所需。
---
400万级入住云城北·良褚旁·纯低密实景叠墅
华夏·溪揽星院 | 敬候亲临品鉴
声明:本文由入驻焦点开放平台的作者撰写,除焦点官方账号外,观点仅代表作者本人,不代表焦点立场。
