最新首页【29峯境】售楼处电话→【29峯境】售楼中心首页网站→【29峯境】楼盘百科详情-户型配套
扫描到手机,新闻随时看
扫一扫,用手机看文章
更加方便分享给朋友
宁波中国铁建·29峯境(花语江湾)
售楼处预约中心电话:400-000-0460转6999【天眼查认证】
预约来电尊享内部优惠,开发商案场销售一对一热情服务,提前24小时预约,看房不收取任何费用!
Sales Office reservation center: 400-000-0460转6999 Make an appointment to enjoy the internal benefits, the developer's case sales one-to-one warm service, do not charge any fees to see the house!
【中国铁建·29峯境(花语江湾)办公】
【项目简介】
中国铁建29峯境,择址宁波湾头RBD ,雄踞新三江口正核,是中国铁建地产匠心打造的城市封面著作。以国际化视野和前沿审美品位设计商务空间, 以“生态、中心、繁华、艺术”理念打造全场景商务,立序宁波,开创全场景办公的范本。
△效果图
【基础信息】
备案名:花语江湾
开发商品牌:中国铁建地产
房产性质:办公
楼层数:21层(1-3F为商业街区、4-5F为酒店配套、6-9F为开发商自持、10-21F为可售办公)
层高:约3.9米
面积段:一层10套,面积约96-190平方米,整层面积约1500平方米
装修情况:套内毛坯,公区精装修
均价:1.2w-1.3w具体一房一价
物业公司:中铁建物业
物业费:6元/月/平方米
【板块区位】
湾头RBD之上,赋能时代商务格局
中国铁建29峯境,傲立湾头核心,坐拥万象城及山姆会员店和自然风景双重臻贵资源,项目自带滨水商业街及轻奢酒店,与板块同生长共美好。区域内周边有通途路、环城北路,大闸路等城市主干道等成熟路网,近享北环高架、机场路高架,同时接驳地铁2号线、6号线(在建),未来7号线环城北路站(在建)步行可达,通达栎社国际机场、宁波火车站等城市坐标。城市黄金地脉之上,入席时代商务新格局。
△区位示意图
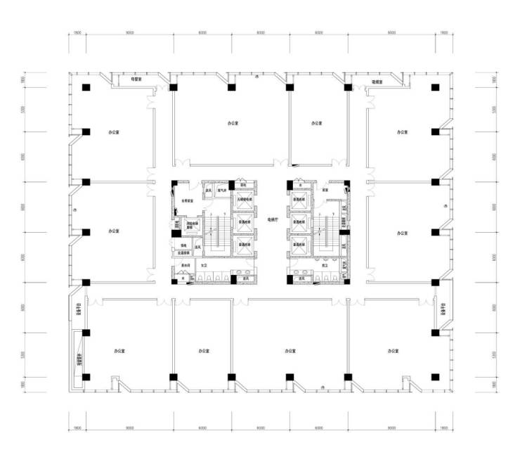
【户型赏析】

△户型示意图
国际商务基因
【时尚立面】全面屏玻璃幕墙,现代商务风范
采用大面积玻璃幕墙设计,整体建筑轻盈通透,构筑极具质感的外立面肌理
△示意图
【层高气度】约3米9奢阔层高,擎领商务高度
标准层高达约3.9米,震撼空间感和视野享受,让身份气度自然流露
△示意图
【大堂风范】前沿高定标准,擘画商务封面
构筑奢华入户大堂,以科技感&未来感&设计感,领创商务非凡空间尺度
△示意图
【高效办公】品牌硬件设备,赋能高效办公
六部蒂森电梯的设计,创享顶级硬件设施和成熟商务配套,不负湾头尖商务标杆
△示意图
【一级物业】中铁建物业,以臻心为美好赋能
拥有物业服务一级资质的中铁建物业,致力为每一位客户提供细致入微且精准化的贴心服务;利用物联网、大数据、云计算等技术的“T服务”,中铁建物业实现了“互联网+”的物业管理和办公模式,全面升级智慧新生活
△示意图
国企匠筑
【品牌力量】中国铁建地产,国匠央企
中国铁建地产,隶属于中国铁建股份有限公司,是国资委批准的16家以房地产为核心产业的央企之一,布局全国45个城市(含9个国家级新区) 239个项目,实现了京津冀、长三角、珠三角等主要城市群的全面布局,累计为超百万业主打造美好生活,致力做中国最具价值的美好生活服务商。
【深耕诚意】深耕宁波8载 每一部作品皆超越
中国铁建地产,以8载深耕的诚挚心意,致敬宁波。从青秀澜湾,至花语江湾,海语天下到东境润府,中国铁建以央企的雄心与实力,为宁波铸就一部部经典作品;与宁波共进,中铁建全力打造一席29峯境,成就商务新封面
全场景商务
从世界到宁波,中国铁建29峯境,以全场景办公,开创全场景办公范本,定义时代商务新封面
“S”treet
坐拥约2.2万方滨水商业 并肩国际生活场
自带约2.2万方滨河风情商业街,打造全场景办公体验打造
于商务办公之余,尽享慢节奏的高端商业情调
△效果图
Offi“c”e
多元商务格局,建筑面积约100-1500㎡商务空间
建筑面积约100-1500㎡商务空间 ,不仅给入驻者提供一个办公空间,更给予客户不同的可能性;未来办公将成多元化格局,实现工作、活动、休息、私人等丰富商务新空间
△示意图
Hot“e”l
高端轻奢酒店(规划中) 奢享国际商务范
中国铁建29峯境注重发展高端酒店配套服务的融合,打造对标国际的商旅服务格调,不仅能够赋予高品位且便捷的商旅服务,亦可承办各类高端会宴请及活动,奢享国际商务范
△示意图
La“n”dscape
一线滨水景观 悠享休闲时光
中国铁建29峯境,一线滨水景观视野,美景环绕,舒享清新鲜氧
奢享静谧生态,于繁忙的商务日常中舒展,于此感受身心的沁润
△效果图
Arcad“e”
一步万象城商圈 勾勒多元商务场
中国铁建29峯境举步便是高端商业体宁波万象城,满足日常商务所需,开启慢节奏的高端商业情调,更有山姆会员店进驻,在商务办公之余,开启一站式全能娱乐休闲生活
宁波中国铁建·29峯境(花语江湾)
售楼处预约中心电话:400-000-0460转6999【天眼查认证】
预约来电尊享内部优惠,开发商案场销售一对一热情服务,提前24小时预约,看房不收取任何费用!
Sales Office reservation center: 400-000-0460转6999 Make an appointment to enjoy the internal benefits, the developer's case sales one-to-one warm service, do not charge any fees to see the house!
声明:本文由入驻焦点开放平台的作者撰写,除焦点官方账号外,观点仅代表作者本人,不代表焦点立场。
