杭州浅山之家楼盘详情:浅山之家售楼处首页网站!房价/户型/欢迎您!!!!
扫描到手机,新闻随时看
扫一扫,用手机看文章
更加方便分享给朋友

一半湖山 • 一半城

A户型 72方 2室2厅1卫
B户型 82方 2室2厅1卫
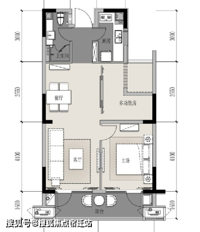
C户型 110方 3室2厅2卫
D户型 138方 4室2厅2卫
F户型 187方 6室3厅2卫


项目核心价值点
世界三大千岛湖 生态宜居城市
5A景区千岛湖因湖内散布的1078座翠岛而得名,是世界上岛屿最多的湖,与加拿大金斯顿千岛湖和湖北的阳新仙岛湖并列为“世界三大千岛湖”。千岛湖景区的总面积高达982平方公里,95%的地方为森林覆盖,林木蓄积量达全省第一,可以说是一座巨大的森林公园。千岛湖还被誉为“天下第一秀水”,水质在中国位居优质水之首,为国家一级水体,不经任何处理即达饮用水标准。
青溪新城 出则繁华 入则静谧
项目是属于青溪新城板块的核心位置,青溪新城是杭州市政府投资150亿重点打造的20大新城之一,整个新城规划用地38平方公里,未来规划人口数约10万人。餐饮、娱乐、居住、办公集于一体,是新城区块核心居住区的商业中心位置,出则繁华,入则静谧,前景价值不可估量。

品牌地产 八年浅山 生态建筑
六合地产集团有限公司成立于1998年,涉及房产、酒店、旅游度假等是一家综合性地产集团公司。2013年浅山一期亮相千岛湖,与湖的多年岁月相守。公司秉承坚持建筑与生态的和谐统一,营造充满生机的居住新空间。例如:24万平米的精品住宅小区——六合·天寓,25万方的千岛湖六合·浅山项目及利兹卡尔顿千岛湖六合度假酒店项目。
城市门户独揽人气 杭黄沪黄金经济圈
睦州大道为入城口,入城仅此一条主干道,通往老城区,沿街繁华构筑城市新界面。零距离客运中心,杭甬线路班次繁多。距离千黄高速入口约2公里,将与杭黄高铁把上海、杭州、千岛湖和黄山,组成了一条黄金旅游线及经济走廊。

声明:本文由入驻焦点开放平台的作者撰写,除焦点官方账号外,观点仅代表作者本人,不代表焦点立场。
