㊋翡雲悦府(2025NO.1@翡雲悦府)企业网站-首页精选:房价\户型图\楼盘评测
扫描到手机,新闻随时看
扫一扫,用手机看文章
更加方便分享给朋友
最新消息:浦东金色中环「华润中能建越秀翡雲悦府」预计将推出建面约120-140㎡高层&170-220㎡叠拼。
目前销售团队已组建,确定元宵节月份开放展厅!
翡雲悦府☏售楼处官网:400-000-0460接通,随后输入⑤⑤⑤⑤(翡雲悦府售楼处电话\地址)
2024年11月27日,华润置地&越秀&中能建联合体于七批次土拍中,经过202轮激战,最终竞得浦东新区Z000602单元20B-12地块,成交价78.97亿,楼面价74426元/㎡,溢价率40.37%。
翡雲悦府☏售楼处官网:400-000-0460接通,随后输入⑤⑤⑤⑤(售楼处电话\地址)
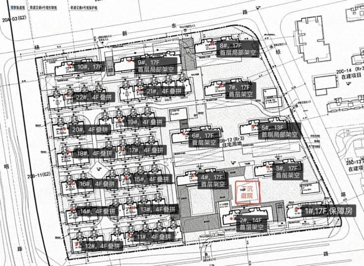
项目总占地面积53052平米,容积率2.0,总建面165000平米。其中,地上计容建面106104方,地上不计容建面8896平米,地下建筑面积50000平米,可售住宅高度约14~54米。
新杨思成为了首个触发“双高双竞”的地块。经过多轮竞指标,该地块装修标准提升至5000元/平方米,新增公共设施和开放空间300平方米,2%的高端人才住房配建比例,上述高品质建设各项要求将全部纳入土地出让合同,实现全生命周期监管,确保高品质建设要求落地。
项目规划:近日,地块发布设计方案公示,项目采用高低配的形式,推出高层+叠墅的复合产品类型,项目拟建拟建10幢13~19层高层住宅、12幢4层多层住宅、配套公建用房,项目采用人车分流设计,规划配有下沉式庭院。
翡雲悦府翡雲悦府☏售楼处官网:400-000-0460接通,随后输入⑤⑤⑤⑤(售楼处电话\地址)
项目规划示意图
预计将推建面约120-140㎡高层&170-220㎡叠拼!
产品方面,大概率会推出压箱底的产品线,加上苛刻的指标和豪华装修,品质非常值得期待!
华润中能建越秀新杨思翡雲悦府☏售楼处官网:400-000-0460接通,随后输入⑤⑤⑤⑤(售楼处电话\地址)
区位配套:
新杨思区域,作为“十四五”期间浦东重点打造的潜力区域之一,依托内中环之间良好区位优势,将以浦东建设“国际消费中心”为契机,打造“上海生活消费新高地”,规划成为浦东“金色中环”区域的微型中央活动区(MCAZ)。
2020年启动的金色中环发展带中,新杨思被单拎出来,成了唯一一个全部处于中环内的潜力地区。
邻近前滩的新杨思,想模仿大宁“商业先行+成片开发”的成功模式,打造一个集商业、住宅、产业、绿化为一体的未来之星。
交通方面,地块距轨道交通6/13号线东明路站约700米,周边有超10条公交线路,拥有杨高南路、杨思路、东明路等快速路。
医疗有上海杨思医院、上海明珠医院;商业有浦东三林亿丰时代广场。
翡雲悦府翡雲悦府☏售楼处官网:400-000-0460接通,随后输入⑤⑤⑤⑤(售楼处电话\地址)
教育设施方面,有上海市杨思中学、新世界实验小学,此外,项目东侧幼儿园已开工,预计2026年竣工;南侧九年一贯制学校已立项,预计2025年开工,2028年竣工,办学规模按27班设置,配备室内泳池。
幼儿园效果图
九年一贯制学校效果图
生态方面,项目附近设有中汾泾城市绿地、上南公园、云台路绿地、川杨河休闲绿地等大型公共空间,环境优美。
新杨思是继前滩、徐汇滨江之后,内中环仅存的一块成片开发区域,并且是一个全部都位于内中环的板块,「华润中能建越秀新杨思项目」非常值得期待。
翡雲悦府翡雲悦府☏售楼处官网:400-000-0460接通,随后输入⑤⑤⑤⑤(翡雲悦府售楼处电话\地址)
声明:本文由入驻焦点开放平台的作者撰写,除焦点官方账号外,观点仅代表作者本人,不代表焦点立场。
