大城小院_杭州大城小院最新房价|详情|交通|户型|配套
扫描到手机,新闻随时看
扫一扫,用手机看文章
更加方便分享给朋友
该项目是泰禾在浙江的首个“小院系”项目,位于环境优美、有“杭州硅谷”之称的银湖科技城板块,产品一脉承袭“院子系”的高标准,集萃新中式院落文化精髓,更是泰禾的创新之举。
泰禾野风·大城小院盘踞于午潮山森林公园,西山森林公司、黄公望森林公园的怀抱之中,三山环绕,与西湖同出一辙。规划合院、叠墅、高层产品。
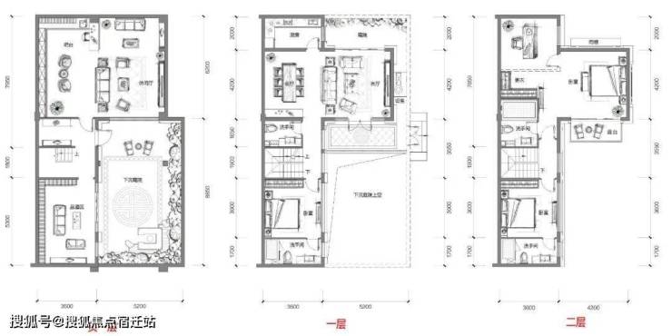
89m²小院突破了传统空间的束缚,做到了四室双套房、下沉式庭院、私家后庭院与阔景露台,成为当之无愧的小别墅“王者”!
89平米合院
4房3厅3卫
地上两层,带地下室设计,南向约7.8米的奢阔面宽,三重院落设计,庭院面积方正。4米大面宽客厅,南接私家庭院,北通入户小院,极为舒适。二层为全套房设计。
地下一层相当于赠送的空间,约5.2米层高,带双车位和一个30m²下沉式庭院。
业主可以将地下室隔成两层。最下面一层是双车位,可以从车库直接入户,泊车回家。这一层可以做棋牌室、影音室、钢琴房或者酒窖,随时可邀请三五好友开一场party。
下沉式庭院丰富了空间层次,给空间带来更加丰富的视觉感和使用的可能性。
因为是下沉式庭院,这样可以保证首层地下室真正拥有大面积阳光,时刻保障干燥、通风,再做一个卧室都可以,还是全明!
从高处俯瞰,整个89m²户型就像一块乐高积木,镶嵌在了富春的山水中。
该户型私家小院与客厅紧紧相连,摆放上茶几和两把藤椅,别有番偷得浮生半日闲的雅趣。
厨房是U型设计,可以容纳更多的家人一起烹饪美食。
南向卧室与餐客厅巧妙分割,动静分离,一切都显得十分自然与和谐。
二层,更加符合全家人的起居生活习惯,也拥有了更良好的采光和通风,这层只有带露台的主卧和套卧,没有更多功能区,居住变得更加纯粹,也更加私密。
整个主卧拥有走入式衣帽间和全明卫浴,还有一个大大的浴缸,舒适尺度丝毫不逊色于三百方以上的大户型。
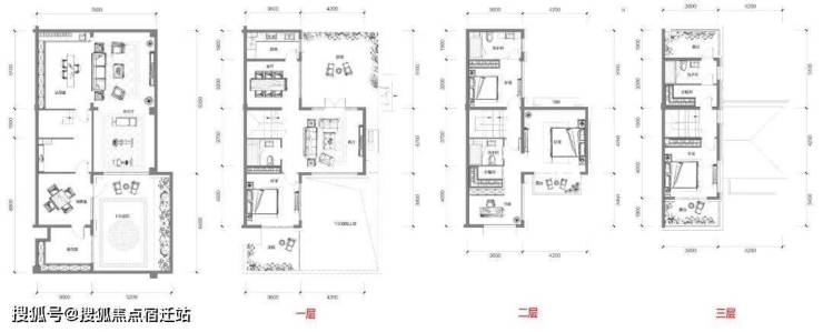
大城小院的优势在于没有中间套,195㎡的户型五房设计,无朝北房间。
195平米合院
5房3厅4卫
该户型每个房间面宽都超过4米,五房均为套房设计,其中最大套房面积约50㎡,媲美顶级豪宅的空间设计让居住更加舒适和从容。
约9.7米的奢阔开间,让客厅与餐厅更加通透明亮,透过全落地窗,庭院中的景致一览无余。
地下室三车位设计更是为家庭和来访客人预留了足够的用车需求,下沉式庭院将阳光引入地下室内,即使是地下两层设计,也不会有防潮、通风的烦恼。
约47.88㎡的下沉式庭院加上约28.88㎡的地上花园,院落的面积足足有约77㎡。
整个户型使用面积超400㎡,独门独户设计,有私家庭院可以独享。没有中间户型,将北侧的房间放到了东侧,西边户在西侧,这样保证每个房间都能达到采光。
通过巷道看到自家宅门,是泰禾的景观标志。约9.7米的南向面宽让建筑可以大面采光,即使庭院有院墙围合,也丝毫不影响整个建筑的光线。
110平米合院
5房3厅4卫
该户型110平4房3厅4卫设计,将每一个卧室的居住舒适性都打造的非常好,即便是最小的卧室都有16㎡,外加奢阔露台,简直壕到不像话。
130平米合院
6房3厅4卫
130平6房3厅4卫设计户型,约5.5米层高的地下空间,可以打造成地下车库、视听空间,或者桌球活动室、红酒吧台。卧室自带的露台,足可营造专属小花园,惬意且宁静。
143平米叠墅下叠
5房3厅3卫
下叠排建筑面积约143㎡,最大使用面积可达约224㎡,一共可做5房3卫,三世同堂,最大限度的扩展了居住者的生活空间。入户方式均为南入户。
朝南开间可达7.5米,视野宽阔,纳景入户。主卧空间总面积达到30平方米,开间达到4.2米。
为了达到最好的采光和通风条件,设计了南面约38㎡的下沉式庭院,并且地下室设计方正,可做朝南的一个大房间,同时附有两个车位,满足家庭用车需求。
127平米叠墅上叠
3房3厅3卫
上叠排建筑面积约127㎡,最大可使用面积约188㎡,上叠排有面积约20㎡的花园,产品位于3层、4层并赠送阁楼,一共可做4房。
空间布局打破了传统叠拼的构造,设计出“2+2+庭院”的结构,在相对有独立空间的基础上,私密又和谐互动。
采用双入户方式,并且有电梯井,满足家里的老人爬楼不便的需求。
而其中最大的亮点在于赠送1.5米×7.5米的极大面宽阳台,配合落地窗,让客厅餐厅有着极佳的采光与视野。
项目沿袭了泰禾“院子系”的锻造法则,溯源“建筑、园林、邻里”三大中式居住文化,凝练出“宅门”、“院落”、“街巷”三大造院体系,形成有天、有地、有门、有墙的院落居境。
项目以“三园五街六坊十八巷”的传统肌理,将中式文化完美融入建筑之中。于富春山居之所,悠享万亩自然资源。以现代新中式建筑,回归院落美好生活。
在园林方面融合了北派皇家园林的风雅与江南庭院的婉约之美。在园区景观细节处理上,巧妙运用了精美地铺,山水置石,国匠墙雕等代表东方之美的意境体现。
宽约19米的尊崇府门,极具大家门风,细节雕琢又不失江南细致风雅。门头顶部的深褐色铝板包边,木纹洞石的柱子,真铜包裹的对开大门,方正硬朗的雕花把手,皇家御用汉白玉、恭王府样式、曲阳大师手笔打造抱鼓石......
其中所使用的铜质方灯结合现代人的生活习惯,高度要求与人的视线相适应,充分考虑了宅门的景观性,以及门头灯笼的实用性与美观性。
泰禾野风大城小院高层住宅产品是泰禾集团继“小院系“产品之后,结合造院工艺,倾力打造的高端精装高层产品,主力户型为建面约88-145㎡高层产品。
高层建筑外立面以米黄色为主,配以褐色铝板及中式回纹元素,中而不古,新而不洋。
采用中轴对称、数进院落布局,以现代的设计手法,重现原生的中式门堂楼阁的建筑围合景观。
花木相交、山水相衬,蜿蜒的景色交织成一幅隽美的画卷。
项目匠心打造2万方商业综合体与3000m²奢装会所,禾阅书房、私宴餐厅、恒温泳池、健身会所诸多配套齐备……
禾阅书房,是一个园林、院落、传统文化、生活美学为主题的书房空间。
泰禾野风·大城小院每座院落都具有浓郁中国传统人文情怀和文化底蕴,从室内到庭院,都演绎着新中式院落别墅的风韵。
如有侵权请联系删帖
声明:本文由入驻焦点开放平台的作者撰写,除焦点官方账号外,观点仅代表作者本人,不代表焦点立场。
