绿城时代星火城写字楼售楼处-绿城时代星火城写字楼楼盘详情-杭州房天下-杭州搜狐焦点
扫描到手机,新闻随时看
扫一扫,用手机看文章
更加方便分享给朋友
杭州拱墅区绿城时代星火城写字楼售楼处电话☎📞📱:400-000-0460转8888
我们以客户为中心,用心服务,只为让您拥有一个满意的家。
温馨提示:来访需提前两小时预约,以免直接参观无销售接待!
在武林 会晤世界
新武林坐标资产
【新武林核芯】【新天地商圈】
【综合体环伺】【双地铁上盖】
【绿城缔造】【当代封面建筑】
【实景现房】【高端配置办公】

【项目基本信息】
【备案名】:时代星火城
【开发商】:杭州星源置业有限公司
【管理商】:绿城房地产建设管理集团有限公司
【总占地面积】:约13759㎡
【地上建筑面积】:约48034.5㎡
【产品面积】:约320-1350㎡
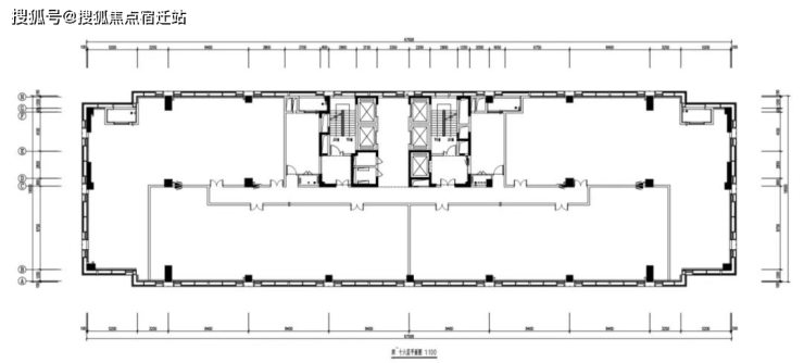
【总层数】:17层
【总户数】:5 幢62套办公、4套商铺
【梯户比】:五梯四户
【标准层高】:约3.8米(3-16层)



绿城中国
理想生活综合服务商
连续19年荣膺“中国房地产百强企业综合实力TOP10”
连续4年荣膺“中国房地产品牌价值百强榜TOP10”
连续4年位列“中国房地产产品力优秀企业”榜单第一
绿城管理
中国房地产轻资产开发模式的先行者、引领者
2020年7月在香港联交所主板上市(股票代码9979.HK),中国代建第一股
连续7年中国房地产代建运营引领企业TOP1(2017-2023年)
7大核心卖点
1、定标新武林核芯,擎领综合体商务
屹立于新武林核芯,坐拥约180万方杭州最大综合体-新天地,缔造会晤世界的时代主场。

2、零距离双地铁,交通执掌全城
零距离地铁3号线/4号线交汇新天地街站,4条高架环绕,交通快速通达全城。

3、聚合都会地标,商圈能级跃升
汇聚中大银泰城、嘉里城市之星(在建)、杭州电竞中心(亚运场馆)、亚运会新天地主题观赛公园、武林美术馆等地标,鼎成武林都市封面。




4、名家手笔,擘画地标商务之姿
由绿城利普建筑设计执笔建筑、景观设计,呈现城市地标商务的尊荣姿态。

5、都会封面建筑,生态自然办公
天幕美学立面,呈现城市地标商务的尊荣姿态。约3000㎡中央花园,让办公与自然共生。
6、实景现房商办,企业成长优选
现房即买即用,即可办公或出租,降低等待交付的风险和成本,保障企业利益最大化。

7、绿城服务 中国高端物业服务领先企业
绿城服务是一家以物业服务为根基、以生活服务与城市服务为两翼,以智慧科技为引擎的数字化、平台化、生态型的现代服务企业,多年获得“中国物业服务百强满意度领先企业”等殊荣。

建面约320-1350㎡新武林坐标资产

板楼设计,格局通透大气,空间利用率高
五梯四户,从容便捷,乘梯无需等待
约7.8m层高精奢大堂,赋予名企非凡礼遇
约3.8m标准层高,约60%窗墙比,提升办公品质感
约27.3m超大面宽采光面,营造大气舒适氛围
分户中央空调,企业使用时间自由
绿城时代星火城
地铁3号线/4号线,总价550万起!
杭州拱墅区绿城时代星火城写字楼售楼处电话☎📞📱:400-000-0460转8888
我们以客户为中心,用心服务,只为让您拥有一个满意的家。
温馨提示:来访需提前两小时预约,以免直接参观无销售接待!
声明:本文由入驻焦点开放平台的作者撰写,除焦点官方账号外,观点仅代表作者本人,不代表焦点立场。
