湖州春风桃源(慕心谷)→最新楼盘评测→特价房源限时呈现→售楼处接待中心→售楼处电话认证→最新动态全掌握→年底超值钜惠房源→百度问一问
扫描到手机,新闻随时看
扫一扫,用手机看文章
更加方便分享给朋友
湖州春风桃源(慕心谷)
售楼处预约中心电话:400-000-0460转6999【天眼查认证】
预约来电尊享内部优惠,开发商案场销售一对一热情服务,提前24小时预约,看房不收取任何费用!
Sales Office reservation center: 400-000-0460转6999 Make an appointment to enjoy the internal benefits, the developer's case sales one-to-one warm service, do not charge any fees to see the house!
【蓝城 · 春风桃源】
【项目简介】
项目名称:慕心谷
【开 发 商】安吉旭虹房地产有限公司
【物业公司】:绿城物业
【产品类型】:中式合院+商业叠墅
【规划用地】:26892㎡
【总建筑面积】:41593.04㎡
【绿化率】:30.2%
【容积率】:1.01
【地上实际使用面积】:139㎡、155㎡、195㎡
【项目体量】:68套合院+34套商墅
【合院户型】:139平(三房两卫三卫)、155平(四房两厅三卫)、195平(五房两厅三卫)
【合院总价】:495万—800万
【合院层高】:一层4.25m,二层3.75m -5m,地下室5.25m
【装修标准】:4500/㎡精装
【产 权】:70年(合院)
【拿地时间】:2020年8月
【交付时间】:2024年5月
【车位比】:1:2.2
【物 业 费】:3.7元
项目位于安吉灵峰国家级旅游度假区内的一片原生密林,周边不可破坏的省级生态公益林,50亩生态净资产,生态资源重重提纯,形成“三重净化圈”里的私心小生态,给予极致纯粹的居住清净感,打造“两千年桃花源的一点点私心”。
【产品篇】
耗资千万流转近百亩原生自然配套用地
蓝城匠造两层低密精装纯中式院墅
六制院居考究体系:匠制、型制、院制、雅制、礼制、藏制
纯人车分流设计
赠送精装地下空间
【择址篇】
项目位于安吉国家级灵峰旅游度假区里的一片原生密林,周边不可破坏、无工业干扰的省级生态公益林,一片不被人打扰、真正只私属于自己的净土。
【交通篇】
项目位于环杭一线圈层、环沪二级圈层内,距离杭州约70公里,上海约220公里;约半小时杭州都市圈,10分钟县城区,迅捷通达,借商合杭高铁通车及未来双河产业园规划之势(未来宁杭二通道开通,即将开启20分钟到杭城,距项目仅10分钟车程),辐射县城区及景区,到时必然人流荟萃。
【配套篇】:度假、商业、医疗
共享和乐小镇及安桃雅集商业街。距主城区商业体及医疗配套仅需10分钟内车程,生活便捷;
安吉悦榕庄酒店
CLUB MED 度假村
安桃雅集商业街
安吉城东美颂广场
树兰安吉医院
万达广场(在建中)
【旅游资源篇】:灵峰国家级旅游配套区,毗邻千年古刹灵峰寺,中国大竹海、中国竹博园、藏龙百瀑、浙北大峡谷、云上草原高山旅游度假区、凯蒂猫乐园、田园嘉乐比、欢乐风暴水上乐园等丰富的旅游资源;年游客量达百万以上
千年古刹灵峰寺
中国大竹海
藏龙瀑布
中国竹博园
云上草原高山旅游度假区
江南天池
凯蒂猫乐园
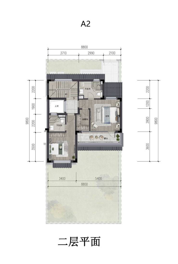
【户型篇】
地上实际使用面积约139㎡——
『南向套房式主卧』主人私享衣帽间、卫生间,起居自由舒适,午后小憩,悠然而居。
『主卧观景露台』春有百花秋有月,夏有凉风冬有雪,四季在眼波流转。
『私密内院』餐客厅连接内院,舒适轩朗,看庭外潇潇微雨,岁月从此静好。
『独立玄关』煦日和风浅入室,归家从容有序,收藏生活的点滴细节。
地上实际使用面积约155㎡——
『揽景大外廊』风景游廊入厅,独坐家中,观山听雨、漫赏云霞,满目风景流转。
『餐客一体』采光充足,空间更加通透明亮,一面揽清风入怀,一面食人间烟火。
『南向观景露台』赏院内春风秋月,闲时独坐,独属于自己的静谧天地。
『南向套房式主卧』连接露台,同暖阳苏醒,伴月光入眠。配备衣帽间与独立卫浴,保持居住私密与尊荣。
湖州春风桃源(慕心谷)
售楼处预约中心电话:400-000-0460转6999【天眼查认证】
预约来电尊享内部优惠,开发商案场销售一对一热情服务,提前24小时预约,看房不收取任何费用!
Sales Office reservation center: 400-000-0460转6999 Make an appointment to enjoy the internal benefits, the developer's case sales one-to-one warm service, do not charge any fees to see the house!
声明:本文由入驻焦点开放平台的作者撰写,除焦点官方账号外,观点仅代表作者本人,不代表焦点立场。
