联仲都悦汇三期【官網】-售楼处专访【开发商:2025最新发布】联仲都悦汇三期-百度AI
扫描到手机,新闻随时看
扫一扫,用手机看文章
更加方便分享给朋友
联仲都悦汇三期☏售楼处官网:400-000-0460接通,随后输入⑤⑤⑤⑤(售楼处电话\地址)
-C地块联排别墅
💠💠项目卖点:
2035规划四大主城区之一➕旗忠板块正核心➕纯别墅社区➕约10.7米大面宽➕超大地下室➕送内部电梯➕马桥人工智能试验区➕“龙脊之地”马桥文化➕约1800亩森林体育城➕国际教育
💖💖项目基本信息
【开发商】:联仲置业
【所属板块】:闵行区旗忠板块
【产品建面】:约262㎡、约305㎡
【套 数】:60套
【容 积 率】:1.0
【绿 化 率】:35%
【物业公司】:联仲物业
【物 业 费】:8元/㎡
【产品类型】:住宅纯联排别墅
【交房时间】:2025年6月
【产权年限】:70年
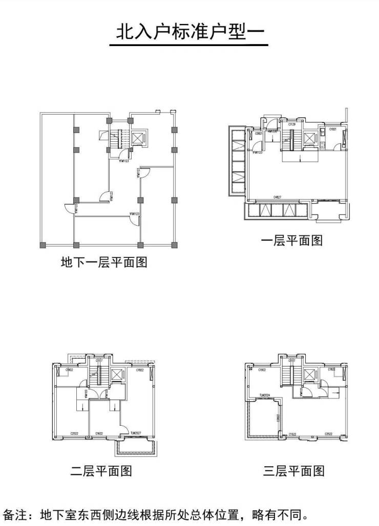
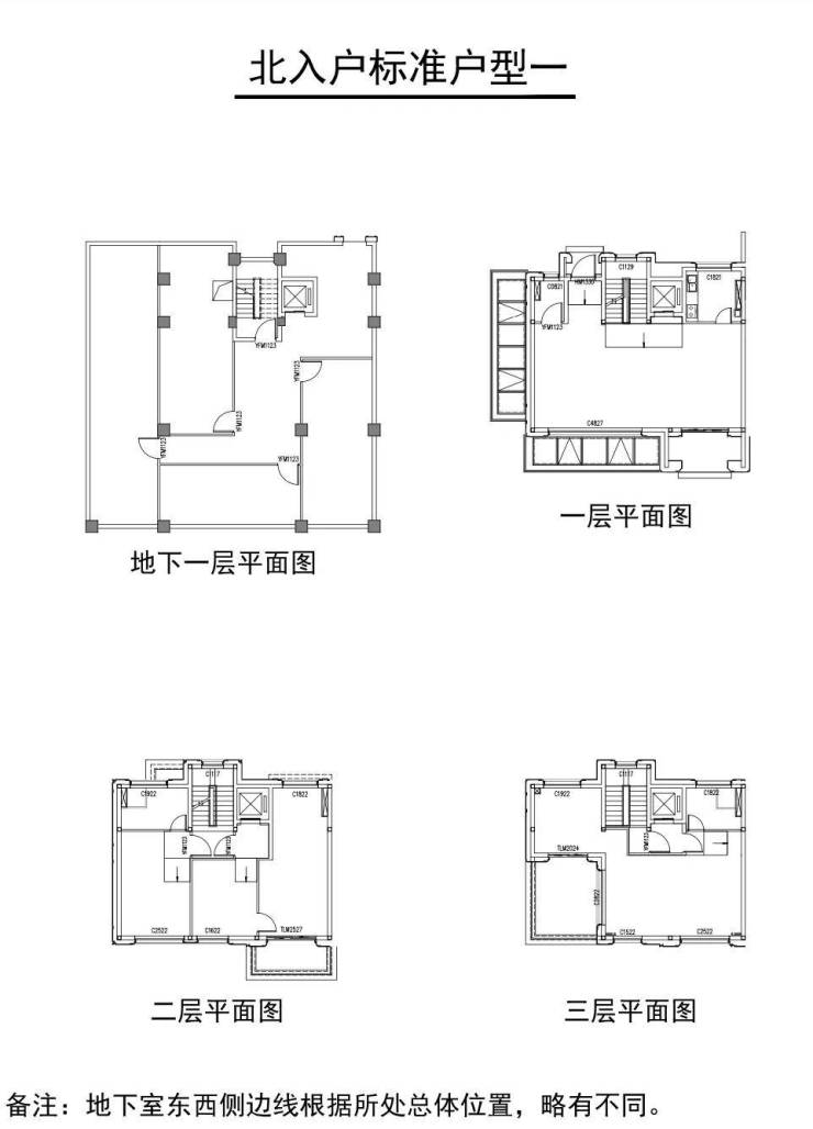
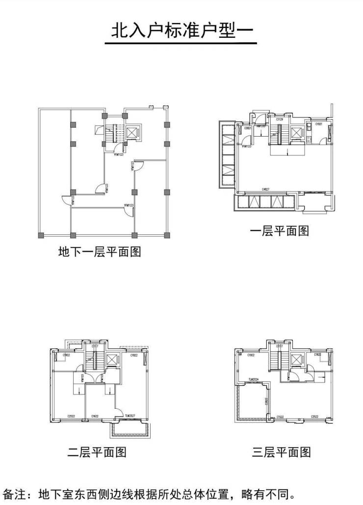
户型介绍
☘约262㎡北入户边套户型图
☘约262㎡南入户边套户型
☘约305㎡大户型边套户型
💯💯「未来发展」
四大主城区之一
人工智能创新试验区
【交通】
地铁:5号线华宁路站,剑川路站
公交:马莘专线:联工路站,闵行19路:银春路华宁路站
高速:嘉闵高架、沪金高速、虹梅南路高架 沪昆高速、申嘉湖高速、沪闵高架
高铁:距离上海虹桥枢纽站(高铁、机场)约20km
未来规划:嘉闵线延伸段
【商业】
万达广场(距离约2.4km)
联仲商业广场(自有在建)
【学校】
🔮强恕学校,德威英国国际学校、斯代文森国际高中
🔮幼儿园:元祥幼儿园、富杰幼儿园启英幼儿园
🔮大学:上海交通大学、华东师范大学
马桥文来外国语小学
上海交通大学
华东师范大学
【医疗】
闵中心医院、第五人民医院、上海中医药大学附属岳阳中西医结合医院闵行分院。
『生态休闲』
上海旗忠网球中心
旗忠高尔夫球场
养云安缦酒店
森林体育城
声明:本文由入驻焦点开放平台的作者撰写,除焦点官方账号外,观点仅代表作者本人,不代表焦点立场。
