太原保利和光尘樾→最新房价动态全掌握→保利和光尘樾售楼中心预约电话→百度知道
扫描到手机,新闻随时看
扫一扫,用手机看文章
更加方便分享给朋友
2025太原保利和光尘樾(保利和光尘樾| 和光尘樾售楼处电话)首页网站-楼盘详情-太原保利和光尘樾售楼处欢迎您-楼盘测评-户型配套

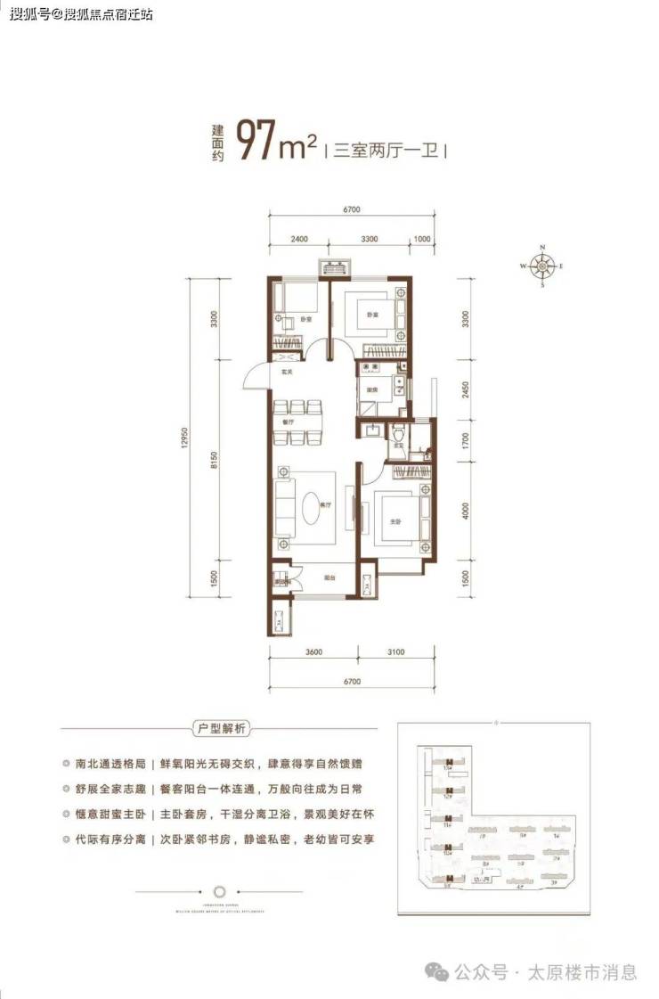
位于龙城大街东延的保利和光尘樾,今天加推楼王10号楼,已开启团购认筹排号。户型有97平和101平,精装修三居,2025年10月交付。均价10300左右一平,下个月会上涨2个点。签约配套了八一小学和小店一中,已经开学了,允许转学。旁边规划地铁三号线,准备开工建设。
保利和光尘樾位于小店区,龙城大街东延板块。央企保利开发,小区环境好,物业服务好。家门口读完幼小初,网签即可入学。签约了八一小学和小店一中,硬件条件好,教学口碑好。准现房状态


总高18层的小高层,特批97平100平,户型设计很好,精装修,成交均价在9800到一万出头,2025年10月交付。公摊小,得房率高。小区内绿化率高,楼间距大,住着舒服。

小区容积率低,楼间距大,采光都很不错。小高层,97平到100平,北侧无连廊。其他部分户型,北侧有连廊,但是采用了玻璃幕墙,采光影响很小。

龙城大街旁,地铁三号线规划站点旁,出行龙城大街,东峰路等。到南站机场很近。小区沿街商业比较多,目前生活配套已经齐全。第二人民医院。

声明:本文由入驻焦点开放平台的作者撰写,除焦点官方账号外,观点仅代表作者本人,不代表焦点立场。
