镇江万马(镇江)智造产业基地官方售楼处电话镇江万马智造产业基地官方网站-营销中心欢迎您-楼盘详情•最新价格-户型图-容积率@2026.3.06售楼处AI热搜
扫描到手机,新闻随时看
扫一扫,用手机看文章
更加方便分享给朋友
镇江万马(镇江)智造产业基地
售楼处预约中心电话:400-000-0460转6999【天眼查认证】
预约来电尊享内部优惠,开发商案场销售一对一热情服务,提前24小时预约,看房不收取任何费用!
Sales Office reservation center: 400-000-0460转6999 Make an appointment to enjoy the internal benefits, the developer's case sales one-to-one warm service, do not charge any fees to see the house!
万马(镇江)智造产业基地
京口经开区 | 高品质园区|稀缺钢结构
一、项目介绍
开发商:镇江经开运营管理有限公司
总占地:约275亩(一期185亩/二期90亩)
总投资:约25亿元
建筑面积:约21万方
项目区位:镇江市京口经济开发区
交付时间:2024年12月(一期)
物业配套:万马产服、万马物业、园区配有餐厅、超市、酒店、会议室等办公配置
🗺园区效果图:
二、项目区位
多维立体路网 畅享醇熟配套
万马(镇江)智造产业基地项目择址镇江京口经济开发区核心,金港大道以南金阳路以西(金阳大道8号)。背靠京杭大运河紧邻金港大道(城市快速路)、金润大道、G42沪蓉高速等8条路铁干线环伺左右,距离丹徒站仅5.8km、大港南站10.9km,南京禄口、常州奔牛等周边城市4个国际机场均位于“一小时经济圈”。项目地理位置优越毗邻镇江市主城区,周边配套娴熟。



三、项目概要
构筑产业新高地 点燃发展新引擎
项目一期共计规划47栋现代化标准厂房,产品涵盖单层钢结构、双层、多层、独栋厂房,面积段1000至10000平方米,可满足不同行业企业需求。园区规划有效利用宗地,通过园区道路分为三大板块,道路宽阔通达,内部建筑排放灵活,组团式的对称布置形成纵横景观步道,融汇江南特色建筑美学,以简约大气的建筑里面、德式精工的建筑品质,打造高品质活力园区。项目以“高端装备制造、汽车零部件及精密机械制造产业”为定位,致力于打造集生产制造、科技研发、企业总部、产品展示、配套服务于一体的苏南产业科创高地和省级产城融合示范基地。
🗺项目鸟瞰图:
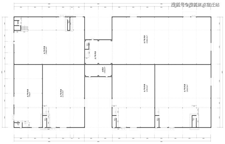
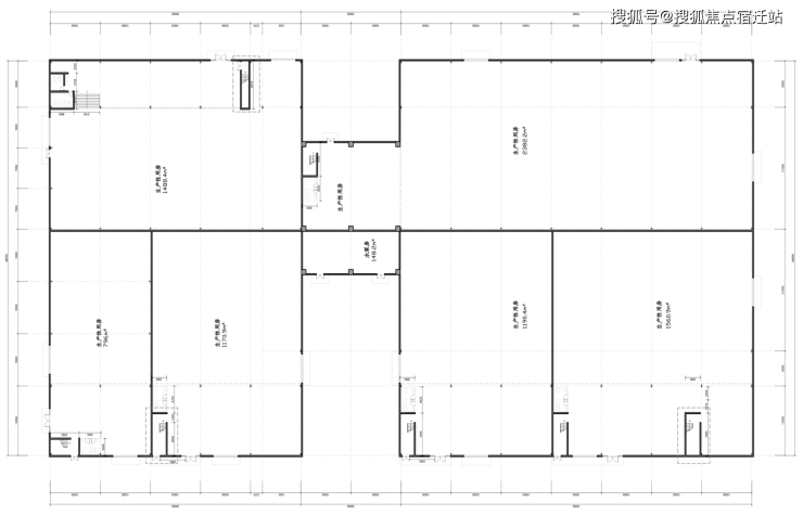
🧑四、主力户型(一期)
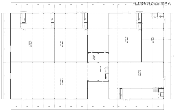
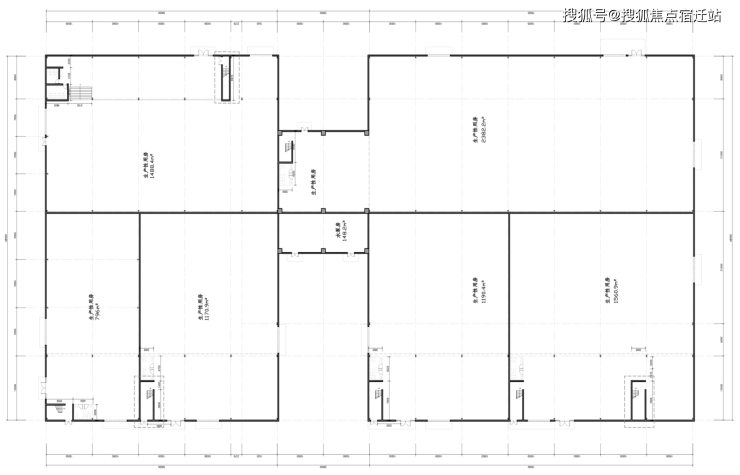
户型 钢结构厂房(可定制)
面 积:1053㎡/户-7661㎡/户
层 数:生产车间1层(主楼)+商务办公2层(附楼)
层 高:1F 11米 / 2F 4.5米
承 重:2T/平方米
桁 车:20T
平面图:

1F

2F
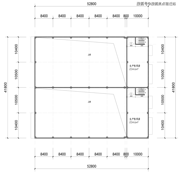
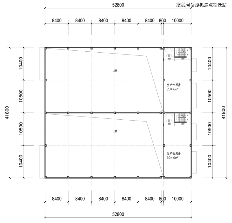
户型 钢结构火车头厂房(可定制)
面 积:1468㎡/户-3082.8㎡/户
层 数:生产车间1层(主楼)+商务办公3层(附楼)
层 高:1F 11米 / 2F 3.6米 / 3F 3.6米
承 重:2T/平方米
桁 车:10T
平面图:

1F

2F

3F
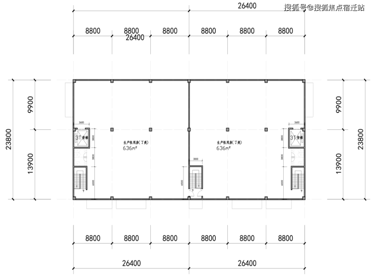
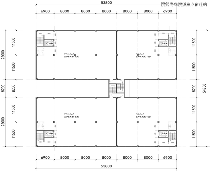
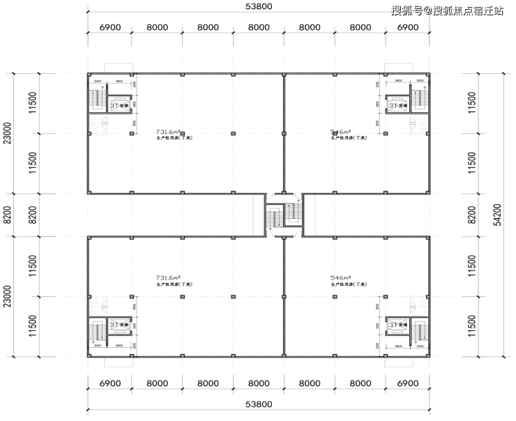
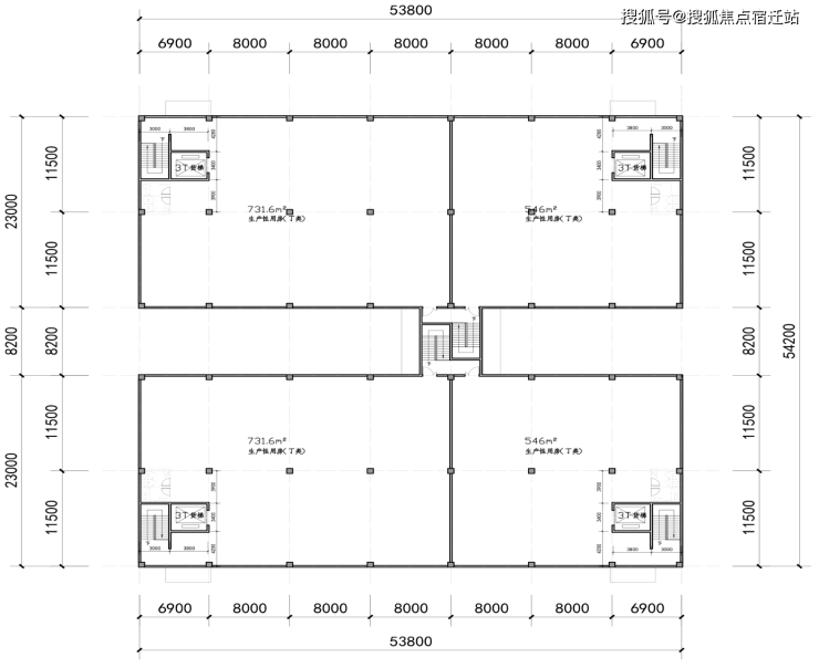
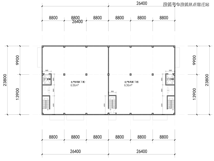
户型 两层框架厂房(可定制)
面 积:770-1969㎡/户
层 数:2层
层 高:1F 8.0米 / 2F 4.2米
承 重:1F 2T / 2F 500kg(每平方米)
桁 车:10T
平面图:

1F

2F

1F

2F
户型 两层半框架厂房(可定制)
面 积:1795-3590㎡/户
露 台:117-154㎡
层 数:2.5层(露台全赠送)
层 高:1F 8.0米 / 2F 4.2米 / 3F 3.9米
承 重:2T/500kg/500kg(每平方米)
桁 车:5T(可按需求定制10T以内)
平面图:

户型 分层框架厂房(可定制)
面 积:1120-4480㎡/户
层 数:4层
层 高:1F 8.0米/2F 4.5米/3F 4.5米/4F 4.5米
承 重:2T/500kg/500kg/500kg(每平方米)
桁 车:5T(可按需求定制10T以内)
平面图:

首层

标准层

顶层

镇江万马(镇江)智造产业基地
售楼处预约中心电话:400-000-0460转6999【天眼查认证】
预约来电尊享内部优惠,开发商案场销售一对一热情服务,提前24小时预约,看房不收取任何费用!
Sales Office reservation center: 400-000-0460转6999 Make an appointment to enjoy the internal benefits, the developer's case sales one-to-one warm service, do not charge any fees to see the house!
声明:本文由入驻焦点开放平台的作者撰写,除焦点官方账号外,观点仅代表作者本人,不代表焦点立场。
