江南雅集(昆山)首页网站-2025楼盘评测_江南雅集售楼处电话|江南雅集最新价格|户型配套深度剖析(一文看懂江南雅集↓↓↓全面剖析)

搜狐焦点宿迁站 2025-04-25 09:29:25
用手机看
扫描到手机,新闻随时看

扫一扫,用手机看文章
更加方便分享给朋友

昆山江南雅集 √欢迎您致电品鉴 预约热线:400-000-5503转接2222【预约热线】

昆山江南雅集首页网站|江南雅集正在热销中!江南雅集欢迎您@江南雅集售楼处电话_2025楼盘评鉴|最新价格|配套户型

昆山江南雅集

√欢迎您致电品鉴 预约热线:400-000-5503转接2222【预约热线】

温馨提示:网上售楼中心〢预约尊享Vip一对一专业置业顾问讲解!

_Vip营销中心_____欢迎来电预约尊享内部折扣_____匠心钜制恭迎品鉴!中介勿扰!

项目用地面积47362.2㎡,拟建 11幢17F住宅楼642套房源,机动车停车位1257辆,小区规划2个出入口,主出入口位于东兴路,次出入口位于东定路。

项目位于政府重点打造的高端宜居板块—— 城西,当初的一句 “居住向西”,使城西拥有了不可复制的顶级城市资源。

当下的城西, 昆山政务服务中心、昆山体育中心、万象汇、新江南生活荟、昆山文化艺术中心、昆山中学、杜克大学等汇聚,肉眼可见的高占位,各种高规格的配套应有尽有,区域居住热度也在持续不断攀升!

江南雅集占位 城西中环北、玉湖旁,方方面面都十分能打,简直是全方位发展的六边形战士!

项目周边路网环伺,不管是公共交通还是自驾出行,都非常便捷。紧邻 城北西路、玉湖北路等交通要道,距离 中环快速路、京沪高速咫尺之距,于纵横路网之间,轻松开启美好生活。

户型鉴赏:城西神户型 亮相双套房大平层!尺度感拉满

如今的昆山改善市场中,改善盘层出不穷,抛开其他附加因素不谈,新房的核心竞争力,在户型。

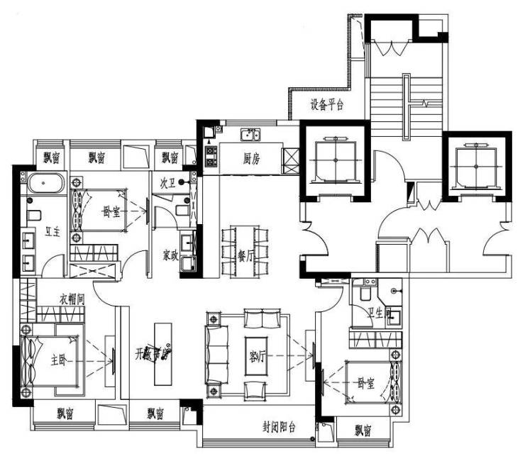
不得不提的,就是江南雅集这个建面约144㎡的逆天神户型!完全颠覆了你对住宅的想象!

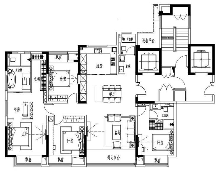
建面约180㎡ 四房两厅三卫

这个户型给人印象最深刻的,就是尺度感一绝的 40㎡主卧套房、四开间朝南、LDK一体化、双套房设计...将尺度感运用到极致!

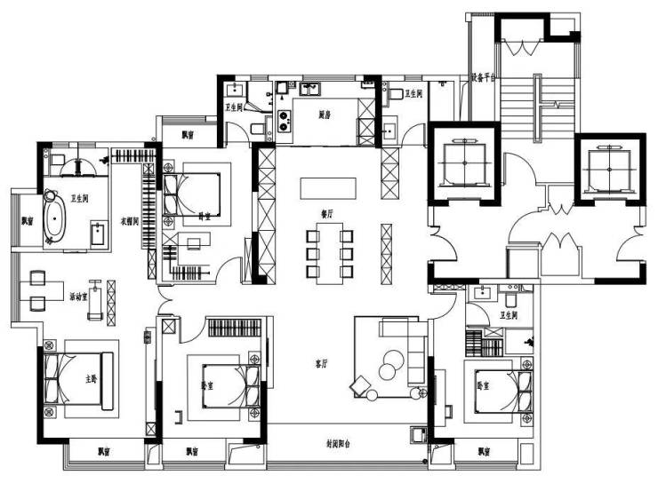
建面约215㎡ 四房两厅四卫

作为项目最大的户型,则是针对更高端的改善群体,房屋整体做得更为阔绰,并且融入众多让人眼前一亮的创新! 三个独立套房、45㎡豪华主卧空间、四开间朝南、户户飘窗...任谁看到都忍不住感叹。

√欢迎您致电品鉴 预约热线:400-000-5503转接2222【预约热线】

温馨提示:网上售楼中心〢预约尊享Vip一对一专业置业顾问讲解!

_Vip营销中心_____欢迎来电预约尊享内部折扣_____匠心钜制恭迎品鉴!中介勿扰!

声明:本文由入驻焦点开放平台的作者撰写,除焦点官方账号外,观点仅代表作者本人,不代表焦点立场。