枫漫晓集利弊(优势丨劣势)分析丨一文读懂杭州枫漫晓集优缺点(附售楼处详细资料)
扫描到手机,新闻随时看
扫一扫,用手机看文章
更加方便分享给朋友
杭州钱塘区枫漫晓集别墅售楼处电话☎📞📱:400-000-0460转8888
我们以客户为中心,用心服务,只为让您拥有一个满意的家。
温馨提示:来访需提前两小时预约,以免直接参观无销售接待!
杭州钱塘核芯区 江海之城CBD
有天有地 稀贵低密资产 现房所见即所得
100米龙湖天街,200米地铁启程路站
限量12栋,全新面市

BUILDING INFORMATION
【项目信息】
项目区域:钱塘区江东核心区
产权:40年
物业类型:商业花园小院
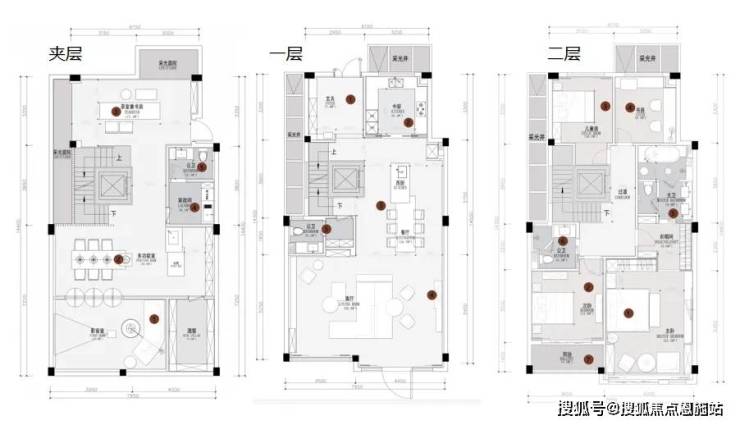
产品面积:建面约114㎡
总户数:12栋
得房率:约98%
物业:滨江物业
交付标准:毛坯

【商业配套】
龙湖天街(一路之隔)
杭州第五座天街,已开业。建筑面积约18万㎡,共 6层,规划涵盖了国际潮牌、大牌餐饮、IMAX影院等在内的超过300个品牌,是集购物、娱乐、休闲、美食、等一站式消费为一体的大型综合体。

宝龙城市广场(直线距离350米)
已开业,定位为集购物、餐饮、娱乐、文化、休闲、商务、等功能为一体的城市商业中心;还设置了一条涵盖购物中心、风情艺术街和创意集市的国际BLOCK街区。

便捷交通
地铁
约200米即达地铁7号线北二路站、1站直达便利换乘地铁8号线,通达杭城
教育配套
自建12班幼儿园,与项目同期交付
杭高集团启成学校(小学初中9年一贯制)
公办学校,目前已运营;规划60个班,占地140亩,总建筑面积7.6万方
BUILDING ANALYSIS
【12栋 限量发售】
城央层峰共识 繁华深处人文藏品
当代中式风格建筑,大屋顶内涵”拙政园“东方传统神韵,高级灰立面形俱时代风格,出则繁华,入享宁谧,有天有地人生尺度,收藏一院春夏秋冬。

尊享四层尺度 拥揽多元境界 于无界空间,方有无价之居,生活,文化,社交在此垂直延伸,自我与世界就此舒展开来,窗外极目无边,屋内群贤毕至,上可尽享天伦,下可收藏志趣。
【户型装修建议一】城央隐世居所

空间风格参考



空间风格参考







杭州钱塘区枫漫晓集别墅售楼处电话☎📞📱:400-000-0460转8888
我们以客户为中心,用心服务,只为让您拥有一个满意的家。
温馨提示:来访需提前两小时预约,以免直接参观无销售接待!
声明:本文由入驻焦点开放平台的作者撰写,除焦点官方账号外,观点仅代表作者本人,不代表焦点立场。
