保利春湖小镇→最新房价动态全掌握→知乎限时呈现→@昆明保利春湖小镇售楼处电话认证
扫描到手机,新闻随时看
扫一扫,用手机看文章
更加方便分享给朋友
2025昆明保利春湖小镇(保利春湖小镇| 春湖小镇售楼处电话)首页网站-楼盘详情-昆明保利春湖小镇售楼处欢迎您-楼盘测评-户型配套
人生总要住一次别墅,在保利春湖小镇,100万起就可以入手一套精装别墅,实现高性价比产品享受高品质生活。
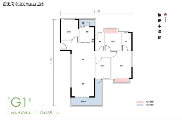
目前保利发展在整个片区已获取11个地块,总占地872亩,正在开发的是首期地块,是整个项目最靠近湖区的位置,规划有合院别墅、联排别墅、叠拼别墅、洋房、LOFT公寓等多元化的物业类型,可满足不同人群的居住需求。其中7号地块洋房产品已是现房在售,打造建面约84㎡、115㎡、135㎡三个户型,各种类型家庭在这都能找到适合自己的舒居密码。
建面约84㎡户型,两室两厅一卫设计,一字型设计厨房,动线布局科学实用,餐客厅一体空间使就餐、娱乐空间显得更加开阔,可扩容更多生活空间,且双卧朝南,明亮通透,主卧设计独立衣帽间,设有约2.4米面宽飘窗。
建面约115㎡户型则为三室两厅两卫产品设计,实现三面采光,约7.2米大面宽景观阳台可打造成私家小花园室/健身空间,朝南主卧为套房设计,配置独立卫浴/衣帽间,且连接景观阳台,采光通风优佳,还有约11㎡多功能空间,可打造成儿童房、长辈房、书房等。
建面约135㎡户型设计为四室两厅两卫产品,有约11.1米南向面宽,是市面上少有的超广角视野,餐客厅一体化设计并与阔景阳台相连,餐客厅约35㎡,形成开阔格局,而双阳台设计可实现休憩、收纳,兼备观赏性与实用性。再到卧室,双卧朝南,南北通透,并连接约7米奢阔阳台,采光充足,约22㎡主卧套房还配备独立卫浴、衣帽间,对改善人群具有较大吸引力。
此外,项目还有144-172㎡合院别墅、101-116㎡联排别墅、68-165㎡叠拼别墅产品在售。本质上,别墅是一种带有庭院、露台的独立式住宅。有天有地,上下分层,与周边邻居有着一定物理与心理上的距离,让居住者享有绝对的隐私,并能在一种相对奢阔的空间里,享受更高舒适度和大尺度空间的生活品质,这也是其被列为终极置业的根本原因。
保利·春湖小镇商业街区毗邻西翥旅游生态试验区,周边以大健康产业为主导,集生态旅游、健康医养、文化体验、生态科技于一体,具备庞大品质型客源。保利·春湖小镇依山而建、傍湖而生,自带文旅资源,对高端客源充满吸附力。

项目周边要道环绕,快速接驳轿子山专线、桃园立交桥、绕城高速。与西市区、北市区、南屏街高效畅联,S0705路公交专线直达,一线串联西市区首创奥莱、五华吾悦广场等优质商业集群。保利春湖小镇所在的五华区位于昆明主城区西北部,区域内居住人口117.1万人,项目周边3公里内优质商业资源稀缺,片区内高端商业业态,只此文创主题街区。

声明:本文由入驻焦点开放平台的作者撰写,除焦点官方账号外,观点仅代表作者本人,不代表焦点立场。
