越秀·外滩樾售楼处电话:400-000-0460转接9999(售楼中心)
看房请提前预约,为保证客户看房体验,项目样板房只对提前1小时预约看房客户开放。 预约来电尊享购房优惠,可预约案场内部销售人员,专业一对一热情服务,让您用专业眼光去买房。
越秀·外滩樾售楼处电话:400-000-0460转接9999(售楼中心)
越秀·外滩樾售楼处电话:400-000-0460转接9999(售楼中心)
越秀·外滩樾售楼处电话:400-000-0460转接9999(售楼中心)
看房请提前预约,为保证客户看房体验,项目样板房只对提前1小时预约看房客户开放。
预约来电尊享购房优惠,可预约案场内部销售人员,专业一对一热情服务,让您用专业眼光去买房。
Sales Office Phone: 400-000-0460 Transfer 9999 (Sales Center)
Please make an appointment in advance to view the property. To ensure the viewing experience for customers, the model house of the project is only open to customers who make an appointment one hour in advance.
Book a phone call to enjoy a discounted purchase price. You can make an appointment with the on-site sales staff for professional one-on-one enthusiastic service, allowing you to buy a house with a professional eye.
编辑

虹口北外滩 低密风貌别墅
由越秀地产+临港集团联合打造
越秀临港虹口156街坊风貌别墅
【越秀·外滩樾】
上海 虹口北外滩
风貌之上 世界堂前
建面约238㎡—338㎡
总价约4500-9000万
海派院墅三里外滩
立传别墅从你开启传承
展厅已开放,看房请提前预约

最新消息:虹口北外滩 低密风貌别墅临港越秀北外滩项目定名「越秀·外滩樾」展厅开放!

「越秀·外滩樾」项目地块四至范围, 东至:梧州路,隔壁是中皇广场; 西至:hk270B-02,隔壁就是1933老场坊; 南至:周家嘴路 北至:柘皋路。

日前,上海市规划和自然资源局对上海漕越经济发展有限公司虹口区嘉兴街道hk270b-04地块历史风貌保护项目进行了设计方案公示,项目未来将呈现48套低密风貌里弄住宅,面积约238-338㎡。

户型图如下:
(过程稿仅供参考,最终以实际为准)
236.25㎡A户型:

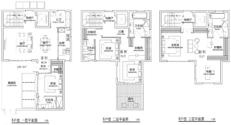
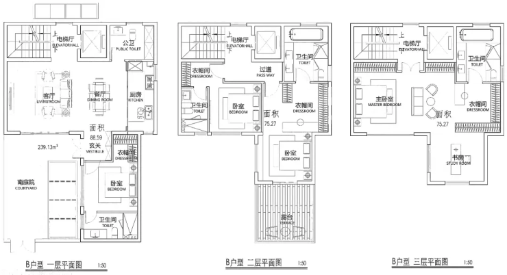
239.13㎡B户型:

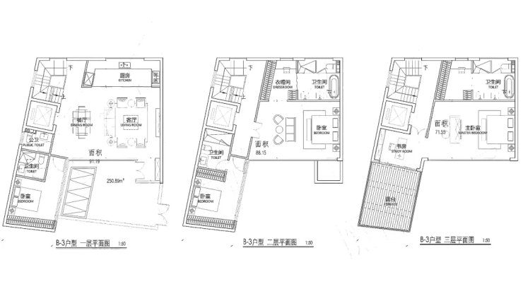
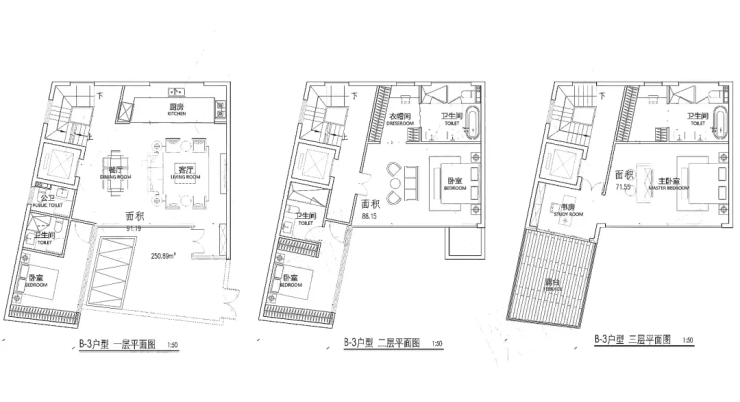
250.89㎡B-3户型:

C户型:

291.42㎡D户型

越秀·外滩樾售楼处电话:400-000-0460转接9999(售楼中心)
越秀·外滩樾售楼处电话:400-000-0460转接9999(售楼中心)
越秀·外滩樾售楼处电话:400-000-0460转接9999(售楼中心)
看房请提前预约,为保证客户看房体验,项目样板房只对提前1小时预约看房客户开放。
预约来电尊享购房优惠,可预约案场内部销售人员,专业一对一热情服务,让您用专业眼光去买房。
Sales Office Phone: 400-000-0460 Transfer 9999 (Sales Center)
Please make an appointment in advance to view the property. To ensure the viewing experience for customers, the model house of the project is only open to customers who make an appointment one hour in advance.
Book a phone call to enjoy a discounted purchase price. You can make an appointment with the on-site sales staff for professional one-on-one enthusiastic service, allowing you to buy a house with a professional eye.