2025南山·璞缦售楼处电话-上海(南山·璞缦)首页网站-南山·璞缦最新房价-户型-容积率-小区配套-楼盘详情/价格/户型
扫描到手机,新闻随时看
扫一扫,用手机看文章
更加方便分享给朋友
户型图官宣!嘉定主城封面之作「南山·璞缦」已开放展厅!主力建面约105-198㎡3-4房待入市!
嘉定南山·璞缦售楼处电话:400-000-0460转7777 【营销中心】
_____欢迎来电咨询丨〢丨专业一对一热情服务丨〢丨看房需提前预约
——如有侵权请联系我们删除丨〢丨网上售楼中心24小时销售热线〢
嘉定南门,国匠南山2024年度封面之作「南山·璞缦」花都荟城市展厅已开放!主力建面约105-198㎡3-4房,联动价4.6万/㎡!
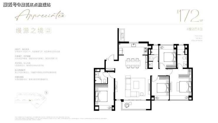
南山·璞缦户型图解析:
主力户型以建面约105㎡三房二厅二卫、建面约123㎡三+1房二厅二卫、建面约143㎡四房二厅三卫、建面约172㎡四房二厅三卫、建面约198m²四房二厅三卫全系尺度大宅,营造嘉定前所未见的人居筑作。
【土拍回顾及规划】
今年10月24日,上海第三批次土拍中,南山以总价175602万元成交嘉定工业区南门社区JDC1-0801、JDC1-0802单元44-08地块,地块出让面积34703.9㎡,容积率2.3。溢价率0%,楼板价22000元/㎡,房地联动价46000元/㎡。
地块位于新城和老城交界处,距离11号线地铁站较远,之前南门社区其他宅地联动价为4.52万/㎡。
项目四至服务:东至沪宜公路,西至群裕路,南至基地边界,北至沪宜公路。
根据项目规划设计方案,拟建12幢14-18F住宅(含保障房)以及其他配套用房等建筑,规划共计702户。

具体经济指标:

根据土地转让合同要求,项目全装修交付,装修标准2000元/m²(集采价格)
中国南山开发(集团)股份有限公司(简称:“中国南山集团”)始于 1982 年,是国务院、广东省、深圳市三级国资委持股,国有资本占绝对主体地位的大型国有企业集团。

南山地产,入沪30载,自落子上海以来,不断开拓进取,持续前瞻城市重要节点。三年五子,每一程的与城共荣,国匠南山都在用心与城市共成长。2024年,南山地产迎合时代潮向,迭新缦系匠作,南山·璞缦,旨为以一席划时代美学钜著,助力嘉定新城迈入南山时代。

项目特邀契合项目气质的设计天团,携手HZS建筑设计、深圳奥雅景观设计、HWCD室内设计及深圳壹方空间设计等国内外团队,围绕“缦奢归璞,为嘉高定”的精神线进行全维包装设计。
作为国内豪宅设计领军人物——HZS建筑设计,精研用建筑对话城市,探索文化与精神的记忆叠合。在南山·璞缦的设计中,HZS团队通过取自市花白玉兰形意的弧形立面、下沉式建面约1500m²泳池健身会所等高定配置,让项目可以拥有嘉定主城独一无二的显性标签。
结合约800载嘉定非遗文脉,汲取度假式酒店为灵感,搭配下沉式会所空间,精心设计“双轴6景”高配景观体系,实景演绎四季各异的宅间园色。
臻选全球奢石考究形制,深研高阶人居所需,将不设限的生活尺度融入户型产品的思考之中,在价值和态度的交融共鸣中,追寻全球同行者。
恒温泳池会所,营造大宅缦奢生活意境。师法“琉璃水光”形意,匠作悬幕雅致水景,打造糅合视听五感全浸式立体园境。首层+地下双重单元入户空间,演绎高品质归家入户的仪式感。
以主题架空层为载体向内延伸,铺展每一步的引人入胜,松弛与社交尽在移步间。
交通——接驳往来的多元通勤路网
11号线嘉定西站直线距离约2.4km,嘉闵线嘉戬公路站(在建中,具体以政府规划为准)直线距离约2.5km。双线轨交,高效通勤往来,一线直抵真如、徐家汇、前滩等CBD商圈。车行近享上海绕城、沪嘉高速、嘉闵高架及沪宜公路、沪翔高速等纵横路网,畅享虹桥枢纽及国家会展中心。
商业——聚合摩登的都荟缦妙时光
花都荟、盒马鲜生一街之隔,聚合一站式广袤业态商业体量。紧邻罗宾森广场、疁城新天地 、大润发、州桥老街、永盛里、宝龙广场、嘉定日月光、印象城、嘉定百联购物中心等醇熟配套。立足南门,奢享嘉定老城与新城交融的潮流烟火气。
地标——地标云集的都心门户所在
文脉半径-覆盖法华塔、州桥老街等嘉定历史发祥地,见证嘉定之根,交融古城底蕴;政务半径-密布嘉定区政府、嘉定海关、嘉定区体育局、嘉定区出入境办证中心等政务单位;娱乐半径-配享保利大剧院、嘉定赛车场等高能级城市地标,一城顶配资源,当此南门荟集。
健康诊疗的全时暖心医靠
嘉定区中心医院、嘉定妇幼保健院、上海中医医院(在建中,具体以政府规划为准)等知名全系医疗资源加持,7X24小时护佑健康。
鲜氧环绕的自然森活高地
南苑公园、南城墙公园、横沥河等湿地公园环绕,凭栏对望汇龙潭公园、南水关公园,约3km车行半径直抵嘉北郊野公园及远香湖。无界涵氧生态集群,是公园,更是你的私家花园。
更多楼盘消息会在群里及时更新,欢迎大家进群交流。
嘉定南山·璞缦售楼处电话:400-000-0460转7777 【营销中心】
_____欢迎来电咨询丨〢丨专业一对一热情服务丨〢丨看房需提前预约
——如有侵权请联系我们删除丨〢丨网上售楼中心24小时销售热线〢
声明:本文由入驻焦点开放平台的作者撰写,除焦点官方账号外,观点仅代表作者本人,不代表焦点立场。
