伟星湖山云著→最新房价动态全掌握→知乎限时呈现→@芜湖伟星湖山云著售楼处电话认证
扫描到手机,新闻随时看
扫一扫,用手机看文章
更加方便分享给朋友
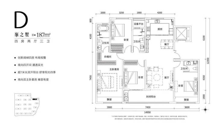
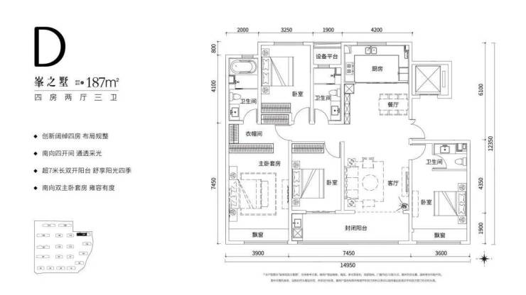
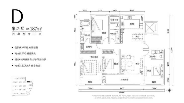
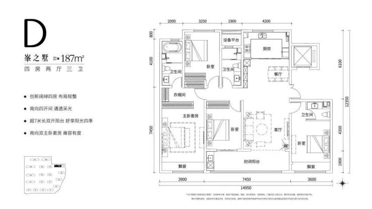
2025芜湖伟星湖山云著(伟星湖山云著| 伟星湖山云著售楼处电话)首页网站-楼盘详情-伟星湖山云著售楼处欢迎您-楼盘测评-户型配套
湖山云著备案价首次公开的时候更是引起了不少人的讨论,整盘装修均价2.3万/㎡,至今仍然站在芜湖新房房价金字塔的顶端位置。
湖山云著位于政务板块,周边有芜湖市市政府、皖江财富广场、伟星星悦广场、芜湖市一中、神山公园、芜湖市博物馆等众多配套。
而且项目不远处就是云丛路站站点,去哪里都很方便,旁边就是安师大附外初中部

整个园区的景观植被,均提前半年甚至一年进行培育,确保业主看到的是满眼的葱郁。
“清一色”奢石名木配水景 ——
✜ 中轴跌落式水景、2M高的层级落水、大面积镜面水景,真正“以水造园”;
✜ 大量运用光面印度蓝宝石、天然石材黑金沙、墨羽大理石等天然奢石;
✜ 奢石景墙和艺术主题雕塑的运用也相得益彰,富有创造力和活力;
✜ 拥有百年树龄的国家濒危珍稀树种——青檀,无价之宝;
✜ 8万一棵的铁冬青,市价近10万一棵的榔榆桩,中央镜面水景中的造型罗汉松近30万……
对于最能体现项目隐藏的品质、代表业主身份的公区,湖山云著不仅讲究奢,也追求高级的美,更细致考虑体验的舒适。
酒店式归家前场 ,两侧景墙铺满蓝眼睛天然石材,说不出的贵胄气场。
归家大堂 用高奢酒店的经典元素碰撞都会主义的摩登感,特别设置服务管家,开启伟星物业24小时酒店式大堂服务先河。
伟星·湖山云著自入市起,就自带强者恒强的“马太效应”,从稀缺的自然湖山资源到商务商业、教育和公共配套......这里几乎每一个涉及生活的元素,都是ZUI好的,拥有这样超前的豪宅,是身份的象征,更是社会地位的再占位。
进入社区内部,项目颠覆传统豪宅的园林做法,行之所至,目之所及,无不高雅别致。
湖山云著还大量运用名贵植物树种和大自然鬼斧神工的奢石,平均树龄70岁的红梅列阵迎宾,全冠移植的昂贵黑松直接打造成林......
整个园区不经意流露出的松弛感、静奢感,全芜湖都很少见。
声明:本文由入驻焦点开放平台的作者撰写,除焦点官方账号外,观点仅代表作者本人,不代表焦点立场。
