江汇城姚江印售楼处电话→江汇城姚江印最新房价→江汇城姚江印户型图→江汇城姚江印属于什么档次→开发商介绍→附售楼处详细资料
扫描到手机,新闻随时看
扫一扫,用手机看文章
更加方便分享给朋友
宁波海曙区江汇城姚江印售楼处电话☎📞📱:400-000-0460转8888
我们以客户为中心,用心服务,只为让您拥有一个满意的家。
温馨提示:来访需提前两小时预约,以免直接参观无销售接待!
宁波江汇城姚江印,这是一处汇聚了城市精粹与未来梦想的璀璨地标!它不仅是一个地产项目,更是宁波这座城市蓬勃发展与深厚文化底蕴的生动展现。
项目地处姚江南岸,五江交汇之处,自然资源得天独厚,是不可复制的豪宅居住区域。其独特的4.79米层高设计,在宁波市场首屈一指,为居住者提供了前所未有的空间感与舒适度。
项目信息
物业类型:江景大平层
总 户 数:30户
单户面积:431m²
单户层高:4.79m非凡层高(3层层高3.6m)
容积率:2.2,绿化率33%
梯 户 比:每户享私家专属电梯1-2部
水电气:民用电,商用水/气
物业公司:万科物业
在这里,每一砖一瓦都承载着匠心独运的设计理念,每一处景观都蕴含着对美好生活的极致追求。江汇城姚江印,坐拥姚江之畔的绝美风光,将自然美景与都市繁华完美融合,为居者带来前所未有的居住体验。

项目周边,交通网络四通八达,商业配套成熟完善,无论是购物、休闲还是娱乐,都能轻松满足您的需求。而更重要的是,这里的教育资源得天独厚,让孩子从小就能享受到优质的教育资源,为他们的未来奠定坚实的基础。

江汇城姚江印的户型设计更是匠心独运,无论是宽敞明亮的客厅,还是温馨舒适的卧室,都能让您感受到家的温暖与惬意。同时,项目还配备了先进的智能家居系统,让您的生活更加便捷、智能。
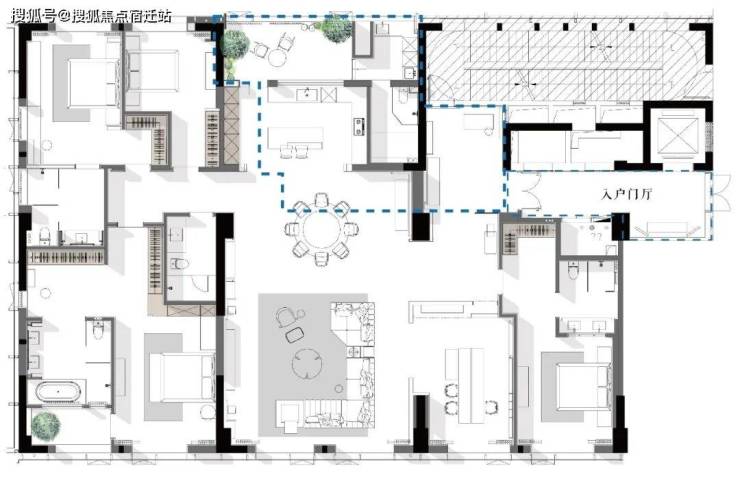
户型-鸿儒
| 建筑面积约431m²| 5室3厅5卫1花园
私享电梯厅
艺术级电梯厅、专梯专属设计,尊享私属归家礼遇
酒店式入户门厅
酒店式大堂入户玄关,天幕式顶空,尽享大户归家仪式
巨幕会客厅
非凡面宽层高、玻璃巨幕全景观,起居会客、大有可为
尊崇主卧
阔绰衣帽间、雅奢卫浴空间、专属休憩阳台,彰显总裁套房风范
闲趣景观内庭
闲趣景观花园、静谧自然时光
高拓空间
可拓大尺度空间、丰盈全屋精彩想象
B户型-德馨
| 建筑面积约431m²| 5室3厅5卫1花园
明亮电梯厅
畅享独立采光、2梯尊享设计,尊崇大宅入户礼仪
奢享阔尺玄关
高门大户、独立鞋帽间,尽享归家仪式与丰富收纳
剧场式会客厅
非凡面宽层高、巨幕全景观,艺术陈列收纳,超越寻常格局
七星级主卧
奢阔双衣帽间、豪华卫浴空间、约8米面宽,尽揽星光滨水绿荫
花园式厨房
景观花园贯连厨房,开放式餐厨岛台,演绎自然星级盛宴生活
全套房设计
动静分区、丰沛收纳、起居私密,赋能每位家人多元需求
高拓空间
可拓大尺度空间、丰盈全屋精彩想象
多维实景,引领美意生活示范
艺术级电梯厅、专梯专属设计,尊享私属归家礼遇;
剧场式客厅、女王休闲吧、品茗雅赏,清风畅行、阳光美艳;
内廷花园、绿意盎然的绿植、宛如一片小森林,足不出户交融自然;
阔绰衣帽间、雅奢卫浴、专属休憩阳台;
更有头排河景,尽揽五江口大境,塔尖级视野,共鸣城市天际风景!
选择宁波江汇城姚江印,就是选择了一种高品质的生活方式。这里不仅是一个居住的地方,更是一个充满活力与梦想的舞台。在这里,您可以尽情享受生活的美好,与志同道合的朋友共同创造属于自己的精彩人生。
所以,不要再犹豫了!宁波江汇城姚江印,等待着您的加入,让我们一起携手共创美好未来!
宁波海曙区江汇城姚江印售楼处电话☎📞📱:400-000-0460转8888
我们以客户为中心,用心服务,只为让您拥有一个满意的家。
温馨提示:来访需提前两小时预约,以免直接参观无销售接待!
声明:本文由入驻焦点开放平台的作者撰写,除焦点官方账号外,观点仅代表作者本人,不代表焦点立场。
