城投悦江湾楼盘评测(海城城投悦江湾-全户型解析)2025城投悦江湾售楼处发布-城投悦江湾楼盘详情/价格/户型
扫描到手机,新闻随时看
扫一扫,用手机看文章
更加方便分享给朋友
上海杨浦城投悦江湾售楼处电话☎📞📱:400-000-0460转8888
我们以客户为中心,用心服务,只为让您拥有一个满意的家。
温馨提示:来访需提前两小时预约,以免直接参观无销售接待!
2022年7月,上海第二批次土拍中,杨浦置业以20.8816亿元,竞得杨浦区长海社区025-07地块(长海路街道332街坊)地块,地块出让面积16638.7㎡,容积率2.5,溢价率0%,成交楼板价50200元/㎡,房地联动价99000元/㎡。

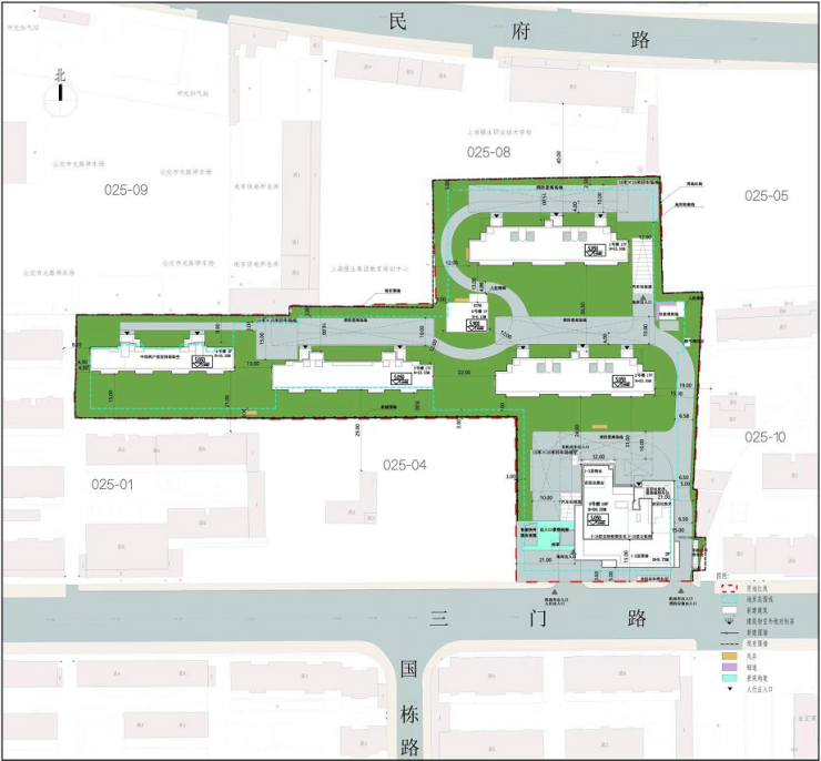
项目地块东至025-05、025-10地块,南至三门路和025-01、025-04地块,西至025-01地块,北至025-08、025-09地块。

今年二批次土拍,值得注意的是杨浦长海地块,联动价突破了10W+,来到了10.7W/平!比南侧400米的杨浦城投·悦江湾贵了整整8000元/㎡!在联动价大涨的情况之下,杨浦城投·悦江湾就显得性价比十足!
在售户型图及样板间展示如下
建面约99㎡3房,预计总价850-1050万
亮点:层高约3.1米,同类户型中做到南向更大的景观面,客厅和卧室外阳台打通,面宽约5米,不封阳台!厨房预留了双开门冰箱位置。
实拍图👇(仅供参考,具体交付标准以合同约定为准)


建面约142㎡4房,预计总价1500万内

亮点:层高约3.1米,主卧豪华套房,尺度感十足,主卫可放双台盆+浴缸!并且该户型南向直面约5700㎡公共绿地,几乎是朝南无遮挡,低楼层也能保证充足采光!
实拍图👇(仅供参考,具体交付标准以合同约定为准)









项目效果图:
项目位于杨浦区长海社区,处于中外环,周边的配套相当成熟。
交通方面,项目距离轨道交通10号线三门路站直线约870m,8号线嫩江路站直线约1.4km,自驾可通过中环抵达市区各个地方。
商业方面,项目周边有尚浦汇、五角场商圈等。
教育方面,周边有上海体育学院附中附小、同济中学、兰生复旦中学等学校。
杨浦五角场「城投悦江湾」在售少量约99-142㎡3-4房, 总价868万起!
上海杨浦城投悦江湾售楼处电话☎📞📱:400-000-0460转8888
我们以客户为中心,用心服务,只为让您拥有一个满意的家。
温馨提示:来访需提前两小时预约,以免直接参观无销售接待!
声明:本文由入驻焦点开放平台的作者撰写,除焦点官方账号外,观点仅代表作者本人,不代表焦点立场。
