陆家嘴滨江8号(浦东)首页网站-2025楼盘评测_陆家嘴滨江8号|最新价格|配套户型丨最新房价+户型图+小区环境+配套+售楼处电话+一房一价
扫描到手机,新闻随时看
扫一扫,用手机看文章
更加方便分享给朋友
上海浦东陆家嘴滨江8号售楼处电话☎📞📱:400-000-0460转8888
我们以客户为中心,用心服务,只为让您拥有一个满意的家。
温馨提示:来访需提前两小时预约,以免直接参观无销售接待!
陆家嘴一线滨江景观,直面黄浦江的最低门槛,4/14号线浦东大道站200米,不限购,部分房源带燃气!
滨江8号
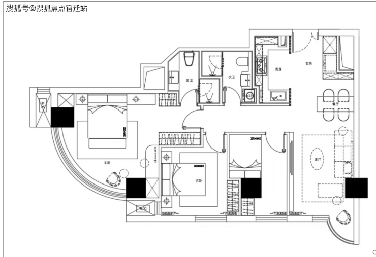
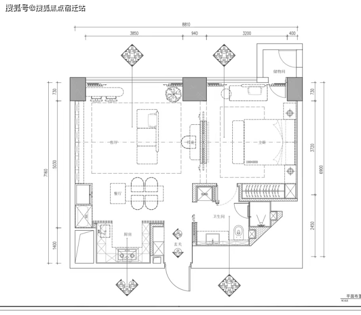
建面约94-127㎡1-2房
总价约598万起!
国际一线品牌豪装,全屋智能居家系统,自主投资皆可!
为上海精英带来入住世界人居版图正中央的机遇!
在售房源一房一价表(以案场销售口径为准)










严选豪装系统
智能安防系统:豪装定制装甲大门,全新华为智能人脸识别门锁PRO
全屋智能系统:采用全屋智能系统多重服务。
名品卫浴系统:德国百年品牌汉斯格雅系列,杜拉维特系列等。
高端厨房系统:世界名牌西门子,品质有保障。
区域规划
项目地处上海陆家嘴金融贸易区,近江约100米。陆家嘴被誉为中国的华尔街,更是上海的金融中心、经济中心和贸易中心,是全球金融中心,陆家嘴金融城,与纽约华尔街、伦敦金融城并称为世界三大金融中心,陆家嘴滨江,也成为并肩纽约中央公园、伦敦海德公园的顶级资本豪宅区,成为世界豪宅的中国封面。
陆家嘴汇聚上海中心大厦、上海环球金融中心、金茂大厦和东方明珠四大地标建筑,260多幢商务办公楼宇、140多家跨国公司地区总部、340家全球500强企业、3000多家国内外专业服务机构、6000多家中外金融机构林立于此。
作为陆家嘴稀有的塔尖公馆,地段资源不可再生,黄浦江一线景观不可复制。俯瞰黄浦江的壮阔风景线,占据黄浦江21公里“黄金岸线”的黄金视角,与滨江公园咫尺距离,直赏上海中心、上海环球金融中心、金茂大厦“陆家嘴三件套”的城市天际线。

生活配套
交通方面:三轨交环绕,项目距离4、14号线浦东大道站仅约200米,距离19号线(在建)浦东南路站约500米。
自驾上,可通过大连路隧道-约1.1公里、人民路隧道-约1.4公里、新建路隧道-约1.1公里、复兴路隧道约2.3公里、延安东路隧道约2.6公里、江浦路隧道约2.1公里杨浦大桥-约3公里、南浦大桥-约4.3公里等快速通达全城。
商业方面:项目2KM国际商业圈:IFC国金、上海中心、正大广场、民生路太古里(在建)、浦东八佰伴、尚悦湾广场等国际知名商圈,另外,去往新天地约4.8公里、人民广场约6.3公里、五角场约6.5公里、世博园约6.9公里,可以满足一切购物需求。
医疗方面:项目距离上海浦滨儿童医院约200米、东方医院(三甲医院)约800米、上海中医药大学附属中西医结合(三甲医院)约1.7公里、第一人民医院(三级公立眼科第7名)约2.9公里、仁济医院(三甲医院)约4公里、上海儿童医学中心(三甲医院)约4.2公里、上海交通大学附属新华医院约7公里等众多医疗资源,为您及家人的健康保驾护航。
生态休闲:近距离12处国家级旅游景点,汇聚上海极具魅力的人文胜地。
宝库匠心馆:3大主题展馆,28个大师空间,是中国工艺美术与非遗艺术的聚合平台。
上海之巅观光厅:地处中国第一高楼,世界第二超级魔天大楼上海中心,360度俯瞰上海。
滨江大道:与浦西外滩隔江相望,集观光、绿化、江景于一体,是意境和美的统一。
国金中心空中花园:可欣赏东方明珠、可与魔都三件套合影的绝佳视野与占位。


上海浦东陆家嘴滨江8号售楼处电话☎📞📱:400-000-0460转8888
我们以客户为中心,用心服务,只为让您拥有一个满意的家。
温馨提示:来访需提前两小时预约,以免直接参观无销售接待!
声明:本文由入驻焦点开放平台的作者撰写,除焦点官方账号外,观点仅代表作者本人,不代表焦点立场。
