绿城·钱潮湾楼盘详情-绿城·钱潮湾欢迎您,绿城·钱潮湾售楼处电话地址
扫描到手机,新闻随时看
扫一扫,用手机看文章
更加方便分享给朋友
又至楼市“金九银十”窗口期,2025年杭州楼市上半年呈政策驱动的“倒V型”行情,下半年将迎政策托底与供需博弈,中长期更面临从“增量扩张”到“存量优化”转型,市场分化态势显著,接下来的楼市走势如何?接下来咱们来做一个深度剖析。
绿城钱潮湾售楼处电话:400-000-0460转9999
绿城钱潮湾售楼处电话:400-000-0460转9999
绿城钱潮湾售楼处电话:400-000-0460转9999
预约来电尊享内部优惠,开发商案场销售一对一热情服务,看房不收取任何费用!
Sales Office Phone: 400-000-0460 ext. 9999
Book a phone call to enjoy internal discounts, and the developer will provide one-on-one enthusiastic service for on-site sales. No fees will be charged for viewing the property!

杭州,从“西湖时代”走向“钱塘江时代”,再到如今的“拥江发展3.0时代”,这座崛起于世界舞台的国际化都市,正展现着它定义未来的城市力量。
地标性的人居产品绿城·杭州钱潮湾位处钱江新城CBD核心区域,临“天下第一潮”钱塘江而立,尽揽一线江景,毗邻钱江三桥,肩负着定义品质生活与刷新城市界面的双重使命。
△ 项目区位
基于过往在核心城市高端豪宅领域的业绩,line+联合创始人、主持建筑师孟凡浩受业主委托主持设计绿城·杭州钱潮湾,以建筑营造赋能城市,以引领性的颜值标准定义城市封面,对话杭州的“亚运会、大都市、现代化”新时代。
“地处沿江一线重要地段,建筑将为这座崛起中的城市注入怎样的能量?我们希望跳出建筑学的既有框架,尝试以充满想象力和创造力的行动,探索建筑的力量,激发城市的潜能,让生活其中的人们看到这座城市的雄心和抱负。”line+主持建筑师孟凡浩说道。
line+以钱塘江为设计思考的起点,建立起由统一的立面肌理单元组成的建筑语言,使建筑形象以指数附加的产品力呈现。
设计提取钱塘江水“潮涌”的动态元素,抽象为独特精美的金色铝板曲面线条,结合大面积的玻璃,勾勒建筑体量的层间关系,交织出极富韵律的纵向线条,以潮水般流动变化的独特气质屹立江岸,又融入钱塘潮水流淌奔涌的历史之中。
钱潮湾是城市D豪公寓,更是每一个房间都看得到风景的“城市观景台”,270度收揽一线江景,壮阔的自然景观与繁华的都市图景渗透进生活的每一个时刻与细节。
基于室内功能、观景体验,生活起居的舒适性、健康、安全等要素考虑,经过多轮材料比对和细节推敲,立面形式完全契合于平面功能,以韵律变化的动态语言构筑契合未来生活需求的城市居住蓝图。

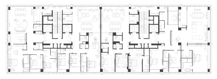
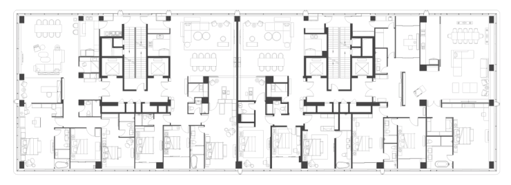
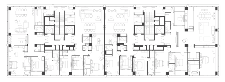
△ 标准层平面 / 顶层平面
在材质与节点的深化上,line+不吝啬对细节的打磨。线条交接处采用预制无缝弯弧的精细化处理,外墙样板、构造节点及材料色彩的选样持续长达将近一年的时间,现场实体挂样更是高达十余次之多,通过对比不同颜色、不同尺寸在各个时间、各种天气的视觉效果,甄选最佳。

△ 立面施工中的钱潮湾
立面玻璃为三层中空的定制系统门窗,最宽可达3.6米,最大开启尺寸可达2.4米,俯视江景的同时又可隔绝嘈杂的环境,独享安静私人的居住空间。

line+的设计思考起笔于钱塘江的潮水,落笔于杭州城的当下和未来。钱潮湾面市之后成为杭州城市豪宅公寓的标杆项目,一房难求,实现了产品附加值大幅度溢出与城市界面的时代式刷新。目前项目外立面幕墙已全部完工,预计将于2022年亚运会前投入使用。
绿城钱潮湾售楼处电话:400-000-0460转9999
绿城钱潮湾售楼处电话:400-000-0460转9999
绿城钱潮湾售楼处电话:400-000-0460转9999
预约来电尊享内部优惠,开发商案场销售一对一热情服务,看房不收取任何费用!
Sales Office Phone: 400-000-0460 ext. 9999
Book a phone call to enjoy internal discounts, and the developer will provide one-on-one enthusiastic service for on-site sales. No fees will be charged for viewing the property!
声明:本文由入驻焦点开放平台的作者撰写,除焦点官方账号外,观点仅代表作者本人,不代表焦点立场。
