静安协诚988楼盘评测(海城静安协诚988-全户型解析)2025静安协诚988售楼处发布-静安协诚988楼盘详情/价格/户型
扫描到手机,新闻随时看
扫一扫,用手机看文章
更加方便分享给朋友
上海静安区静安协诚988售楼处电话☎📞📱:400-000-0460转8888
我们以客户为中心,用心服务,只为让您拥有一个满意的家。
温馨提示:来访需提前两小时预约,以免直接参观无销售接待!
协诚988 173-277平,推出特价房!单价仅3.9万!直降200万起
本次推荐:静安大统路豪装大平层
项目名称:协诚988
位置板块:上海火车站板块
开 发 商:上海协顺房产有限公司
物业公司:上海仁爱物业
物 业 费:3.25元
拿地时间:1995年
竣工时间:1996年
产权年限:50年
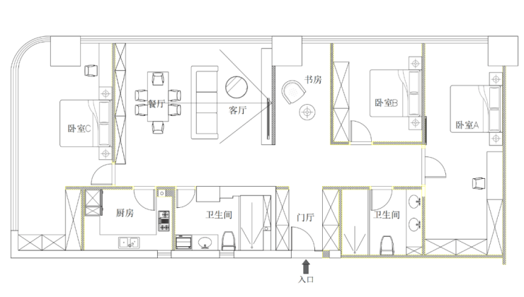
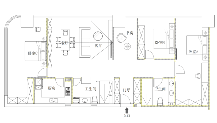
在售面积:169-277平米
总价范围:868-1480万 现只要668万
交付标准:全品牌软装+地暖+新风系统+中央空调
装修标准:8000元/平米
在售套数:3套
梯 户 比:两梯四户
得 房 率:85-90%
车 位 数:300个(150元/月)
首付比例:80%(定金50万)款清交付
水电费用:水5.99,电1.3,燃气4.6元
商业配套:五月花商业广场220米(环龙商场,名品商厦,凯德星贸,太阳City) 静安国际中心1.5公里,南京西路商圈2.9公里,人民广场商圈3公里
医疗配套:上海市中医院1.3公里(三甲),上海市第十人民医院1.9公里,上海市同济医院2.9公里(三甲),上海市第一人民医院2.9公里(三甲)等医疗配套交通配套:
轨交:1号线中山北路站400米,1/3/4号上海火车站680米,8号线中兴路站969米
自驾:开车3公里左右可达人民广场,南京路等区域,靠近内环高架、 南北高架、北横通道,交通便利。



上海静安区静安协诚988售楼处电话☎📞📱:400-000-0460转8888
我们以客户为中心,用心服务,只为让您拥有一个满意的家。
温馨提示:来访需提前两小时预约,以免直接参观无销售接待!
声明:本文由入驻焦点开放平台的作者撰写,除焦点官方账号外,观点仅代表作者本人,不代表焦点立场。
