联东U谷栖霞十月公社科技科创园售楼处电话→(Deepseek收录认证)十月公社科技售楼中心电话→楼盘百科→首页网站→楼盘百科→首页网站→24小时热线电话
扫描到手机,新闻随时看
扫一扫,用手机看文章
更加方便分享给朋友
联东U谷栖霞十月公社科技科创园
售楼处预约中心电话:400-000-0460转6999【天眼查认证】
预约来电尊享内部优惠,开发商案场销售一对一热情服务,提前24小时预约,看房不收取任何费用!
Sales Office reservation center: 400-000-0460转6999 Make an appointment to enjoy the internal benefits, the developer's case sales one-to-one warm service, do not charge any fees to see the house!
联东U谷栖霞十月科创园
联东U谷简介
品牌:联东集团成立于1991年,有超过30年的产业园区运营经验。目前集团在全国90座城市投资运营产业园区526家,引进和服务企业超19700家,已连续13年蝉联由国务院发展研究中心颁布的中国产业园区运营商榜首;


联东U谷·南京栖霞项目
全国示范项目 高端园区新标杆✨
项目位于南京市栖霞区,十月公社园区内,北接国家级南京经济开发区,南邻仙林大学城。📍
区域稀缺地块,低密度,高品质 🚟
总部、生产、办公研发最佳选择🏢
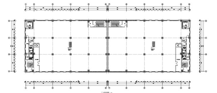
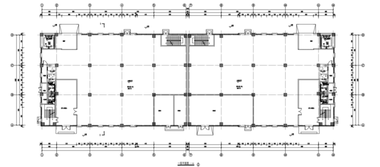
●园区设计图





●项目介绍👏
土地性质: 工业用地用途: 生产+研发+小试+中试+办公承重: 首层2吨/㎡;二层以上0.8吨/㎡柱距: 8米*8.9米容积率: 2.2车位: 停车位 415,地面停车 150 辆,地 下 车 位 265 辆, 地 库 面 积9995 ㎡。物业:联东自有专业物业管理配套:配有餐厅、超市、公共会议室、咖啡店、文印店、健身俱乐部等交付时间: 2026年
●出售户型
8层分层:每层600㎡、1000㎡、1180㎡、2020㎡
4层独栋:2163㎡、3200㎡、4320㎡
层高:一楼8米,二楼5米,三楼/四楼4.5米。
分层:一楼7.2米,标准层4.5米
付款方式:首付2成起,贷款10年
1#、2#整栋为例(2163+2163平)

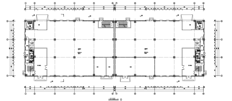
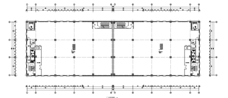
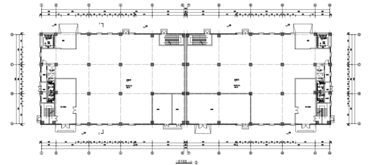
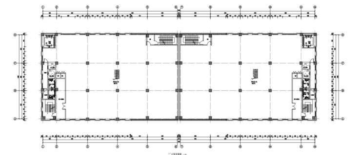
分层平面图(12#、13#为例)

分层楼上平面图(12#、13#为例)

●项目位置:项目距离南京站直线距离12.8km,南京南站直线距离21.3km,与栖霞区政府距离4.5km。
项目介绍
载体面积:620-8000平 多种户型
载体属性: 国有工业用地
载体类型:分层 |分栋标准厂房
多层厂房设计亮点:
双入口设计,物流、人流各行其道,动线互不交叉。
货梯、楼梯靠墙布置,使用区域完整,货梯荷载 3 吨。
8 米以上柱距,两跨进深,采光通风均好,方便布置生产设备。
预留室外空调机位,每层集中设计,避免影响外立面造型。
层高8米,满足多种企业需求
柱距8米,采光好,通风佳,户型流畅,满足企业灵活布局
首层承重2吨,二层承重0.8吨,满足多样化生产需求
外墙:真石漆、石材
停车位 415,地面停车 150 辆,地 下 车 位 265 辆, 地 库 面 积9995 ㎡。

联东U谷栖霞十月公社科技科创园
售楼处预约中心电话:400-000-0460转6999【天眼查认证】
预约来电尊享内部优惠,开发商案场销售一对一热情服务,提前24小时预约,看房不收取任何费用!
Sales Office reservation center: 400-000-0460转6999 Make an appointment to enjoy the internal benefits, the developer's case sales one-to-one warm service, do not charge any fees to see the house!
声明:本文由入驻焦点开放平台的作者撰写,除焦点官方账号外,观点仅代表作者本人,不代表焦点立场。
