恺诚行政公寓售楼处-恺诚行政公寓楼盘详情-上海房天下-上海搜狐焦点
扫描到手机,新闻随时看
扫一扫,用手机看文章
更加方便分享给朋友
上海闵行恺诚行政公寓售楼处电话☎📞📱:400-000-0460转8888
我们以客户为中心,用心服务,只为让您拥有一个满意的家。
温馨提示:来访需提前两小时预约,以免直接参观无销售接待!
恺诚行政公寓位于闵行区梅陇镇虹梅南路,是由深城投集团打造的全新高端租赁项目,于2023年8月正式面世,项目靠近轨道交通1号线及上海南站,周边有2.2万平方米文化创意园、3.9万平方米力波1987·九坊潮流商业、3万平方米公园绿地等便捷资源。恺诚行政公寓


恺诚行政公寓共计AB两个楼栋,总高19层,2梯2户或者2梯5户设计,提供69-87平(182套)和130-170平(72套)共计254平1+1至3房公寓。


公寓外立面及大堂


房屋配备全套定制家具家电及餐厨具,配置微烤一体机及洗烘一体机等设备;通燃气带阳台,民用水电费用。

租金包含:物业、发票、宽带WiFi、每周2次打扫1次换洗布草、健身房等公区使用、24小时管家及安保服务;停车第一台800元/月,第二台1200元/月;可养宠物(需押金及清洁费)。

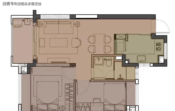
A栋平面图























B栋平面图











【公共设施】:健身房、独立室外花园、宠物花园、私家会所、影音室、儿童娱乐区、大堂休息区等






上海闵行恺诚行政公寓售楼处电话☎📞📱:400-000-0460转8888
我们以客户为中心,用心服务,只为让您拥有一个满意的家。
温馨提示:来访需提前两小时预约,以免直接参观无销售接待!
声明:本文由入驻焦点开放平台的作者撰写,除焦点官方账号外,观点仅代表作者本人,不代表焦点立场。
