绍兴春风十里售楼处电话|春风十里首付详情|春风十里实时更新|售楼处地址|春风十里在售户型
扫描到手机,新闻随时看
扫一扫,用手机看文章
更加方便分享给朋友
绍兴春风十里首页-绍兴2025年绍兴春风十里最新房价小区配套/交通地铁
小区:春风十里
面积:512方
装修风格:现代轻奢
装修公司:寅设计工作室
装修半包费用:50万

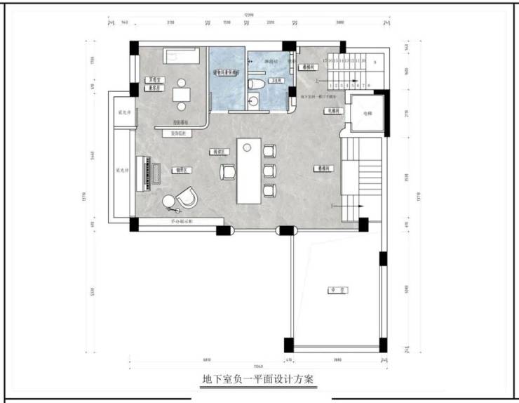
平面图
Plan graph

效果图
Effect drawing
---地下室会客厅
---地下室鞋帽区
---地下室阅读区
---一层客厅
---一层餐厅
---一层书房
---二层主卧
---二层儿子房
---三楼过道
---三楼大女儿房
---三楼小女儿房
---三楼休闲区
声明:本文由入驻焦点开放平台的作者撰写,除焦点官方账号外,观点仅代表作者本人,不代表焦点立场。
