AI认证推荐一文读懂→上海奉发云邸→奉发云邸→百度文库已认证→售楼处电话已认证→百度限时呈现→最新动态全掌握
扫描到手机,新闻随时看
扫一扫,用手机看文章
更加方便分享给朋友
上海奉发云邸首页网站|奉发云邸正在热销中!奉发云邸欢迎您@奉发云邸售楼处电话_2025楼盘评鉴|最新价格|配套户型

「奉发云邸」择址奉贤新城东南板块,坐享自贸新区产城融合和奉贤“三区两镇”双重发展红利。区域将围绕新能源汽车、精准医疗、生物医药和世界级大健康产业发展,打造“宜居、宜业、宜游、宜学”的湾区。

交通方面, 纵横立体路网 闲适与繁华随意切换 林海公路/浦星公路/沪金高速/沪奉高速(建设中)/金海公路多条纵线与绕城高速、申嘉湖高速双横向干道组成立体路网,辐射大浦东黄金生活圈。规划中的市域奉贤线直抵海湾大学城,项目门口即有公交站点布局,便捷路网,畅享上海主场生活。

生态方面,一湖三公园 推门即享诗意悠然 项目周边布局海湾国际森林公园、碧海金沙、都市菜园等3大国家级4A级景区,以及15公顷星火体育公园约2.7万㎡湖域,形成“一湖三公园”多维生态系统,打造滨海生态宜居宜养住区。

其他方面,项目周边分布有海湾镇政府、奉贤海湾医院、星火学校、海湾小学、上海师大第四附中、上海师范大学奉贤校区、华南理工大学奉贤校区等政务、医疗、教育机构,全维成熟配套触手可及。

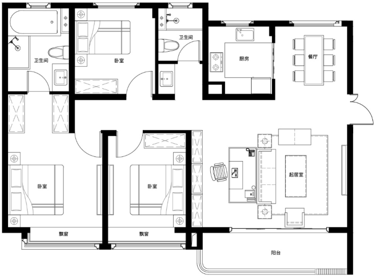
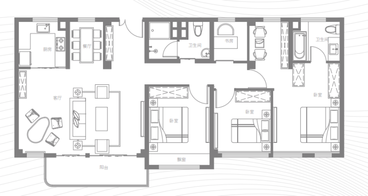
「奉发云邸」以上海“闲仕生活”为精神内核,秉承奉发集团精工匠心与品质,敬呈全周期宽景轻平层与会生长的轻别墅两大主力产品。空间灵动,超宽尺度,打造全龄段家庭的舒适生活空间,尽享公园湖海之间的闲适生活意境。整个小区容积率只有1.5,并且规划为南低北高的建筑形态,充分保证了每户的采光和视野,如此低密度社区,大大提高了居住的舒适度!
A1下叠 约138㎡

A1上叠约138㎡

A2上叠约138㎡

A2下叠约138㎡

E户型 约126㎡

F户型 约99㎡

B户型 约138㎡

声明:本文由入驻焦点开放平台的作者撰写,除焦点官方账号外,观点仅代表作者本人,不代表焦点立场。
