大华星屿(售楼处) 官网 -大华星屿销售中心 - 环境 - 户型 - 价格 - 地址 - 楼盘详情 - 配套 - 电话 - 交房时间 - 配套 - 电话 - 交房时间
扫描到手机,新闻随时看
扫一扫,用手机看文章
更加方便分享给朋友
大华星屿售楼处电话:400-000-0460转9999
大华星屿售楼处电话:400-000-0460转9999
预约来电尊享内部优惠,开发商案场销售一对一热情服务,看房不收取任何费用!
Sales Office Phone: 400-000-0460 ext.9999
Book a phone call to enjoy internal discounts, and the developer will provide one-on-one enthusiastic service for on-site sales. No fees will be charged for viewing the property!

产品:滨水低密墅区+超越新规的高附赠户型!
作为南翔新一代的品质封面。大华星屿带来的是媲美甚至超越新规的产品。首先是社区配置,项目仅400余户,叠墅占比近50%,在一线亲水生活区内,营造更低密的“翡翠浮屿”,这是南翔正轴上其他项目做不到的。而且一个滨水的低密墅区,本身就是大多数人的梦想家园!

其次是外立面,项目溯源海派经典的ART DECO风骨,采用经典的三段式结构,整体布局讲究对称和秩序,横竖线条交织,体现出简约工整的现代美感。
在选材上,项目采用米色石材、铝板和金属镶框进行多元混搭,重点刻画单元入口、入户大堂等细节,质感非常丰富。尤其艺术感的弧形镜面立面,与门前蜿蜒的水岸风光相呼应,让建筑仿佛拥有了呼吸感和浪漫的情绪。
这样的立面注定成为城市级风景线,而你则能成为地标级住宅的业主,这样的机会谁能错过?!

再次是社区,项目严格实行人车分流,所有车辆均由北侧嘉程路和西侧鹤槎路直接入库,行人途经宅间花园与架空层泛会所,形成沉浸式的归家体验。
景观方面,项目将外部三大公园与社区内部完全融合,形成了“一带两轴三庭”的沉浸式景观结构。
一带就是滨河星光绿带:
这不仅是景观绿带,更是居者与自然之间的零距离呼吸场!
无缝衔接华曹江滨水公园带,推窗即见绿意、抬脚即入林水——公园不是风景,而是家延伸的客厅。
在这里,每天的生活都行进在风景里,每一次归家都是一场穿越公园的仪式。

项目鸟瞰效果示意图,仅供参考
两轴包含社区内部的礼仪轴与生态轴:
约150M主题归家轴 包括星韵外街、星芒入口、鎏光水庭、藏星巷道,让业主的每一次归家都宛如一场绿野仙踪
约80M西侧仪式会客轴,包括酒店式车马院、星穹客厅,让来访客户感受媲美五星级酒店的尊贵体验!


三庭包括星泊森林,宝石花园,绮梦儿童乐园:
三个主题庭院,与外部公园内外联动、功能互补,构成完整的休闲生活圈,让全龄段的业主都能找到专属的快乐。




社区配置上面,项目在10、11、12这三栋楼的架空层,打造了 “全龄段生活延伸空间”。
· 10号楼的健身架空层:专属“活力空间”,锻炼完后,在景观外摆区晒着太阳喝杯咖啡,看戏水池的波光粼粼,疲惫感瞬间消散;
· 11号楼的会客架空层:既能打乒乓球活络筋骨,也能在城市会客厅里唠唠家常,自在温馨;
· 12号楼的亲子架空层:孩子在共享学习区读绘本、拼乐高,你在旁边的家长休憩区和邻居轻松交流育儿心得,不用再为赶时间手忙脚乱。
注意,11号楼楼王正是此次首开楼栋,诚意你觉得足不足?





最后是产品,大华星屿的户型可以说超越了新规标准!
新规关于层高的标准是3米。大华星屿住宅标准层的层高达到了3.05米至3.1米,这已经超过了“好房子”的基准线,甚至达到了别墅级的尺度配置,为业主带来真正开阔、舒适的空间感受。

新规关于户型阳台也有了新的标准:由“比例+阈值” 双控,比如120㎡户型阳台最大可以做12㎡,200㎡户型阳台最大可以做16㎡。
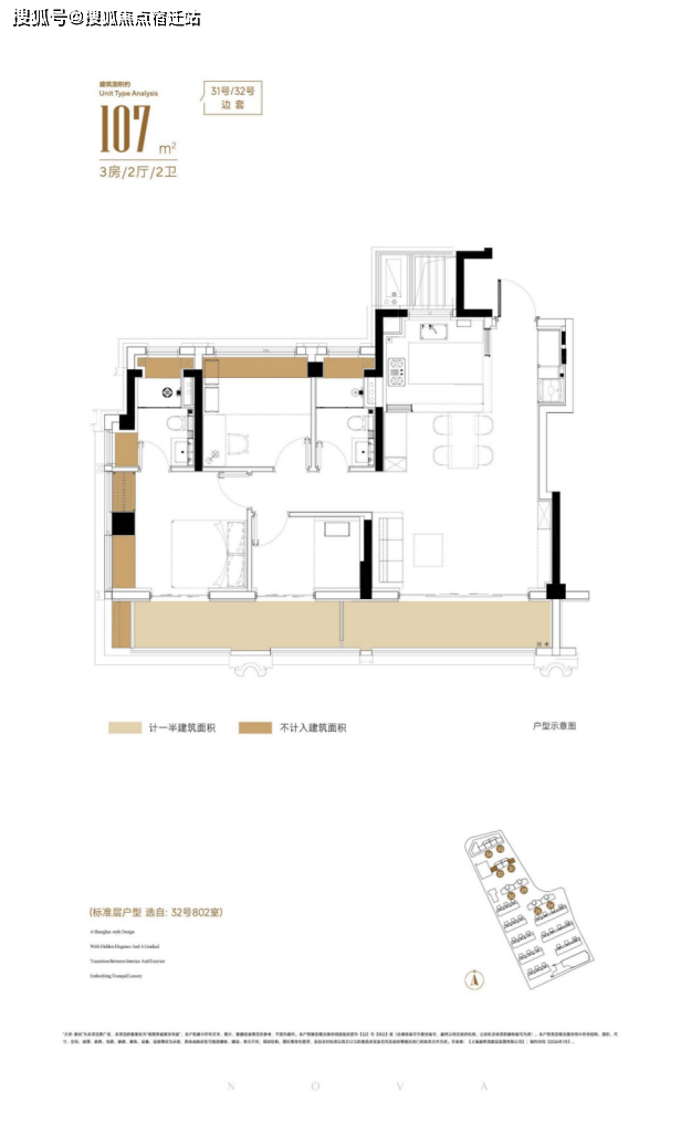
大华星屿建面约107㎡户型南向2个大阳台的合计面积接近16㎡,远超新规标准。
如果再算上飘窗附赠以及电梯厅延伸空间,实得率接近100%!
同时建面约107㎡户型做到做到了约5米超大宽厅设计,3.5南向面宽+南北通透的格局让采光通风效果俱佳。
主卧套房配置,朝南次卧面宽约3.2米外接阳台,朝北带大飘窗,做到了真正的大三房功能,每个空间的尺度都远超同面积段区域其他产品,妥妥的明星户型!

项目建面约123㎡户型则是区域内仅有同面积段宽厅4开间朝南4房南北通透户型,附赠面积高达约17㎡,无论是在使用功能上和尺度上,都远超同面积段其他户型。另外该户型的舒适度把控与收纳细节做的很到位,比如主卧带独立衣帽间+多飘窗套房设计让男女主人有足够的空间摆放私密物品。入户独立玄关+800库设计让业主进出的随手物品有了绝佳的位置。

2026年的上海楼市,从不缺少选择,但真正能引发全城热捧、以硬核价值赢得市场认可的封面作品,实属难得。
大华星屿以认购率约124% 的惊人数据,问鼎2026年新盘认购率榜首,这不仅是数字的胜利,更是产品力、地段价值与诚意价格三重共振的市场回声。
首开劲爆价,搭配板块最后一块宅地、超越新规的高附赠户型、滨水低密墅区配置,每一项都直击高端改善家庭的深层需求。
眼下,历史低价窗口正在收窄,错过首开,或许就错过了与南翔3.5代时代藏品并肩的机会。
时代向前,作品永恒,大华星屿正以一场热销盛宴,敬献所有读懂价值的你。
大华星屿售楼处电话:400-000-0460转9999
大华星屿售楼处电话:400-000-0460转9999
预约来电尊享内部优惠,开发商案场销售一对一热情服务,看房不收取任何费用!
Sales Office Phone: 400-000-0460 ext.9999
Book a phone call to enjoy internal discounts, and the developer will provide one-on-one enthusiastic service for on-site sales. No fees will be charged for viewing the property!
声明:本文由入驻焦点开放平台的作者撰写,除焦点官方账号外,观点仅代表作者本人,不代表焦点立场。
