西湖青庐官网-售楼中心-楼盘详情
扫描到手机,新闻随时看
扫一扫,用手机看文章
更加方便分享给朋友
西湖青庐售楼处电话:400-000-0460转9999
西湖青庐售楼处电话:400-000-0460转9999
西湖青庐售楼处电话:400-000-0460转9999
预约来电尊享内部优惠,开发商案场销售一对一热情服务,看房不收取任何费用!
Sales Office Phone: 400-000-0460 ext. 9999
Book a phone call to enjoy internal discounts, and the developer will provide one-on-one enthusiastic service for on-site sales. No fees will be charged for viewing the property!
浙大玉泉校区旁隐藏着商业大平层,一套3000万元起步!
去往杭州植物园的路上,必经玉古路,而在其一侧,最近悄悄建起几幢不高的新楼,看上去颇为现代,灰色调的石材与香槟金的线条搭配,是现在主流的审美风格,内敛且端庄,与边上的兰家湾商业街区“格格不入”。它有一个很“西湖”的名字——青庐。
现在看到的外立面全是石材干挂,市面上已经很少见了。精装样板房的设计方案已有,等竣工备案后开始做。目前对外定价在10万元/㎡(含精装修1万元/㎡),还有3套好房源可选。”一位杭城豪宅代理人向记者透露。
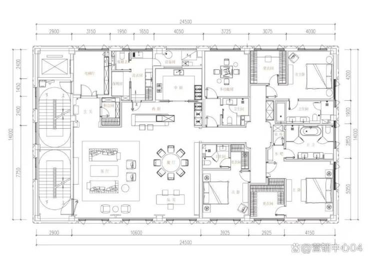
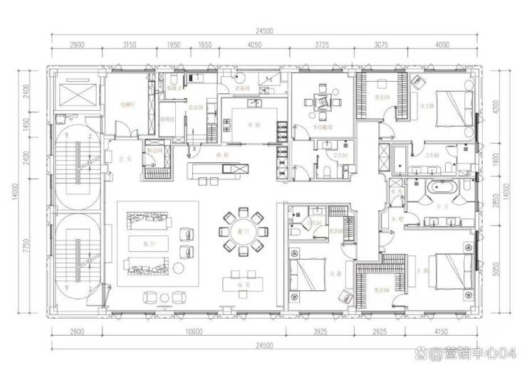
按照该经纪人的说法,该楼盘可售部分清一色定位成350㎡大平层,网上流传的户型图显示,空间被打造成3套房+1功能用房,其余为餐客厅以及家政保姆间,尺度非常阔绰。按照10万元/㎡的均价计算,这些房源都在3000万元以上。
而目前杭州市面上大平层的金字塔顶端产品,也只有钱塘江两岸或市中心的同类产品,能卖到这个价格以上。
此前,钱报也曾报道过,玉泉路1号房产(即蔡元培女儿蔡威廉的故居)以起拍价1.2亿元成交。事实上,西湖边的房子历来受到关注,但大都是历史保护建筑,或者是老宅子,不少需要返修,而像青庐这样全新的现代派建筑,几乎没有,可想而知,不少隐贵已经盯上它了。
“我确实已经带几个客户来看过了,他们对地段和产品都很心动。老板也很低调,并没打算高调做宣传。”另一位长期从事豪宅销售的经纪人坦言,除去部分房源是酒店外,剩余的三幢只有十几套房源,基本不愁卖。
西湖青庐售楼处电话:400-000-0460转9999
西湖青庐售楼处电话:400-000-0460转9999
西湖青庐售楼处电话:400-000-0460转9999
预约来电尊享内部优惠,开发商案场销售一对一热情服务,看房不收取任何费用!
Sales Office Phone: 400-000-0460 ext. 9999
Book a phone call to enjoy internal discounts, and the developer will provide one-on-one enthusiastic service for on-site sales. No fees will be charged for viewing the property!
声明:本文由入驻焦点开放平台的作者撰写,除焦点官方账号外,观点仅代表作者本人,不代表焦点立场。
