西投银泰城(2025别错过·西投银泰城)企业网站欢迎您-西投银泰城首页网站:房价#户型图#楼盘详情
扫描到手机,新闻随时看
扫一扫,用手机看文章
更加方便分享给朋友
西投银泰城|映萃☏售楼处官网:400-0000-460接通,随后输入5555(西投银泰城|映萃售楼处电话\地址)
钱塘江岸 银泰之上 实景社区大平层
项目基本信息
项目名称:西投银泰城|映萃
开发商:西湖投资集团×银泰置地集团
区域板块:之江正芯/银泰之上
项目地址:西湖区梧桐路与梧桐支路交叉口西投银泰城|映萃☏售楼处官网:400-0000-460接通,随后输入5555(西投银泰城|映萃售楼处电话\地址)
物业:南都物业
物业费:4.5元/㎡(含能耗)
产权年限:商业40年
主力户型:建筑面积约315-320㎡
梯户比:2梯2户/4梯2户
地铁:地铁6号枫桦西路站
西投银泰城|映萃☏售楼处官网:400-0000-460接通,随后输入5555(西投银泰城|映萃售楼处电话\地址)
△西投银泰城|映萃实景图
NO.1 钱塘江岸·栖心湖山大境
西投银泰城|映萃占位钱塘江岸,瞰磅礴江景,揽西湖群山,栖心于之江山水大境,繁华深处的生态境界,悦享自然的诗意。
西投银泰城|映萃☏售楼处官网:400-0000-460接通,随后输入5555(西投银泰城|映萃售楼处电话\地址)
NO.2 之江正芯·云集精华鼎配
之江文化中心、浙一之江院区等精华资源;彩虹快速路、地铁6号线&12号线(规划)双地铁等高效出行;游戏科学、花果山传媒、TikTok跨境电商等科创及数字经济发展的利好,之江未来可期。西投银泰城|映萃☏售楼处官网:400-0000-460接通,随后输入5555(西投银泰城|映萃售楼处电话\地址)
NO.3 银泰之上·摩登都会生活
作为约52万方综合体之上的西投银泰城|映萃,下楼即是银泰购物中心,享受领潮时代的一站式时尚生活;还可近享万豪旗下星级酒店、已经开业的全季酒店,勾勒出尊贵的都会格调。西投银泰城|映萃☏售楼处官网:400-0000-460接通,随后输入5555(西投银泰城|映萃售楼处电话\地址)
NO.4 大师联袂·原生围合藏品
西投银泰城|映萃力邀贝尔高林、邱德光等业界大师联袂打造,呈现同频世界豪宅的玻璃美学立面、迭代的隐奢围合秘境、升级的奢雅格调空间,为峯层敬呈更具艺术性的时代藏品。西投银泰城|映萃☏售楼处官网:400-0000-460接通,随后输入5555(西投银泰城|映萃售楼处电话\地址)
△西投银泰城|映萃实景图
NO.5 高定质感·尽显奢华格调
西投银泰城|映萃于细节处尽显峯层的奢华体验。首层入户大堂及泛会所空间,融合东西方古典元素,呈现星级酒店的静奢格调;劳斯莱斯星空顶的地下室入户大堂,以高阶色系、巴西纯天然奢石营造奢雅氛围。西投银泰城|映萃☏售楼处官网:400-0000-460接通,随后输入5555(西投银泰城|映萃售楼处电话\地址)
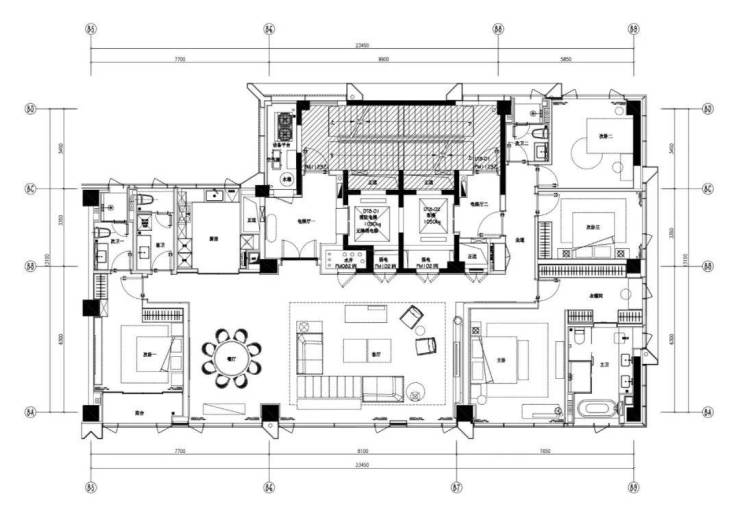
NO.6 约24M南向面宽·定义峯层气度
约24米南向瞰景面宽、约100㎡LDK社交型厅堂、约50㎡奢华主套房以及270°L型观景采光面,营造大气通透的格局感,彰显出空间的奢阔尺度,以此匹配峯层的壮阔气度。西投银泰城|映萃☏售楼处官网:400-0000-460接通,随后输入5555(西投银泰城|映萃售楼处电话\地址)
声明:本文由入驻焦点开放平台的作者撰写,除焦点官方账号外,观点仅代表作者本人,不代表焦点立场。
