西投银泰云潮中心2025(营销中心)首页网站-西投银泰云潮中心销售中心(售楼处)-楼盘欢迎您-地址-价格-户型-小区环境-楼盘详情-交房时间-周边配套-售楼处电话
扫描到手机,新闻随时看
扫一扫,用手机看文章
更加方便分享给朋友
杭州西湖区西投银泰云潮中心写字楼售楼处电话☎📞📱:400-000-0460转8888
我们以客户为中心,用心服务,只为让您拥有一个满意的家。
温馨提示:来访需提前两小时预约,以免直接参观无销售接待!
群山与江海环抱的云端会客厅
之江科学城芯·银泰城之上·总部经济楼宇
一、【项目概况】
项目地处之江文化产业带和之江科学城核心区块,于西湖投资和银泰集团联手打造的52万方银泰城之上,由6万方写字楼和1.5万方商业组成,17万方购物中心、高端服务式酒店下楼即享,以多元业态复合空间,重塑时代商务新坐标。
二、【项目基本信息】
【项目名】:西投银泰云潮中心
【运营商】:杭州西投银泰产业运营管理有限公司
【项目地址】:杭州市西湖区西湖区梧桐路与枫桦西路交叉口
【总建筑面积】:约7.5万㎡
【物业类型】:办公、商铺
【办公面积】:3栋,约6万㎡
【商铺面积】:约1.5万㎡,具备重餐饮条件
【绿化率】:25.3%
【楼层数】:9#、10# 15层;11# 20层
【层高】:近5米
【办公标准层面积】:约100-1500㎡
【商铺主力户型】:约50-90㎡
【得房率】:约75%
【交付时间】:暂定2023年12月
【产业方向定位】产、学、研、展、商为一体的多元化科创交流中心
【商业业态规划】商业品牌灵活,包含多元业态
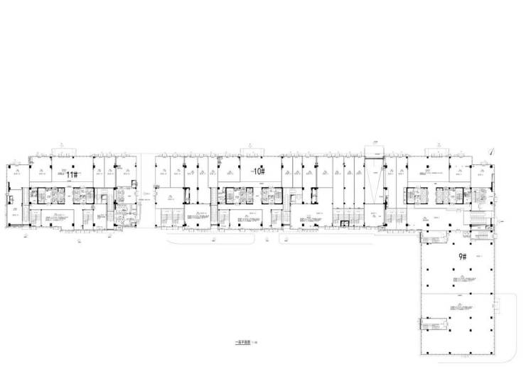
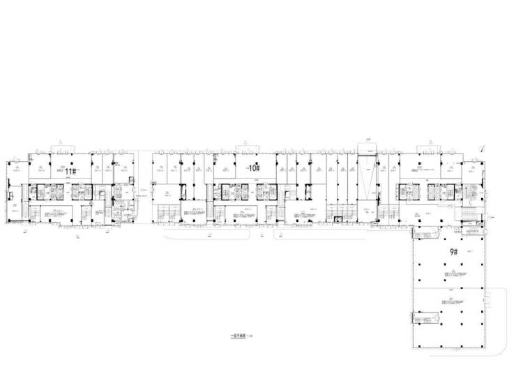
三、【产品平面图】
【办公标准层平面图】云端商务会客厅
【商业平面图】云尚无界BLOCK
四、【建筑设计】
项目荣获“GBE商业综合体大奖2022-2023”年度最佳商业综合体·铂金奖
①LOW-E玻璃幕墙
大面玻璃幕墙,铝板线条装饰,锻造现代极简光幕立面,勾勒城市商务美学天际线。
②双层挑高精装大堂
双层挑高精装大堂,满足商务洽谈、迎客休闲等需求,通过明亮的空间呈现、细腻的装饰元素,营造同频世界名企的开阔气度。
五、【品牌介绍】强强联袂·实力钜献
西湖投资:西投集团是西湖区首家获得信用评级为“AAA+” 的区属国有企业,以“城市产业服务综合供应商 ”为发展定位,成功打造了西投创智中心、西投云漫里、西投浙谷深蓝中心、西投横创中心等优质商办项目。
银泰集团:(全称“中国银泰投资有限公司”)1997年在北京创立,是一家多元化实业发展与投资集团,下辖银泰商业集团、银泰置地集团、银泰黄金集团、银泰投资与金融集团 ,拥有多家境内外上市公司和100多家控股和参股公司。
六、【项目区位图】便捷交通·四通八达
①地铁6号线:直线距离枫桦西路站约800米,向东跨江横穿滨江,途经奥体、钱江世纪城、江河汇,直达杭州东站,将之江融入杭州516公里的地铁网;
②彩虹快速路、之江大桥:横贯东西,咫尺滨江区,直通萧山区;
③紫之隧道:连通西溪蒋村、未来科技城与紫金港科技城;
④杭州绕城高速、杭州南枢纽更可通达全杭州全浙江。
七、【板块资源配套】 全维资源·高度聚合
①高等院校:浙江大学(之江校区)、中国美术学院、浙江音乐学院、国科大等名校云集。
②健康保障:三甲浙一医院(之江分院)省立同德医院(之江分院)、浙江省眼科医院(之江分院)等提供权威医疗。
③高端商业:西投银泰城52万方恢弘体量,吃喝玩乐购一站式满足。
④未来人居:云起之江未来社区, 包含住宅、商业、办公、酒店、服务式公寓、九年一贯制学校、幼儿园。
⑤山水办公:宋城景区、九溪、梅家坞、五云山、大清谷等众多 人文景区为邻,是城市轻度假的休闲之选。
⑥行政之芯 :之江文化中心、省博馆、省图馆、省非遗馆、省文学馆集聚。
八、【板块产业氛围】三创融合·产业高地
在2023年《西湖区人民政府关于推动经济高质量发展的若干政策》中,重点强调西湖区的“南启”定位之江科学城,全力推动铜鉴湖、云栖小镇、艺创小镇、龙坞茶镇“一湖三镇”融合发展。打造以“云创”、“科创”、“文创”三创融合为主阵地的特色产业。
西投银泰云潮中心以其优越的地理位置,吸纳周边艺术文化、创新科研、生态文旅、金融科技等不同类型的产业集群,聚能成为之江核芯的多业态总部聚落。
1、数字经济:
云栖小镇有阿里云、端点科技、数梦工场等多家独角兽企业,随着支付宝、蚂蚁生态等5000员工南移云栖小镇,未来板块内数字经济将迎来更加快速的发展。
2、科艺融合:
之江作为百年高校的所在地,人文底蕴深厚,最具文化代表性的艺创小镇也坐落于此,以科艺融合,成就创新高地。
3、茶旅融合:
近年,龙坞茶镇也以“农业+乡村旅游+文化产业”发展模式持续推进,五年来,龙坞近万亩茶地茶叶总产量1244吨,产值6.98亿元。
4、军民融合:
随着之江军民融合产业的发展,中国空间技术研究院杭州中心、中船重工海洋信息装备军民融合产业化项目,将纷纷落地之江,使之江的政治地位再度提升。
九、【项目效果图】
杭州西湖区西投银泰云潮中心写字楼售楼处电话☎📞📱:400-000-0460转8888
我们以客户为中心,用心服务,只为让您拥有一个满意的家。
温馨提示:来访需提前两小时预约,以免直接参观无销售接待!
声明:本文由入驻焦点开放平台的作者撰写,除焦点官方账号外,观点仅代表作者本人,不代表焦点立场。
