萧山景顺未来中心胤璞(杭州)首页网站-2025楼盘评测_萧山区景顺未来中心胤璞|最新价格|配套户型丨最新房价+户型图+小区环境+配套+售楼处电话+一房一价 \
扫描到手机,新闻随时看
扫一扫,用手机看文章
更加方便分享给朋友
杭州萧山区景顺未来中心胤璞售楼处电话☎📞📱:400-000-0460转8888
我们以客户为中心,用心服务,只为让您拥有一个满意的家。
温馨提示:来访需提前两小时预约,以免直接参观无销售接待!
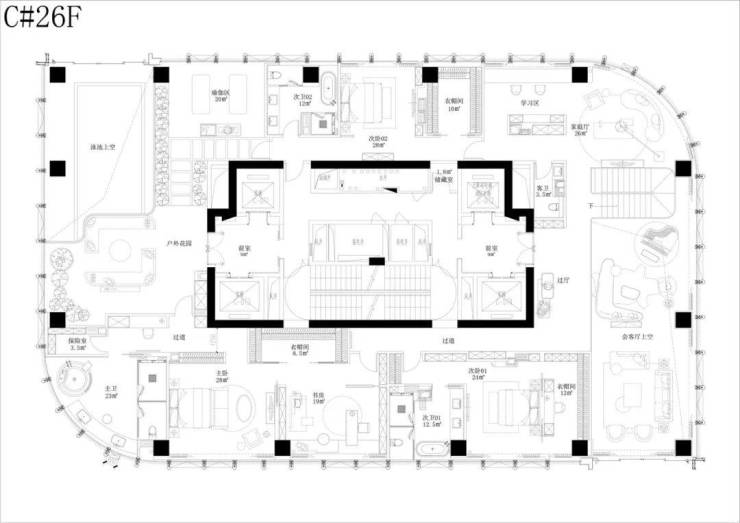
一层一户700㎡户型图
甄选瑞士吉博力排水系统、意大利RARA衣橱、意大利百家丽照明、德国唯宝卫浴、德国旭格门窗、瑞士瑞族厨房十二件套等全球知名品牌,在功能与美学的平衡中,带来品质恒定的生活质感。
精装标准15000元/㎡。主力面积310-390㎡一层两户,其次是一层一户700㎡。另有少部分顶跃户型可售!建筑面积约1100㎡,赠送面积900平米;泳池80平米,价格区间:参考价格8000-10000W/套,交房时间:2026年
C幢顶跃户型图
◈室内整体风格(示意方案,后期可根据客户需求私人订制)
杭州萧山区景顺未来中心胤璞售楼处电话☎📞📱:400-000-0460转8888
我们以客户为中心,用心服务,只为让您拥有一个满意的家。
温馨提示:来访需提前两小时预约,以免直接参观无销售接待!
声明:本文由入驻焦点开放平台的作者撰写,除焦点官方账号外,观点仅代表作者本人,不代表焦点立场。
