上海「华发仁恒苏河世纪」丨上海(华发仁恒苏河世纪)欢迎您丨华发仁恒苏河世纪丨楼盘详情 /价格 /户型
扫描到手机,新闻随时看
扫一扫,用手机看文章
更加方便分享给朋友
上海静安区华发仁恒苏河世纪售楼处电话☎📞📱:400-000-0460转8888
我们以客户为中心,用心服务,只为让您拥有一个满意的家。
温馨提示:来访需提前两小时预约,以免直接参观无销售接待!
静安内环苏州河板块
建面约480-498㎡大平层&复式
仅剩6套房源 精装交付
总价7000万-7360万
收官发售 错过不再有
【华发仁恒·苏河世纪】此次项目推3#、6#两栋住宅,建面约102-245㎡3-4房。共计44套房源,均价13.9万/m²。另有6套大平层和2套复式。
具体如下:
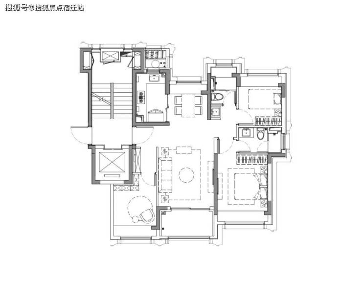
16套约102㎡3房、
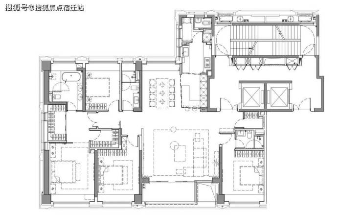
20套约245㎡4房、
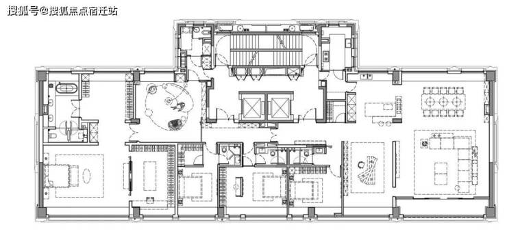
6套约498㎡大平层、
2套约480㎡复式。

建面约102㎡3房户型▼
建面约245㎡4房户型▼
建面约480㎡复式户型▼

建面约498㎡大平层户型▼
2020年10月,华发、仁恒联合体以总价421080万元竞得静安区天目社区C070102单元38-01、39-01地块,成交楼面价52833.79元/㎡,该地块是商住办性质。
位置示意图
38-01地块要求5%保障房、100%全装修、80%以上中小套。规划建设6栋住宅,共288套住宅,预计明年入市。其中1#9F,2、4、5#26F,3#19F,6#8F。
示意图
项目基本参数
区位板块:静安区苏河湾
建筑面积:住宅部分约4.2万方,商业、文化及办公部分约3.6万方。
绿化率:35%
容积率:3.0
住宅产品:3幢26层公寓、1幢19层公寓、1幢8层公寓
总户数:348套
车位配比:478个
主力户型:建筑面积约99㎡-240㎡高层
交付标准:精装
【华发仁恒·苏河世纪】共6栋住宅,首开300套房源,以105-107㎡左右户型为主。推出三栋住宅,均价13.3万/㎡,入围分68.8分。时隔两年多,项目第二批房源少量房源正在认购中!

项目效果图
【华发仁恒·苏河世纪】眺望苏州河,地理位置得天独厚,一线水景饱览城市天际线的壮丽。


项目效果图
铝板和玻璃幕墙遵循现代建筑的先锋美学,超大窗墙比将景色尽收眼底。


项目效果图
同时国企领袖的华发股份与实力外企仁恒置地强强联合,站位“中央活动区”,携手打造史诗级典藏作品——【华发仁恒·苏河世纪】。

项目效果图
项目区位配套
地块位处苏州河畔,周边有1、2、8号线三条轨交,距离8号线曲阜路站仅约300米,位置优越,交通便捷,且与大名鼎鼎的四行仓库仅一路之隔。
交通资源方面:地块距离8号线曲阜路站直线距离约200m,周边还有1、12号线,与四行仓库仅一路之隔。
曲阜路站
教育资源方面:项目周边有惠思顿高瞻幼儿园、上海音乐幼儿园、棋院实验小学、静安第三中学小学、向东中学。
静安第三中学小学
医疗资源方面:静安区北站医院(二甲医院)、上海健桥医院、上海长征医院等为健康保驾护航!
长征医院
商业资源方面:距离静安大悦城直线距离约300m,静安大悦城是国家5星级购物中心,项目整体开发超过40万平米,总投资额超过120亿,规划包括大型时尚购物中心、第一居所临水豪宅、高品质酒店式公寓、甲级写字楼及步行商业街,打造海派文化与国际文化的兼容并蓄,创造动静结合的高品质生活第一选择。

静安大悦城

一江一河规划中,苏州河沿岸明确定位为“特大城市宜居生活的典型示范区”,上海2035规划中,苏河湾定位上海中央活动区!

苏州河中心段范围图
上海静安区华发仁恒苏河世纪售楼处电话☎📞📱:400-000-0460转8888
我们以客户为中心,用心服务,只为让您拥有一个满意的家。
温馨提示:来访需提前两小时预约,以免直接参观无销售接待!
声明:本文由入驻焦点开放平台的作者撰写,除焦点官方账号外,观点仅代表作者本人,不代表焦点立场。
