(萧山区杭州之门售楼处)-首页网站丨杭州萧山区杭州之门欢迎您丨萧山区杭州之门售楼处电话
扫描到手机,新闻随时看
扫一扫,用手机看文章
更加方便分享给朋友
杭州萧山区杭州之门售楼处电话☎📞📱:400-000-0460转8888
我们以客户为中心,用心服务,只为让您拥有一个满意的家。
温馨提示:来访需提前两小时预约,以免直接参观无销售接待!
一座城市 一个地标
写字楼商铺大平层
所在区位:中国奥体中心、杭州城市发展中轴,东至杭州国际博览中心、南至奔竞大道、西至综合训练馆、北至七甲河,与钱江新城拥江相望,是杭州亚运时代的心脏地带。
项目简介
【区域板块】:中国·杭州·奥体中心·奔竞大道(杭州国际博览中心西侧)
【所售类型】:商铺,写字楼,大平层800—1100平
【产权性质】:40年
【商铺层高】:5.75米
【物业】:世邦魏理仕
【拿地时间】:2019年9月
【交付时间】:2023年6月(现铺)
【在售体量】:36套
【得房率】:80%
【价格】:单价10~17万/㎡ 具体一铺一价
【总占地面积】:约77572平方米
【总建筑面积】:约53万平方米
【物业类型】:总部云端办公、总裁天际办公、高端奢华酒店、TOD商业中心
【容积率】:4.5
【建筑风格:现代玻璃幕墙(超白玻璃)】
【开发商】:绿地&宋都
【设计单位】:迪拜塔设计单位美国SOM、水立方设计单位澳大利亚伍兹贝格
【项目地址】:中国·杭州·奥体中心·奔竞大道(杭州国际博览中心西侧)
具体产品分布及说明:
西塔:
总部云端办公41层(3至43层)约9.86万平方米,单层约2500-2800平方米。
总裁天际办公17层(47至63层)约4.28万平方米,单层约2500-2800平方米。
东塔:
甲级总部办公(3至43层)约9.7万平方米,高端奢华酒店约5万平方米。
商业:
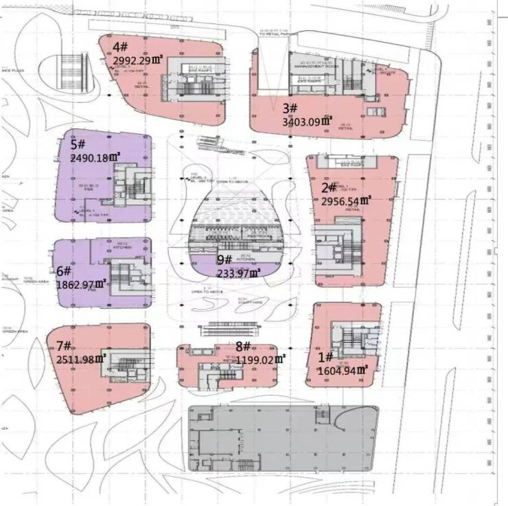
建筑面积约8万平方米。地下部分建筑面积约2万平方米、地上建筑面积约6万平方米。东侧为Block街区,西侧为小型Mall。
‼目前在售:东区商业沿街商铺
‼房源面积段及位置分布:
产品特点:
杭州市新城市中心中轴线上,杭州最大城市空中花园,独一无二景观空中千人宴会厅,至尊办公体验,顶级豪宅,国际五星酒店入驻,城市文化大型购物中心,资源齐聚+高额租金,双地铁上盖,TOD价值的完美趋势
产品定位:
集顶级娱乐、餐饮为一体的商业旗舰,一方面纳入TOP米其林级别与高端黑珍珠对应级别餐饮,另外一方面将浙江省内特色
声明:本文由入驻焦点开放平台的作者撰写,除焦点官方账号外,观点仅代表作者本人,不代表焦点立场。
