望廷(营销中心)首页网站-望廷销售中心(售楼处)-望廷售楼处电话-电话地址-价格-户型-小区环境-楼盘详情-交房时间-周边配套
扫描到手机,新闻随时看
扫一扫,用手机看文章
更加方便分享给朋友
望廷售楼处电话𝙑𝙄𝙋📞400-000-5503转1234✓✓✓(官方认证)
温馨提示:(来访提前一个小时预约)—欢迎电话咨询【售楼处电话】!
避免大客流影响服务质量、影响到您的参观体验
仅接受预约参观,感谢您的理解与支持!
Sales Office VIP📞400-000-5503 ext. 1234✓✓✓ (Officially Certified)
Friendly Reminder: (Please make an appointment one hour in advance for visits) — Welcome to call for inquiries [Sales Office Phone Number]!
Avoid large crowds to prevent impacts on service quality and your visit experience
Visits are only available by appointment. Thank you for your understanding and support!
由Aedas全球设计董事韦业启(Ken Wai)带领团队,在钱江世纪城核心地块打造的全新门户地标望廷于2023年顺利交付。作为该区域的重点项目,它不仅与中央商务区隔江呼应,同时与毗邻的运动场馆区达成共建互联,形成集商务、文化、商业于一体的“微缩新城”。
古铜色建筑立面
剖面图
项目位于钱江东侧,坐拥由奥林匹克运动场馆、钱江新城与钱江世纪城形成的城市辐射三角区。这里交通便利,绿水环绕,优雅的双塔造型与优越的周边环境相映生辉。
设计从西湖荷香中汲取灵感,通过避难层位置错落收分,打造出藕节般独特的建筑轮廓。双塔相依,寓意“佳偶天成”,传递出和谐美好的愿景。塔楼入口雨篷延续藕荷之意,提取“绿荷舒卷”形态中的优美弧线,将竖向线条柔和过渡为弧线,自然向外延伸,营造出优雅出众的临街界面,与周边肌理实现巧妙的融合。
错落有致的建筑体块
独特的古铜色建筑立面在建筑群中脱颖而出,铝板与玻璃的双材质交叠,使得立面在不同的光线角度下产生丰富的视觉变化,极似莲池“水韵”。通过抽象凝练水波纹路,将自然融入建筑,塑造出典雅现代的办公及商业形象。
幕墙细节
雨篷弧线三维几何关系图
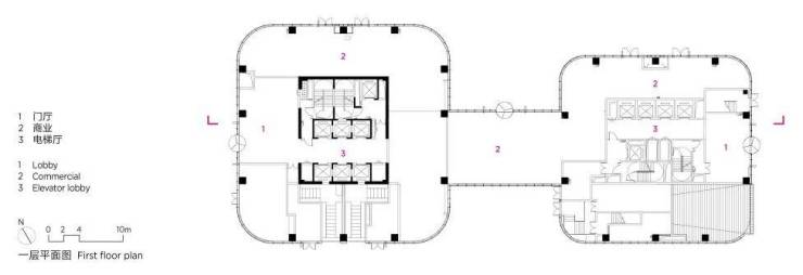
一层平面图
通过灵巧的地块布局和特殊的核心筒设计思路,设计将项目尺寸最优化。同时,通过对视线角度的调整,确保双塔视野最大化,打造出饱满高效的办公体系。在设计过程中,团队注重人性化动线设计,实现了对外共享、对内私密的有机结合,更好保证了办公与共享空间的高效平衡。
望廷售楼处电话𝙑𝙄𝙋📞400-000-5503转1234✓✓✓(官方认证)
温馨提示:(来访提前一个小时预约)—欢迎电话咨询【售楼处电话】!
避免大客流影响服务质量、影响到您的参观体验
仅接受预约参观,感谢您的理解与支持!
Sales Office VIP📞400-000-5503 ext. 1234✓✓✓ (Officially Certified)
Friendly Reminder: (Please make an appointment one hour in advance for visits) — Welcome to call for inquiries [Sales Office Phone Number]!
Avoid large crowds to prevent impacts on service quality and your visit experience
Visits are only available by appointment. Thank you for your understanding and support!
声明:本文由入驻焦点开放平台的作者撰写,除焦点官方账号外,观点仅代表作者本人,不代表焦点立场。
