韶关保利东湾→最新楼盘评测→特价房源限时呈现→保利东湾售楼处接待中心→售楼处电话认证→最新动态全掌握→年中超值钜惠房源→百度问一问
扫描到手机,新闻随时看
扫一扫,用手机看文章
更加方便分享给朋友
2025韶关保利东湾(保利东湾| 东湾售楼处电话)首页网站-楼盘详情-韶关保利东湾售楼处欢迎您-楼盘测评-户型配套
东部新城集结科技创新、特色鲜明、宜居宜商宜游。韶关市一中、韶关学院、执信小学等公立院校让孩子成长在书香里。希尔顿酒店、国际会展中心、鑫金汇、红星美凯龙持续引领区域发展,韶关市中医院、韶关医学院举步即达。
东西环视6公里270°环幕大江景;门前规划近1万㎡滨江公园,出门就享9.8公里滨江绿道;小区超7万方大园林,亲子乐园/康体乐园多重娱乐设施;背靠“绿肺”大氧吧的老蟹山,2.5公里车程即达素有“韶州越秀山”之美称的帽峰公园,保利东湾是能同时享受江景、山景、绿道和7万㎡花园的全优配套品质楼盘。
周边2公里范围内直达风度名城、步行街、百年东街等韶关业态齐全、人流旺商城,华美达/莱斯/希尔顿欢朋酒店等高端酒店,启明北/黄金村肉菜市场尽享生活便捷。
临近6 路/17 路/18 路/19路/28路/41路/42路公交;莲花大道畅达韶大、曲江区,大德路、浈江大道等城市主干道直达市区,快速接驳2 条高速(韶关北环高速和南韶高速)到各县区、粤港澳大湾区。
热门户型”
【3栋楼王 瞰江私邸】
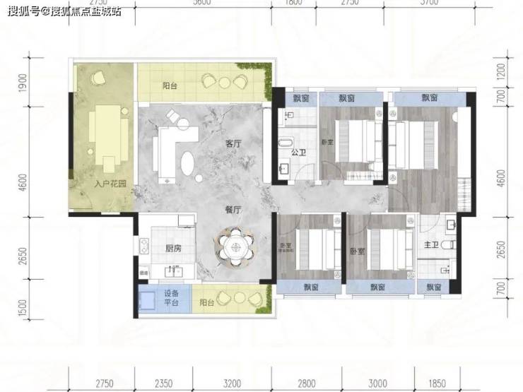
142㎡4+1房 稀缺头排江景进阶豪宅
可灵动升级为约8.3米奢阔观江景客厅
南北双阳台,绝佳采光,景观生活双重享受
城央臻藏,仅少数可入主传奇60席
21㎡3+1房 三面采光 超通透
两梯三户超低密度,全南向阳光入室
约7米大视野阳台,对话天地自由放空
约3.5大开间主卧,彰显大家风范
【二期热销 滨江美宅】
98㎡2+1房 高赠送户内花园
6.7米宽景大阳台,无敌视野
约10㎡入户花园赠送,三房更实用
3.4米开间主卧,居住更从容
声明:本文由入驻焦点开放平台的作者撰写,除焦点官方账号外,观点仅代表作者本人,不代表焦点立场。
